2022
Razstavni salon
in upravni prostori
HAM



Projekt za podjetje Ham je primer, kako arhitektura in interier gradita prepoznavno podobo blagovne znamke skladno z razvojem, rastjo in potrebami podjetja. Prenova obstoječe stavbe je potekala v več korakih - od prodajnega salona do ureditve novih pisarniških prostorov.
Izhodišče in izziv
Podjetje je potrebovalo razstavne površine s prepoznavno identiteto ter več delovnih površin. Izziv je bil povezati obstoječe prostorske danosti z inovativnimi rešitvami, ki bi izražale dinamiko in karakter izdelkov podjetja.
Arhitekturna rešitev – prodajni salon
Navdih za zasnovo razstavnih površin so bili izdelki sami: znameniti stol Spinalis s specifičnim načinom sedenja na vzmeti in Rolljet torba, ki združuje rolko ter šolsko in potovalno torbo. Dinamična narava teh izdelkov je narekovala razgibano, fleksibilno in atraktivno oblikovanje salona.
Arhitekturna rešitev – pisarniški prostori
Nove pisarniške površine smo pridobili z izrabo obstoječega dvovišinskega skladiščnega atrija med proizvodno halo in upravno stavbo. Z reuse pristopom je prostor dobil novo funkcijo, naravna osvetlitev pa je zagotovljena s celostensko zasteklitvijo nad visokim parapetom. Pogled na streho hale mehča ekstenzivna zazelenitev, ki prostoru daje prijetnejši in bolj human značaj.
Projekt za podjetje Ham je primer, kako arhitektura in interier gradita prepoznavno podobo blagovne znamke skladno z razvojem, rastjo in potrebami podjetja. Prenova obstoječe stavbe je potekala v več korakih - od prodajnega salona do ureditve novih pisarniških prostorov.
Izhodišče in izziv
Podjetje je potrebovalo razstavne površine s prepoznavno identiteto ter več delovnih površin. Izziv je bil povezati obstoječe prostorske danosti z inovativnimi rešitvami, ki bi izražale dinamiko in karakter izdelkov podjetja.
Arhitekturna rešitev – prodajni salon
Navdih za zasnovo razstavnih površin so bili izdelki sami: znameniti stol Spinalis s specifičnim načinom sedenja na vzmeti in Rolljet torba, ki združuje rolko ter šolsko in potovalno torbo. Dinamična narava teh izdelkov je narekovala razgibano, fleksibilno in atraktivno oblikovanje salona.
Arhitekturna rešitev – pisarniški prostori
Nove pisarniške površine smo pridobili z izrabo obstoječega dvovišinskega skladiščnega atrija med proizvodno halo in upravno stavbo. Z reuse pristopom je prostor dobil novo funkcijo, naravna osvetlitev pa je zagotovljena s celostensko zasteklitvijo nad visokim parapetom. Pogled na streho hale mehča ekstenzivna zazelenitev, ki prostoru daje prijetnejši in bolj human značaj.
Projekt za podjetje Ham je primer, kako arhitektura in interier gradita prepoznavno podobo blagovne znamke skladno z razvojem, rastjo in potrebami podjetja. Prenova obstoječe stavbe je potekala v več korakih - od prodajnega salona do ureditve novih pisarniških prostorov.
Izhodišče in izziv
Podjetje je potrebovalo razstavne površine s prepoznavno identiteto ter več delovnih površin. Izziv je bil povezati obstoječe prostorske danosti z inovativnimi rešitvami, ki bi izražale dinamiko in karakter izdelkov podjetja.
Arhitekturna rešitev – prodajni salon
Navdih za zasnovo razstavnih površin so bili izdelki sami: znameniti stol Spinalis s specifičnim načinom sedenja na vzmeti in Rolljet torba, ki združuje rolko ter šolsko in potovalno torbo. Dinamična narava teh izdelkov je narekovala razgibano, fleksibilno in atraktivno oblikovanje salona.
Arhitekturna rešitev – pisarniški prostori
Nove pisarniške površine smo pridobili z izrabo obstoječega dvovišinskega skladiščnega atrija med proizvodno halo in upravno stavbo. Z reuse pristopom je prostor dobil novo funkcijo, naravna osvetlitev pa je zagotovljena s celostensko zasteklitvijo nad visokim parapetom. Pogled na streho hale mehča ekstenzivna zazelenitev, ki prostoru daje prijetnejši in bolj human značaj.
2018
Razstavni salon in upravni prostori HAM









Fotografije
Fotografije
Fotografije
Notranja zasnova
Skupni delovni prostori so oblikovani kot open-space zaledje prodajnih površin, medtem ko so vodstveni prostori individualizirani in dopolnjeni z osebno noto uporabnika. Takšna zasnova omogoča ravnotežje med odprtim timskim delom in zasebnostjo vodstva.
Učinek
Prostori podjetja Ham kažejo, kako lahko z inovativnim pristopom in tvorno komunikacijo z naročnikom ustvarjamo raznolike in učinkovite prostorske rešitve, ne glede na omejitve obstoječega objekta.
Zaključna misel
Projekt ponazarja, da arhitektura ni le okvir za delovanje podjetja, ampak tudi pomemben gradnik njegove identitete in prepoznavnosti – v tem primeru vpet v dinamiko in inovativnost prodajnih izdelkov.
Notranja zasnova
Skupni delovni prostori so oblikovani kot open-space zaledje prodajnih površin, medtem ko so vodstveni prostori individualizirani in dopolnjeni z osebno noto uporabnika. Takšna zasnova omogoča ravnotežje med odprtim timskim delom in zasebnostjo vodstva.
Učinek
Prostori podjetja Ham kažejo, kako lahko z inovativnim pristopom in tvorno komunikacijo z naročnikom ustvarjamo raznolike in učinkovite prostorske rešitve, ne glede na omejitve obstoječega objekta.
Zaključna misel
Projekt ponazarja, da arhitektura ni le okvir za delovanje podjetja, ampak tudi pomemben gradnik njegove identitete in prepoznavnosti – v tem primeru vpet v dinamiko in inovativnost prodajnih izdelkov.
Notranja zasnova
Skupni delovni prostori so oblikovani kot open-space zaledje prodajnih površin, medtem ko so vodstveni prostori individualizirani in dopolnjeni z osebno noto uporabnika. Takšna zasnova omogoča ravnotežje med odprtim timskim delom in zasebnostjo vodstva.
Učinek
Prostori podjetja Ham kažejo, kako lahko z inovativnim pristopom in tvorno komunikacijo z naročnikom ustvarjamo raznolike in učinkovite prostorske rešitve, ne glede na omejitve obstoječega objekta.
Zaključna misel
Projekt ponazarja, da arhitektura ni le okvir za delovanje podjetja, ampak tudi pomemben gradnik njegove identitete in prepoznavnosti – v tem primeru vpet v dinamiko in inovativnost prodajnih izdelkov.





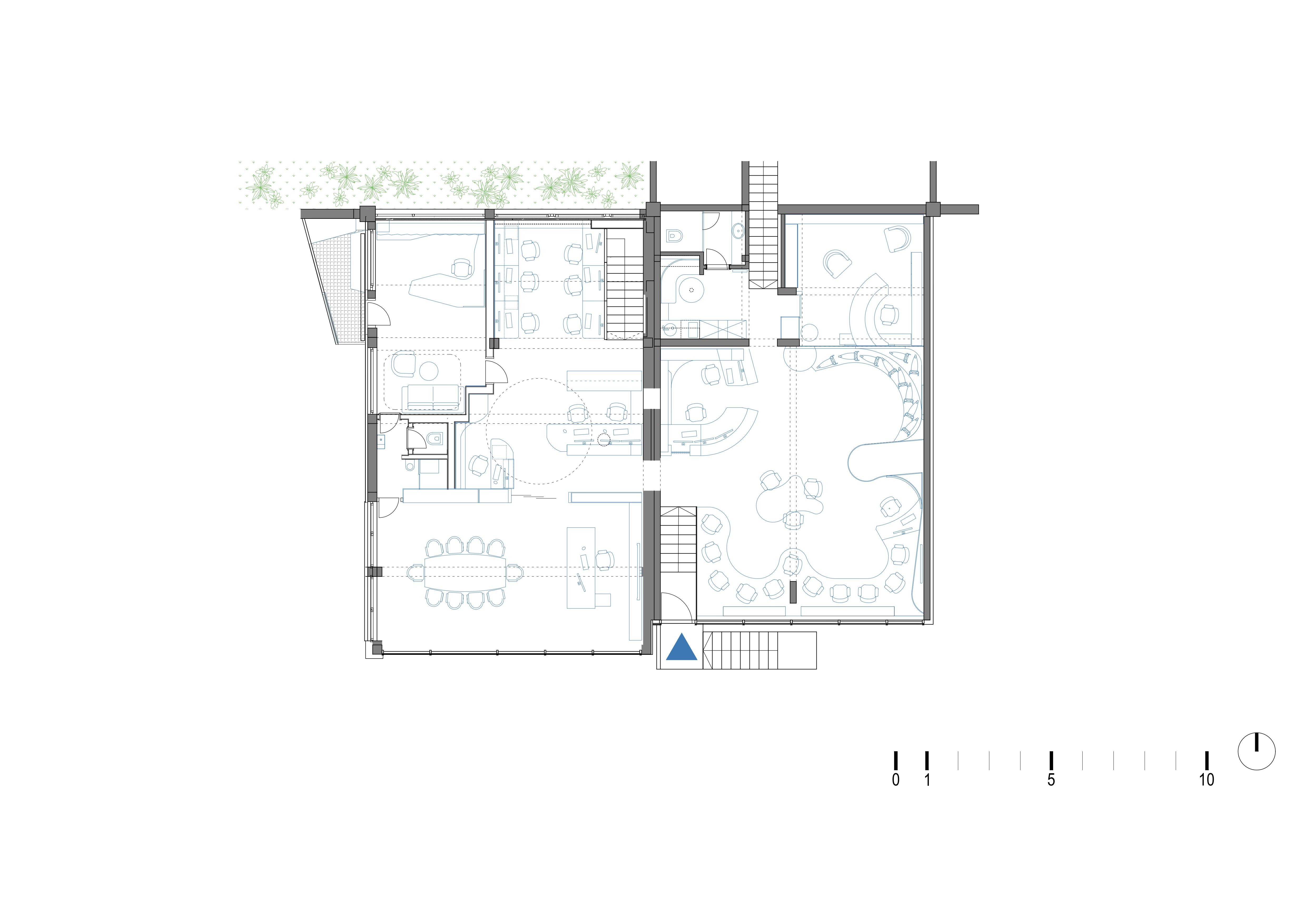
Tloris pritličja
Tloris pritličja
Tloris pritličja
Informacije o projektu
Lokacija: Ljubljana - Vič
Leto projekta: 2020
Leto izgradnje: 2022
Površina: 126 m2
Tip objekta: Poslovni prostor
Namembnost: Poslovna
Poseg: Prenova / notranje oblikovanje
Naročnik: Zasebni
Fotografije: Miran Kambič
Atelje Ber.Nard: Igor Berlot, Špela Nardoni Kovač,
Marko Horvat
Informacije o projektu
Lokacija: Ljubljana - Vič
Leto projekta: 2020
Leto izgradnje: 2022
Površina: 126 m2
Tip objekta: Poslovni prostor
Namembnost: Poslovna
Poseg: Prenova / notranje oblikovanje
Naročnik: Zasebni
Fotografije: Miran Kambič
Atelje Ber.Nard: Igor Berlot, Špela Nardoni Kovač,
Marko Horvat
Informacije o projektu
Lokacija: Ljubljana - Vič
Leto projekta: 2020
Leto izgradnje: 2022
Površina: 126 m2
Tip objekta: Poslovni prostor
Namembnost: Poslovna
Poseg: Prenova / notranje oblikovanje
Zasebni naročnik
Fotografije: Miran Kambič
Atelje Ber.Nard: Igor Berlot, Špela Nardoni Kovač,
Marko Horvat, Veronika Batistič, Lucija Draginić
2018
Razstavni salon
in upravni prostori HAM