2023
Razstava o jedrski energiji in prenova predavalnice ICJT



Oblikovanje razstave o jedrski energiji v kletnih prostorih ICJT (Izobraževalni center jederske tehnologije) na Reaktorju v Brinju je preobrazilo obstoječe razstavne površine v doživljajsko potovanje skozi svet znanosti in energije. Glavni izziv je bil fizični prostor zasnovati tako, da ga obiskovalec ne doživlja kot omejitev, temveč kot del izkušnje - kot delec energije, ki potuje po prostoru.
Izhodiščno stanje in izziv
Prostor je bil prej urejen s preprostimi panoji in posameznimi razstavnimi elementi, ki so prikazovali značilnosti in razvoj jedrske energije. Postavitev je bila informativna, a razpršena, brez jasne prostorske zgodbe, ki bi obiskovalca zadržala v napetosti od začetka do konca.
Arhitekturna in oblikovalska rešitev
Zasnovo smo gradili na štirih ključnih izhodiščih:
posodobitev prezentacijskih sistemov,
modularnost in fleksibilnost postavitve,
vizualno »odvzemanje« fizičnega prostora s črnino, zmanjšano osvetlitvijo in absorpcijo zvoka,
usmerjanje obiskovalčeve pozornosti s svetlobno linijo, ki vodi skozi razstavo.
Obiskovalca smo želeli postaviti v novo izkušnjo prostora - nekonvencionalno zaznavanje, potopitev v neznano okolje in povečano pozornost z vsemi čutili. V predavalnici, ki spremlja razstavo, amfiteatralna postavitev s poudarjenimi klopmi omogoča različne svetlobne scenarije, prilagojene vsebinam. Tu smo namesto absorpcije uporabili difuzijo zvoka z elementi odboja in razpršenosti – stenskimi difuzorji, kasetnim stropom in oblogami.
Oblikovanje razstave o jedrski energiji v kletnih prostorih ICJT (Izobraževalni center jederske tehnologije) na Reaktorju v Brinju je preobrazilo obstoječe razstavne površine v doživljajsko potovanje skozi svet znanosti in energije. Glavni izziv je bil fizični prostor zasnovati tako, da ga obiskovalec ne doživlja kot omejitev, temveč kot del izkušnje - kot delec energije, ki potuje po prostoru.
Izhodiščno stanje in izziv
Prostor je bil prej urejen s preprostimi panoji in posameznimi razstavnimi elementi, ki so prikazovali značilnosti in razvoj jedrske energije. Postavitev je bila informativna, a razpršena, brez jasne prostorske zgodbe, ki bi obiskovalca zadržala v napetosti od začetka do konca.
Arhitekturna in oblikovalska rešitev
Zasnovo smo gradili na štirih ključnih izhodiščih:
posodobitev prezentacijskih sistemov,
modularnost in fleksibilnost postavitve,
vizualno »odvzemanje« fizičnega prostora s črnino, zmanjšano osvetlitvijo in absorpcijo zvoka,
usmerjanje obiskovalčeve pozornosti s svetlobno linijo, ki vodi skozi razstavo.
Obiskovalca smo želeli postaviti v novo izkušnjo prostora - nekonvencionalno zaznavanje, potopitev v neznano okolje in povečano pozornost z vsemi čutili. V predavalnici, ki spremlja razstavo, amfiteatralna postavitev s poudarjenimi klopmi omogoča različne svetlobne scenarije, prilagojene vsebinam. Tu smo namesto absorpcije uporabili difuzijo zvoka z elementi odboja in razpršenosti – stenskimi difuzorji, kasetnim stropom in oblogami.
Oblikovanje razstave o jedrski energiji v kletnih prostorih ICJT (Izobraževalni center jederske tehnologije) na Reaktorju v Brinju je preobrazilo obstoječe razstavne površine v doživljajsko potovanje skozi svet znanosti in energije. Glavni izziv je bil fizični prostor zasnovati tako, da ga obiskovalec ne doživlja kot omejitev, temveč kot del izkušnje - kot delec energije, ki potuje po prostoru.
Izhodiščno stanje in izziv
Prostor je bil prej urejen s preprostimi panoji in posameznimi razstavnimi elementi, ki so prikazovali značilnosti in razvoj jedrske energije. Postavitev je bila informativna, a razpršena, brez jasne prostorske zgodbe, ki bi obiskovalca zadržala v napetosti od začetka do konca.
Arhitekturna in oblikovalska rešitev
Zasnovo smo gradili na štirih ključnih izhodiščih:
posodobitev prezentacijskih sistemov,
modularnost in fleksibilnost postavitve,
vizualno »odvzemanje« fizičnega prostora s črnino, zmanjšano osvetlitvijo in absorpcijo zvoka,
usmerjanje obiskovalčeve pozornosti s svetlobno linijo, ki vodi skozi razstavo.
Obiskovalca smo želeli postaviti v novo izkušnjo prostora - nekonvencionalno zaznavanje, potopitev v neznano okolje in povečano pozornost z vsemi čutili. V predavalnici, ki spremlja razstavo, amfiteatralna postavitev s poudarjenimi klopmi omogoča različne svetlobne scenarije, prilagojene vsebinam. Tu smo namesto absorpcije uporabili difuzijo zvoka z elementi odboja in razpršenosti – stenskimi difuzorji, kasetnim stropom in oblogami.
2022
Razstava o jedrski energiji in prenova predavalnice ICJT












Fotografije
Fotografije
Fotografije
Oblikovni navdih in prostorska kompozicija
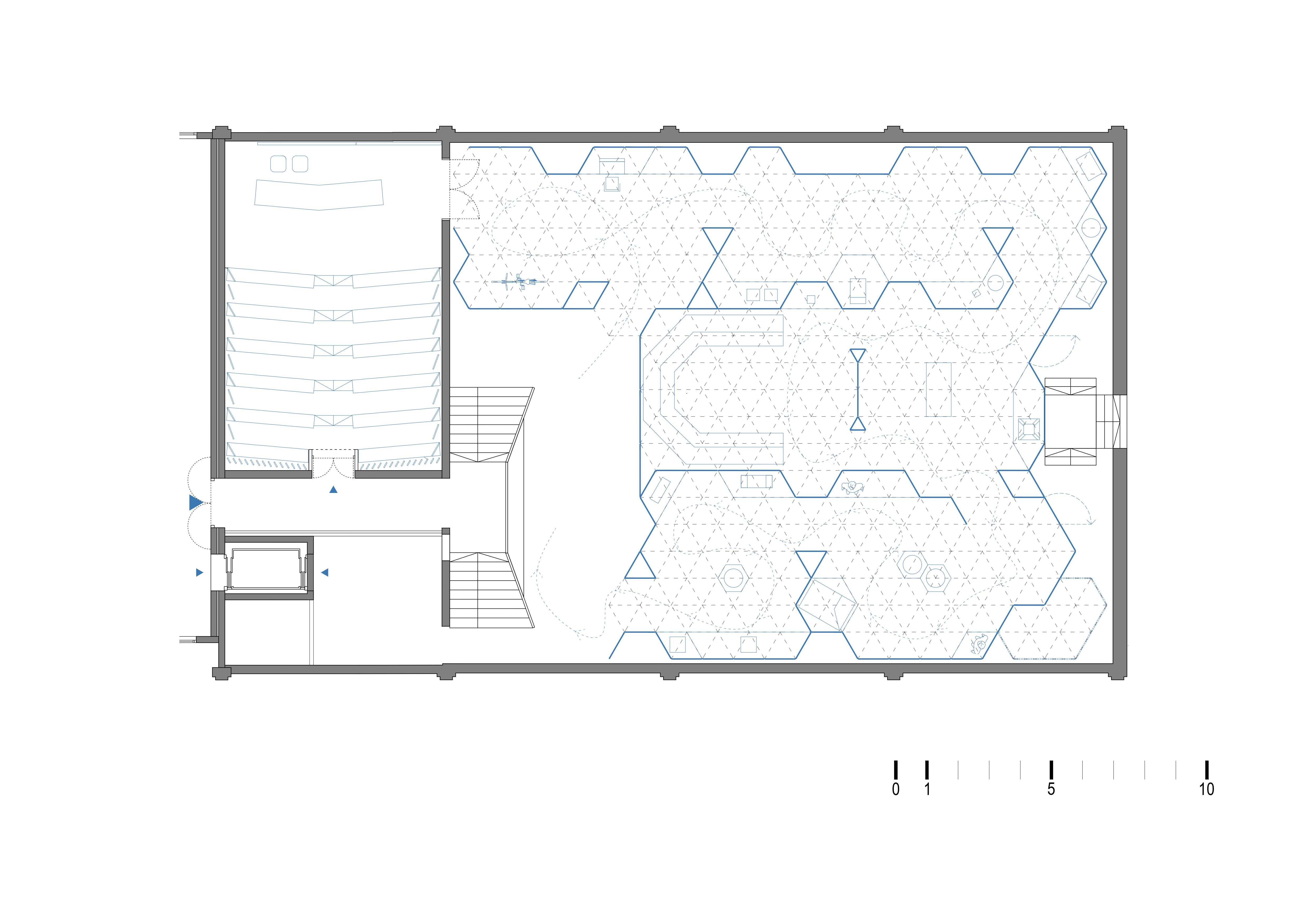
Iztočnica za oblikovanje je šestkotna geometrija gorivne celice jedrskega reaktorja, interpretirana kot abstrakten prikaz atomskega jedra. Ta motiv smo prevedli v modularno mrežo enakostraničnih trikotnikov, ki se razprostira po prostoru in tvori osnovo za razgibano sekvenčno pot po razstavi. Zasnova ostaja fleksibilna in omogoča nadgradnje.
Senzorična izkušnja
V temo zastrti gradniki ambienta – strop, stene in tla – skupaj z akustičnimi absorberji ustvarjajo občutek brezčasnosti in praznine vesolja ter brišejo konvencionalne prostorske orientirje. Modra svetlobna talna nit vodi obiskovalca med »svetlobnimi portali«, ki predstavljajo tematske sklope, ter do svetlobnih otokov z eksponati in interaktivnimi vsebinami. Tako se obiskovalec poda na potovanje skozi vesolje, fiziko, energijo in napredne tehnologije.
Učinek
Razstava obiskovalca potopi v celostno izkušnjo, kjer prostor, svetloba, zvok in vsebine tvorijo enotno pripoved. Namesto statičnega ogleda se ustvari potovanje, ki spodbuja radovednost, osredotočenost in poglobljeno razumevanje tematike.
Zaključna misel
Prostor preseže klasično predstavitev vsebin in postane del zgodbe, ki spodbuja radovednost in poglobljeno razumevanje jedrske energije. Premišljeno oblikovanje fizični prostor spremeni v močno orodje za prenos znanja in izkušenj.
Oblikovni navdih in prostorska kompozicija
Iztočnica za oblikovanje je šestkotna geometrija gorivne celice jedrskega reaktorja, interpretirana kot abstrakten prikaz atomskega jedra. Ta motiv smo prevedli v modularno mrežo enakostraničnih trikotnikov, ki se razprostira po prostoru in tvori osnovo za razgibano sekvenčno pot po razstavi. Zasnova ostaja fleksibilna in omogoča nadgradnje.
Senzorična izkušnja
V temo zastrti gradniki ambienta – strop, stene in tla – skupaj z akustičnimi absorberji ustvarjajo občutek brezčasnosti in praznine vesolja ter brišejo konvencionalne prostorske orientirje. Modra svetlobna talna nit vodi obiskovalca med »svetlobnimi portali«, ki predstavljajo tematske sklope, ter do svetlobnih otokov z eksponati in interaktivnimi vsebinami. Tako se obiskovalec poda na potovanje skozi vesolje, fiziko, energijo in napredne tehnologije.
Učinek
Razstava obiskovalca potopi v celostno izkušnjo, kjer prostor, svetloba, zvok in vsebine tvorijo enotno pripoved. Namesto statičnega ogleda se ustvari potovanje, ki spodbuja radovednost, osredotočenost in poglobljeno razumevanje tematike.
Zaključna misel
Prostor preseže klasično predstavitev vsebin in postane del zgodbe, ki spodbuja radovednost in poglobljeno razumevanje jedrske energije. Premišljeno oblikovanje fizični prostor spremeni v močno orodje za prenos znanja in izkušenj.






Tloris
Tloris
Tloris
Informacije o projektu
Lokacija: Dol pri Ljubljani
Leto projekta: 2021
Leto izgradnje: 2023
Površina: 478,89 m2
Tip objekta: Poslovni objekt
Namembnost: Poslovna
Poseg: Notranja ureditev, razstava
Inštitut Jožef Stefan
Fotografije: Virginia Vrecl
Atelje Ber.Nard: Igor Berlot, Špela Nardoni Kovač,
Marko Horvat, Lucija Draginić
Informacije o projektu
Lokacija: Dol pri Ljubljani
Leto projekta: 2021
Leto izgradnje: 2023
Površina: 478,89 m2
Tip objekta: Poslovni objekt
Namembnost: Poslovna
Poseg: Notranja ureditev, razstava
Inštitut Jožef Stefan
Fotografije: Virginia Vrecl
Atelje Ber.Nard: Igor Berlot, Špela Nardoni Kovač,
Marko Horvat, Lucija Draginić
Informacije o projektu
Lokacija: Dol pri Ljubljani
Leto projekta: 2021
Leto izgradnje: 2023
Površina: 478,89 m2
Tip objekta: Poslovni objekt
Namembnost: Poslovna
Poseg: Notranja ureditev, razstava
Inštitut Jožef Stefan
Fotografije: Virginia Vrecl
Atelje Ber.Nard: Igor Berlot, Špela Nardoni Kovač,
Marko Horvat, Lucija Draginić
Oblikovni navdih in prostorska kompozicija
Iztočnica za oblikovanje je šestkotna geometrija gorivne celice jedrskega reaktorja, interpretirana kot abstrakten prikaz atomskega jedra. Ta motiv smo prevedli v modularno mrežo enakostraničnih trikotnikov, ki se razprostira po prostoru in tvori osnovo za razgibano sekvenčno pot po razstavi. Zasnova ostaja fleksibilna in omogoča nadgradnje.
Senzorična izkušnja
V temo zastrti gradniki ambienta – strop, stene in tla – skupaj z akustičnimi absorberji ustvarjajo občutek brezčasnosti in praznine vesolja ter brišejo konvencionalne prostorske orientirje. Modra svetlobna talna nit vodi obiskovalca med »svetlobnimi portali«, ki predstavljajo tematske sklope, ter do svetlobnih otokov z eksponati in interaktivnimi vsebinami. Tako se obiskovalec poda na potovanje skozi vesolje, fiziko, energijo in napredne tehnologije.
Učinek
Razstava obiskovalca potopi v celostno izkušnjo, kjer prostor, svetloba, zvok in vsebine tvorijo enotno pripoved. Namesto statičnega ogleda se ustvari potovanje, ki spodbuja radovednost, osredotočenost in poglobljeno razumevanje tematike.
Zaključna misel
Prostor preseže klasično predstavitev vsebin in postane del zgodbe, ki spodbuja radovednost in poglobljeno razumevanje jedrske energije. Premišljeno oblikovanje fizični prostor spremeni v močno orodje za prenos znanja in izkušenj.
2022
Razstava o jedrski energiji in prenova predavalnice ICJT