2018
Prizidek s teraso
in drevesom



Bivalni paviljon predstavlja premišljeno dopolnitev večstanovanjske hiše, ki z minimalnim prizidkom in prostorno teraso ustvarja razkošen podaljšek bivalnih površin ter družini omogoča bivanje na prostem in zasebnost obenem.
Izhodiščno stanje in izziv
Družina je potrebovala več prostora, a ni želela velike prizidave, ki bi zmanjšala vrtno površino. Izziv je bil ustvariti dodatni volumen, ki povezuje obstoječe notranje površine z zunanjimi tako prostorsko kot oblikovno, hkrati pa varuje zasebnost vsakdanjega življenja.
Arhitekturna rešitev
Obstoječi stanovanjski prostori se preko novega dnevnega prostora brez prekinitve nadaljujejo na leseno teraso z odprtimi pogledi na Šmarno goro in drevje vrta. Terasa je v poletnem času zasnovana kot glavna dnevna soba, zaščitena pred pogledi. S svojo površino objema obstoječi hruški, ki poleti s krošnjo, pozimi pa s transparentno prepustnostjo prispevata h klimatskemu udobju. Bivalni paviljon je zgrajen na temelje nekdanjega zimskega vrta kot kombinacija armiranobetonske konstrukcije in lesenih elementov.
Bivalni paviljon predstavlja premišljeno dopolnitev večstanovanjske hiše, ki z minimalnim prizidkom in prostorno teraso ustvarja razkošen podaljšek bivalnih površin ter družini omogoča bivanje na prostem in zasebnost obenem.
Izhodiščno stanje in izziv
Družina je potrebovala več prostora, a ni želela velike prizidave, ki bi zmanjšala vrtno površino. Izziv je bil ustvariti dodatni volumen, ki povezuje obstoječe notranje površine z zunanjimi tako prostorsko kot oblikovno, hkrati pa varuje zasebnost vsakdanjega življenja.
Arhitekturna rešitev
Obstoječi stanovanjski prostori se preko novega dnevnega prostora brez prekinitve nadaljujejo na leseno teraso z odprtimi pogledi na Šmarno goro in drevje vrta. Terasa je v poletnem času zasnovana kot glavna dnevna soba, zaščitena pred pogledi. S svojo površino objema obstoječi hruški, ki poleti s krošnjo, pozimi pa s transparentno prepustnostjo prispevata h klimatskemu udobju. Bivalni paviljon je zgrajen na temelje nekdanjega zimskega vrta kot kombinacija armiranobetonske konstrukcije in lesenih elementov.
Bivalni paviljon predstavlja premišljeno dopolnitev večstanovanjske hiše, ki z minimalnim prizidkom in prostorno teraso ustvarja razkošen podaljšek bivalnih površin ter družini omogoča bivanje na prostem in zasebnost obenem.
Izhodiščno stanje in izziv
Družina je potrebovala več prostora, a ni želela velike prizidave, ki bi zmanjšala vrtno površino. Izziv je bil ustvariti dodatni volumen, ki povezuje obstoječe notranje površine z zunanjimi tako prostorsko kot oblikovno, hkrati pa varuje zasebnost vsakdanjega življenja.
Arhitekturna rešitev
Obstoječi stanovanjski prostori se preko novega dnevnega prostora brez prekinitve nadaljujejo na leseno teraso z odprtimi pogledi na Šmarno goro in drevje vrta. Terasa je v poletnem času zasnovana kot glavna dnevna soba, zaščitena pred pogledi. S svojo površino objema obstoječi hruški, ki poleti s krošnjo, pozimi pa s transparentno prepustnostjo prispevata h klimatskemu udobju. Bivalni paviljon je zgrajen na temelje nekdanjega zimskega vrta kot kombinacija armiranobetonske konstrukcije in lesenih elementov.
2018
Prizidek s teraso
in drevesom












Fotografije
Fotografije
Fotografije
Materiali in oblikovni poudarki
Lesena prizidek in terasa ustvarjata topel, domač ambient, dopolnjen s steklenimi površinami in kamnitimi poudarki, ki nadaljujejo arhitekturno zgodbo obstoječe stavbe (venecianer). Leseni paravanski ovoj vzpostavlja občutek intime, ravna streha pa oblikuje teraso tudi stanovanju v mansardi.
Učinek
Družina je pridobila odprt, svetel in pretočen bivalni prostor, ki briše mejo med notranjostjo in zunanjostjo. Terasa je postala osrednje prizorišče družinskega življenja – prostor za počitek, druženje in tišino v zavetju krošenj.
Zaključna misel
Projekt dokazuje, da tudi manjša prostorska intervencija lahko prinese veliko dodano vrednost za življenje družine - s premišljeno zasnovo in povezavo drevesi je družina pridobila kakovosten prostor, vzbuja občutek prostosti in zasebnosti obenem.
Materiali in oblikovni poudarki
Lesena prizidek in terasa ustvarjata topel, domač ambient, dopolnjen s steklenimi površinami in kamnitimi poudarki, ki nadaljujejo arhitekturno zgodbo obstoječe stavbe (venecianer). Leseni paravanski ovoj vzpostavlja občutek intime, ravna streha pa oblikuje teraso tudi stanovanju v mansardi.
Učinek
Družina je pridobila odprt, svetel in pretočen bivalni prostor, ki briše mejo med notranjostjo in zunanjostjo. Terasa je postala osrednje prizorišče družinskega življenja – prostor za počitek, druženje in tišino v zavetju krošenj.
Zaključna misel
Projekt dokazuje, da tudi manjša prostorska intervencija lahko prinese veliko dodano vrednost za življenje družine - s premišljeno zasnovo in povezavo drevesi je družina pridobila kakovosten prostor, vzbuja občutek prostosti in zasebnosti obenem.
Materiali in oblikovni poudarki
Lesena prizidek in terasa ustvarjata topel, domač ambient, dopolnjen s steklenimi površinami in kamnitimi poudarki, ki nadaljujejo arhitekturno zgodbo obstoječe stavbe (venecianer). Leseni paravanski ovoj vzpostavlja občutek intime, ravna streha pa oblikuje teraso tudi stanovanju v mansardi.
Učinek
Družina je pridobila odprt, svetel in pretočen bivalni prostor, ki briše mejo med notranjostjo in zunanjostjo. Terasa je postala osrednje prizorišče družinskega življenja – prostor za počitek, druženje in tišino v zavetju krošenj.
Zaključna misel
Projekt dokazuje, da tudi manjša prostorska intervencija lahko prinese veliko dodano vrednost za življenje družine - s premišljeno zasnovo in povezavo drevesi je družina pridobila kakovosten prostor, vzbuja občutek prostosti in zasebnosti obenem.





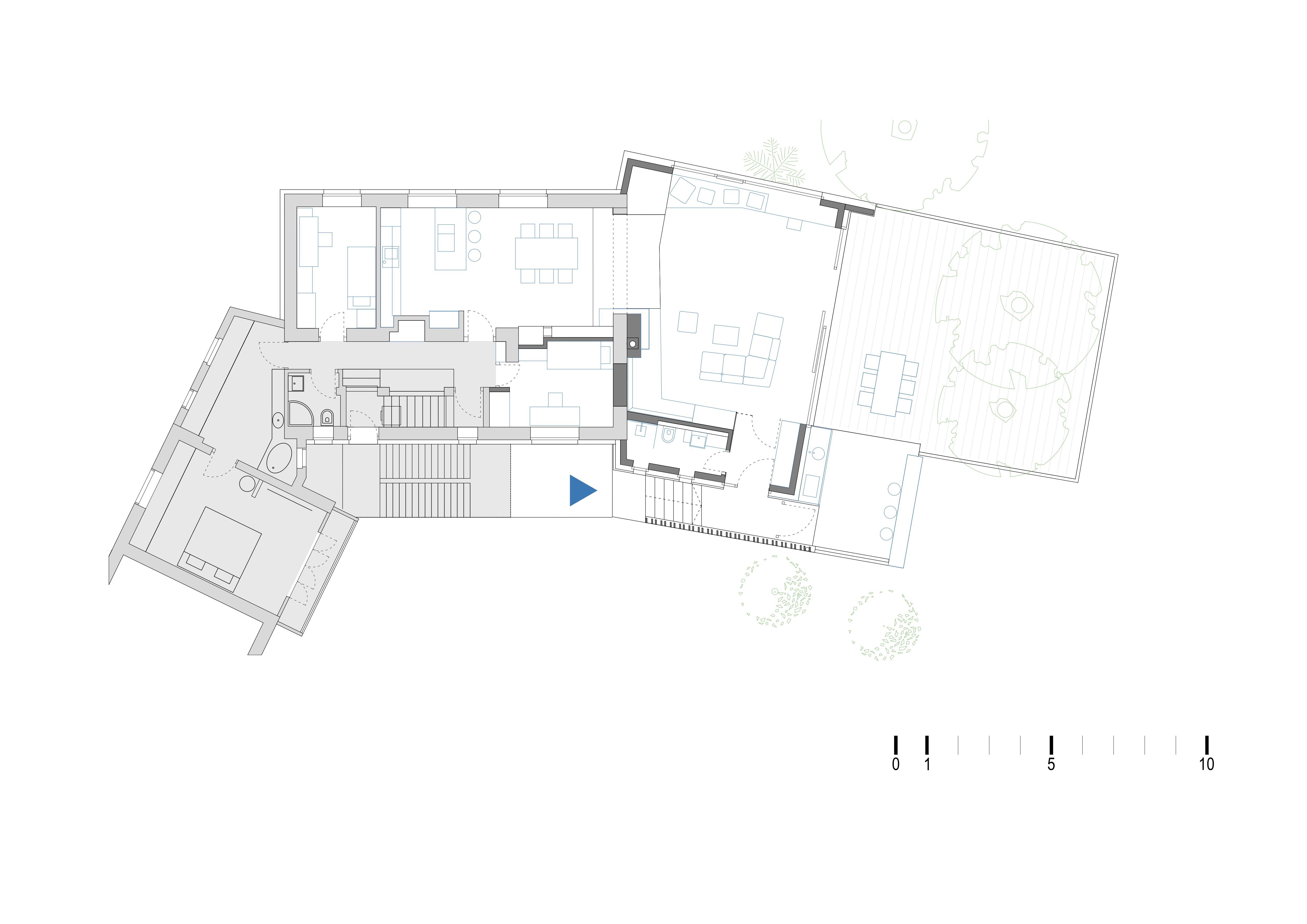
Tloris pritličje (obstoječe, novo), prerez
Tloris pritličja (obstoječe, novo), prerez
Tloris pritličje (obstoječe, novo), prerez
Informacije o projektu
Lokacija: Ljubljana
Leto projekta: 2016
Leto izgradnje: 2018
Površina: 500 m2 / 100 m2
Tip objekta: Stanovanjska hiša
Namembnost: Stanovanjska
Poseg: Novogradnja, prenova
Zasebni naročnik
Fotografije: Jure Kovač, Igor Berlot
Atelje Ber.Nard: Igor Berlot, Špela Nardoni Kovač
Informacije o projektu
Lokacija: Ljubljana
Leto projekta: 2016
Leto izgradnje: 2018
Površina: 500 m2 / 100 m2
Tip objekta: Stanovanjska hiša
Namembnost: Stanovanjska
Poseg: Novogradnja, prenova
Zasebni naročnik
Fotografije: Jure Kovač, Igor Berlot
Atelje Ber.Nard: Igor Berlot, Špela Nardoni Kovač
Informacije o projektu
Lokacija: Ljubljana
Leto projekta: 2016
Leto izgradnje: 2018
Površina: 500 m2 / 100 m2
Tip objekta: Stanovanjska hiša
Namembnost: Stanovanjska
Poseg: Novogradnja, prenova
Zasebni naročnik
Fotografije: Jure Kovač, Igor Berlot
Atelje Ber.Nard: Igor Berlot, Špela Nardoni Kovač
2018
Prizidek s teraso
in drevesom