2024
Prizidava dvigala
in prenova
mostoža



Projekt dvigala pri stavbi K5 Inštituta Jožef Stefan je primer majhnega, a relativno kompleksnega posega. Z minimalnimi gradbenimi intervencijami na stavbi smo dosegli univerzalno dostopnost ter skladno konstrukcijsko in estetsko nadgradnjo vhoda in mostovža.
Izhodišče in izziv
Kompleks IJS se je gradil skozi več desetletij in tvori heterogeno arhitekturno tkivo. Naročnikova želja je bila: dodati dvigalo, ki zagotavlja dostopnost, ob tem pa poseči v stavbo čim manj in na vizualno zadržan način. Izziv je bil povezati funkcionalnost, estetsko primernost in konstrukcijsko prilagoditev.
Arhitekturna rešitev
Dvigalo je umeščeno v jašek iz lahke jeklene konstrukcije, ki se povezuje z obstoječim mostovžem. Oba elementa povezuje enoten steklen ovoj, zasnovan tako, da zagotavlja naravno prezračevanje brez dodatnih naprav ali odpiranja oken.
Projekt dvigala pri stavbi K5 Inštituta Jožef Stefan je primer majhnega, a relativno kompleksnega posega. Z minimalnimi gradbenimi intervencijami na stavbi smo dosegli univerzalno dostopnost ter skladno konstrukcijsko in estetsko nadgradnjo vhoda in mostovža.
Izhodišče in izziv
Kompleks IJS se je gradil skozi več desetletij in tvori heterogeno arhitekturno tkivo. Naročnikova želja je bila: dodati dvigalo, ki zagotavlja dostopnost, ob tem pa poseči v stavbo čim manj in na vizualno zadržan način. Izziv je bil povezati funkcionalnost, estetsko primernost in konstrukcijsko prilagoditev.
Arhitekturna rešitev
Dvigalo je umeščeno v jašek iz lahke jeklene konstrukcije, ki se povezuje z obstoječim mostovžem. Oba elementa povezuje enoten steklen ovoj, zasnovan tako, da zagotavlja naravno prezračevanje brez dodatnih naprav ali odpiranja oken.
Projekt dvigala pri stavbi K5 Inštituta Jožef Stefan je primer majhnega, a relativno kompleksnega posega. Z minimalnimi gradbenimi intervencijami na stavbi smo dosegli univerzalno dostopnost ter skladno konstrukcijsko in estetsko nadgradnjo vhoda in mostovža.
Izhodišče in izziv
Kompleks IJS se je gradil skozi več desetletij in tvori heterogeno arhitekturno tkivo. Naročnikova želja je bila: dodati dvigalo, ki zagotavlja dostopnost, ob tem pa poseči v stavbo čim manj in na vizualno zadržan način. Izziv je bil povezati funkcionalnost, estetsko primernost in konstrukcijsko prilagoditev.
Arhitekturna rešitev
Dvigalo je umeščeno v jašek iz lahke jeklene konstrukcije, ki se povezuje z obstoječim mostovžem. Oba elementa povezuje enoten steklen ovoj, zasnovan tako, da zagotavlja naravno prezračevanje brez dodatnih naprav ali odpiranja oken.
2024
Prizidava dvigala in prenova mostoža












Fotografije
Fotografije
Fotografije
Materiali in oblikovni poudarki
Posebna pozornost je bila namenjena stekleni fasadi dvigala, ki združuje transparentnost, funkcionalnost in trajnost. Lahek, nevtralen videz - cilj je bil neizstopajoč estetski element, ki daje vtis, da je tam od nekdaj.
Učinek
Inštitut je pridobil dvigalo, ki zagotavlja univerzalno dostopnost in olajša gibanje po kompleksu. S svojo zadržano estetiko poseg primerno dopolnjuje obstoječe stavbno tkivo.
Zaključna misel
Gre za navidezno majhen poseg, ki pa je zahteval temeljit razmislek in usklajevanje. Projekt dokazuje, da lahko tudi minimalna intervencija s premišljenim oblikovanjem prinese pomembno prostorsko in uporabniško vrednost.
Materiali in oblikovni poudarki
Posebna pozornost je bila namenjena stekleni fasadi dvigala, ki združuje transparentnost, funkcionalnost in trajnost. Lahek, nevtralen videz - cilj je bil neizstopajoč estetski element, ki daje vtis, da je tam od nekdaj.
Učinek
Inštitut je pridobil dvigalo, ki zagotavlja univerzalno dostopnost in olajša gibanje po kompleksu. S svojo zadržano estetiko poseg primerno dopolnjuje obstoječe stavbno tkivo.
Zaključna misel
Gre za navidezno majhen poseg, ki pa je zahteval temeljit razmislek in usklajevanje. Projekt dokazuje, da lahko tudi minimalna intervencija s premišljenim oblikovanjem prinese pomembno prostorsko in uporabniško vrednost.
Materiali in oblikovni poudarki
Posebna pozornost je bila namenjena stekleni fasadi dvigala, ki združuje transparentnost, funkcionalnost in trajnost. Lahek, nevtralen videz - cilj je bil neizstopajoč estetski element, ki daje vtis, da je tam od nekdaj.
Učinek
Inštitut je pridobil dvigalo, ki zagotavlja univerzalno dostopnost in olajša gibanje po kompleksu. S svojo zadržano estetiko poseg primerno dopolnjuje obstoječe stavbno tkivo.
Zaključna misel
Gre za navidezno majhen poseg, ki pa je zahteval temeljit razmislek in usklajevanje. Projekt dokazuje, da lahko tudi minimalna intervencija s premišljenim oblikovanjem prinese pomembno prostorsko in uporabniško vrednost.









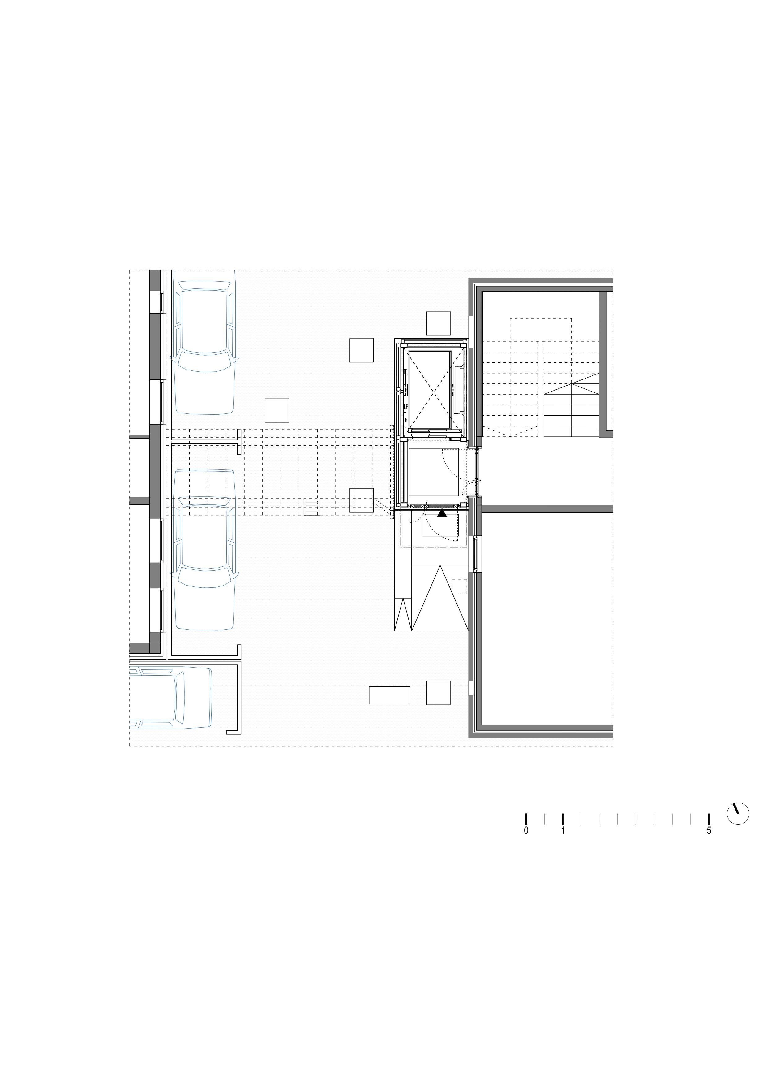
Tloris obstoječe - novo
Tloris obstoječe - novo
Tloris obstoječe - novo

Animacija faz spremnjanja fasade
Animacija faz spremnjanja fasade
Animacija faz spremnjanja fasade
Informacije o projektu
Lokacija: 1000 Ljubljana
Leto projekta: 2024
Leto izgradnje: Pred izvedbo
Površina: 50 m2
Tip objekta: Poslovni objekt
Namembnost: Poslovna
Poseg: Prizidava dvigala in rekonstrukcija
Naročnik: Inštitut Jožef Štefan
Atelje Ber.Nard: Igor Berlot, Špela Nardoni Kovač,
Marko Horvat
Informacije o projektu
Lokacija: 1000 Ljubljana
Leto projekta: 2024
Leto izgradnje: Pred izvedbo
Površina: 50 m2
Tip objekta: Poslovni objekt
Namembnost: Poslovna
Poseg: Prizidava dvigala in rekonstrukcija
Naročnik: Inštitut Jožef Štefan
Atelje Ber.Nard: Igor Berlot, Špela Nardoni Kovač,
Marko Horvat
Informacije o projektu
Lokacija: 1000 Ljubljana
Leto projekta: 2024
Leto izgradnje: Pred izvedbo
Površina: 50 m2
Tip objekta: Poslovni objekt
Namembnost: Poslovna
Poseg: Prizidava dvigala in rekonstrukcija
Naročnik: Inštitut Jožef Štefan
Atelje Ber.Nard: Igor Berlot, Špela Nardoni Kovač,
Marko Horvat
2024
Prizidava dvigala
in prenova
mostoža