2022
Preobrazba dvostanovnjske
hiše v
enodružinsko



Prenova dvostanovanjske tipske hiše iz 80-ih let je hišo preobrazila v sodoben dom za družino. Zunanjost se z novo preobleko skladno vključi v okolico, notranja zasnova pa v polnosti izkoristi prednosti lokacije in stanovalcem zagotavlja kakovostno bivanje ter dobro počutje.
Izhodišče in izziv
Tradicionalna razporeditev bivalnih prostorov ob vhodu v hišo, kljub povezavi z ulico, ni ustrezala sodobnim bivalnim potrebam družine. Cilj prenove je bil ustvariti pretočne, naravno osvetljene prostore, povezane z vrtom, ki bi hkrati omogočali zasebnost in skupno družinsko življenje.
Arhitekturna rešitev
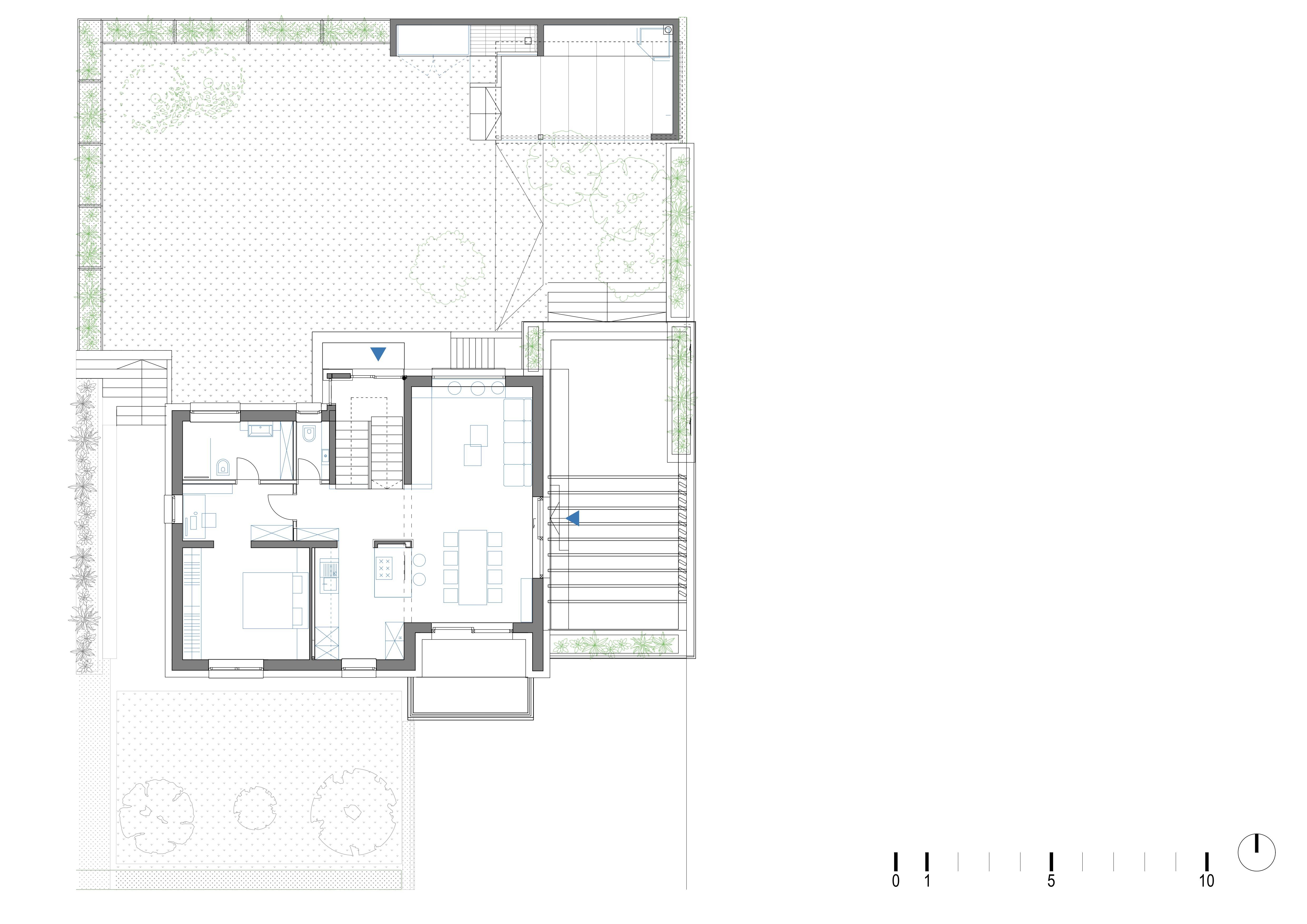
Osrednji bivalni prostor smo premestili v nadstropje, kjer se neposredno povezuje z vrtom v zaledju. Kuhinja, jedilnica in dnevna soba se naravno povezujejo s teraso, ložo, letno kuhinjo in sadovnjakom. Pri sodobnem načinu življenja spontano prehajanje in prepletanje notranjega in zunanjega bivalnega prostora prinaša veliko kakovost bivanja, saj vrt umaknjen v zasebno zaledje stavbe večji del leta služi kot ključna bivalna površina.
Prenova dvostanovanjske tipske hiše iz 80-ih let je hišo preobrazila v sodoben dom za družino. Zunanjost se z novo preobleko skladno vključi v okolico, notranja zasnova pa v polnosti izkoristi prednosti lokacije in stanovalcem zagotavlja kakovostno bivanje ter dobro počutje.
Izhodišče in izziv
Tradicionalna razporeditev bivalnih prostorov ob vhodu v hišo, kljub povezavi z ulico, ni ustrezala sodobnim bivalnim potrebam družine. Cilj prenove je bil ustvariti pretočne, naravno osvetljene prostore, povezane z vrtom, ki bi hkrati omogočali zasebnost in skupno družinsko življenje.
Arhitekturna rešitev
Osrednji bivalni prostor smo premestili v nadstropje, kjer se neposredno povezuje z vrtom v zaledju. Kuhinja, jedilnica in dnevna soba se naravno povezujejo s teraso, ložo, letno kuhinjo in sadovnjakom. Pri sodobnem načinu življenja spontano prehajanje in prepletanje notranjega in zunanjega bivalnega prostora prinaša veliko kakovost bivanja, saj vrt umaknjen v zasebno zaledje stavbe večji del leta služi kot ključna bivalna površina.
Prenova dvostanovanjske tipske hiše iz 80-ih let je hišo preobrazila v sodoben dom za družino. Zunanjost se z novo preobleko skladno vključi v okolico, notranja zasnova pa v polnosti izkoristi prednosti lokacije in stanovalcem zagotavlja kakovostno bivanje ter dobro počutje.
Izhodišče in izziv
Tradicionalna razporeditev bivalnih prostorov ob vhodu v hišo, kljub povezavi z ulico, ni ustrezala sodobnim bivalnim potrebam družine. Cilj prenove je bil ustvariti pretočne, naravno osvetljene prostore, povezane z vrtom, ki bi hkrati omogočali zasebnost in skupno družinsko življenje.
Arhitekturna rešitev
Osrednji bivalni prostor smo premestili v nadstropje, kjer se neposredno povezuje z vrtom v zaledju. Kuhinja, jedilnica in dnevna soba se naravno povezujejo s teraso, ložo, letno kuhinjo in sadovnjakom. Pri sodobnem načinu življenja spontano prehajanje in prepletanje notranjega in zunanjega bivalnega prostora prinaša veliko kakovost bivanja, saj vrt umaknjen v zasebno zaledje stavbe večji del leta služi kot ključna bivalna površina.
2022
Preobrazba dvostanovnjske hiše v
enodružinsko










Fotografije
Fotografije
Fotografije
Materiali in oblikovni poudarki
Stavba se smiselno vklaplja v lokalno okolje: členitev volumna in obloga iz lokalnega kamna jo približuje drobnejši pozidavi vasi. Igriva uporaba tradicionalne strehe preko zamaknjenih volumnov ji dodaja sodobni nadih. Zunanja ureditev z bogatim mediteranskim rastlinjem stavbo staplja z okolico ter uporabnikom nudi prijetno senco in udobje.
Učinek
Apartmajska stavba povezuje zasebnost, odprtost in skladnost z okoljem. Uporabnikom ponuja sodoben, udoben in intimen počitniški prostor, ki zagotavlja povezanost zunanjih in notranjih prostorov in poglede po mediteranski krajini.
Zaključna misel
Projekt dokazuje, da je s premišljenim pristopom mogoče v smiselno, sodobno in homogeno celoto povezati tako prostore različnega značaja kot tudi povsem individualne interese različnih uporabnikov.
Materiali in oblikovni poudarki
Stavba se smiselno vklaplja v lokalno okolje: členitev volumna in obloga iz lokalnega kamna jo približuje drobnejši pozidavi vasi. Igriva uporaba tradicionalne strehe preko zamaknjenih volumnov ji dodaja sodobni nadih. Zunanja ureditev z bogatim mediteranskim rastlinjem stavbo staplja z okolico ter uporabnikom nudi prijetno senco in udobje.
Učinek
Apartmajska stavba povezuje zasebnost, odprtost in skladnost z okoljem. Uporabnikom ponuja sodoben, udoben in intimen počitniški prostor, ki zagotavlja povezanost zunanjih in notranjih prostorov in poglede po mediteranski krajini.
Zaključna misel
Projekt dokazuje, da je s premišljenim pristopom mogoče v smiselno, sodobno in homogeno celoto povezati tako prostore različnega značaja kot tudi povsem individualne interese različnih uporabnikov.
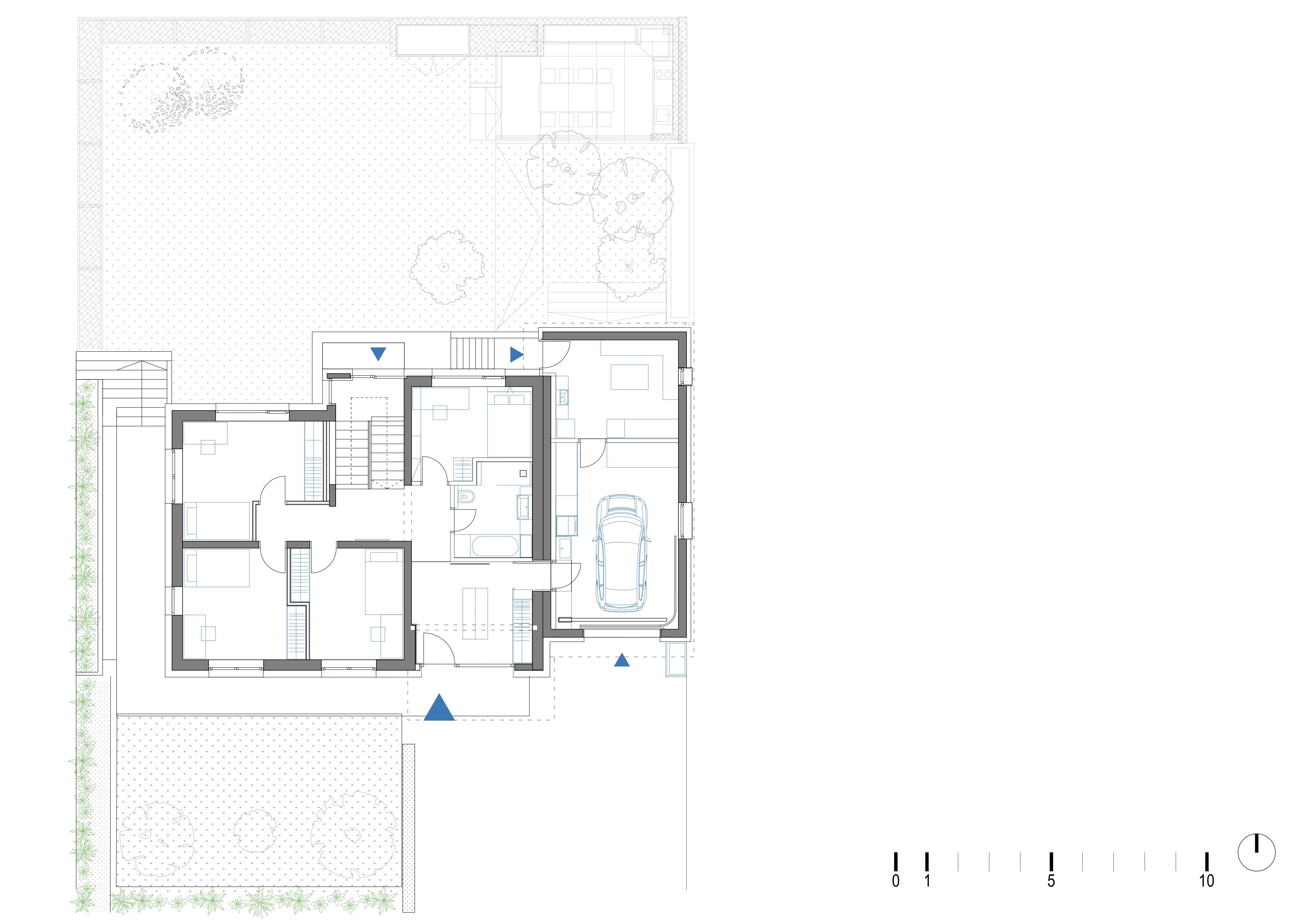
Notranja zasnova
Pritličje je namenjeno otroškim sobam. Eden od ciljev oblikovanja notranjega prostora je bila tudi pretočnost med pritličjem in bivalnim nadstropjem. Stopnišče ima direktni izhod na vrt, oblikovano pa je kot odprt - skoraj bivalen prostor z vgrajenimi knjižnimi policami in igralnimi površinami pod podestom. Takšna organizacija prinaša otroškim sobam južno orientacijo in boljšo osvetlitev.
Učinek
Nova prostorska ureditev prinaša pravo razmerje med povezanostjo in zasebnostjo družine in tako pomaga uravnotežiti družinsko dinamiko. Uporabniki so povsem posvojili funkcionalen in svetel prostor, ki z vsakim korakom odpira nove poglede in ustvarja prijetno povezanost z zunanjim okoljem.
Zaključna misel
Projekt ponazarja naš pristop k prenovam, ki temelji na spoštovanju danosti in razumevanju lokacije, življenjskega sloga naročnika ter sodobnih bivalnih potreb. S premišljenim prepletanjem vsega naštetega tako oblikujemo prostor po meri naročnika.








Tloris pritličja, nadstropja , prerez
Obstoječe - novo
Tloris pritličja, nadstropja , prerez
Obstoječe - novo
Tloris pritličja, nadstropja , prerez
Obstoječe - novo
Informacije o projektu
Lokacija: Ankaran
Leto projekta: 2020
Leto izgradnje: 2022
Površina: 202 m2 interier, 385 m2 zunanjih površin
Tip objekta: Stanovanjska hiša
Namembnost: Stanovanjska
Poseg: Notranja ureditev, prenova, zunanja ureditev
Zasebni naročnik
Fotografije: Virginija Vrecl
Atelje Ber.Nard: Igor Berlot, Špela Nardoni Kovač,
Marko Horvat, Gaja Golob
Informacije o projektu
Lokacija: Ankaran
Leto projekta: 2020
Leto izgradnje: 2022
Površina: 202 m2 interier, 385 m2 zunanjih površin
Tip objekta: Stanovanjska hiša
Namembnost: Stanovanjska
Poseg: Notranja ureditev, prenova, zunanja ureditev
Zasebni naročnik
Fotografije: Virginia Vrecl
Atelje Ber.Nard: Igor Berlot, Špela Nardoni Kovač,
Marko Horvat, Gaja Golob
Informacije o projektu
Lokacija: Ankaran
Leto projekta: 2020
Leto izgradnje: 2022
Površina: 202 m2 interier, 385 m2 zunanjih površin
Tip objekta: Stanovanjska hiša
Namembnost: Stanovanjska
Poseg: Notranja ureditev, prenova, zunanja ureditev
Zasebni naročnik
Fotografije: Virginia Vrecl
Atelje Ber.Nard: Igor Berlot, Špela Nardoni Kovač,
Marko Horvat, Gaja Golob
2022
Preobrazba dvostanovnjske
hiše v enodružinsko