2023
Prenova pisarn v
zaokrožen prostor
urada
2023
Preoblikovanje
prostorov urada
v povezan prostor



Delovno okolje neposredno vpliva na počutje, sodelovanje in učinkovitost. S to prenovo smo sklop generičnih pisarn preoblikovali v svetlo, odprto in povezano delovno okolje, ki enakovredno nagovarja potrebe zaposlenih in obiskovalcev.
Izhodišče in izziv
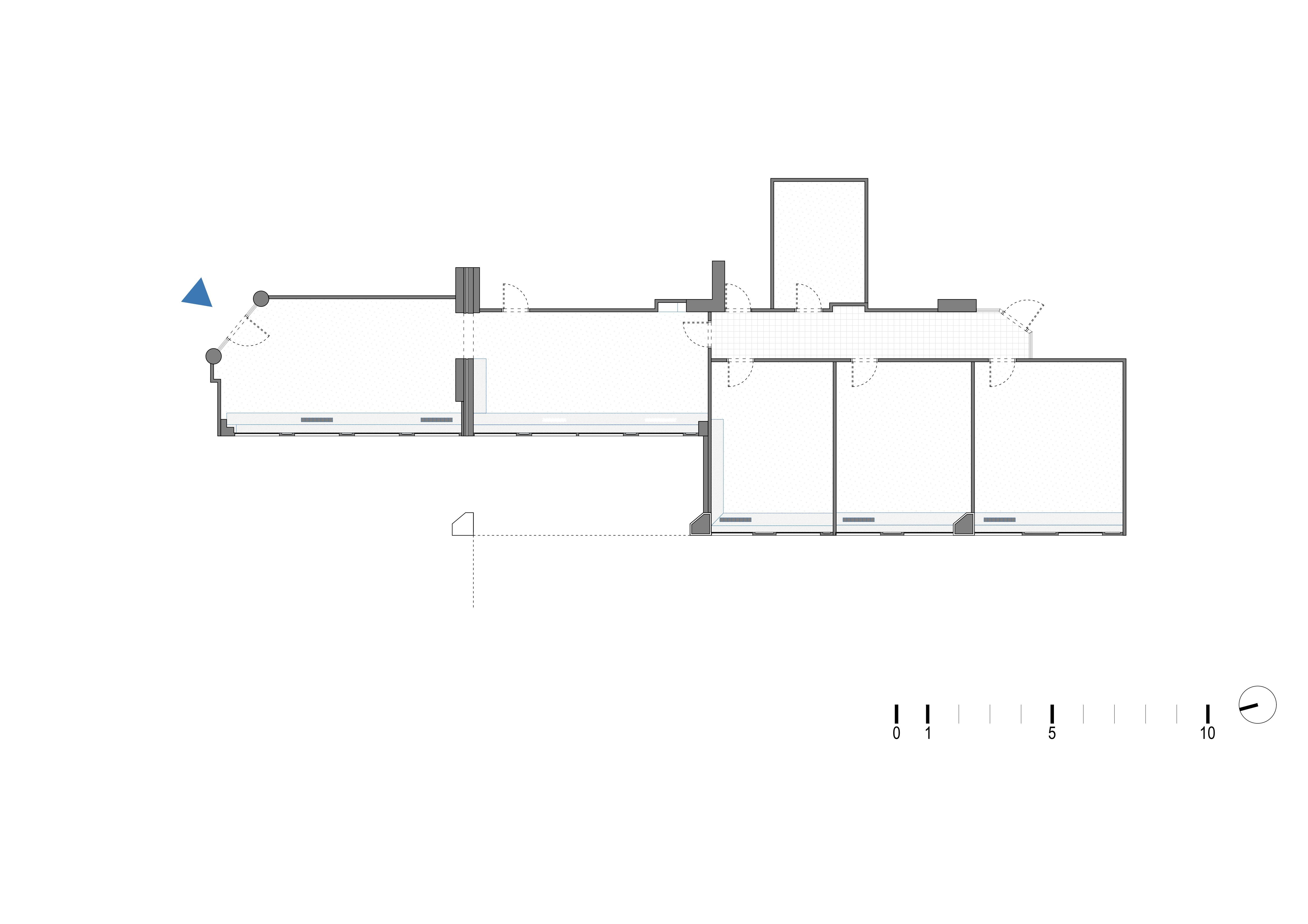
Obstoječi sklop je sestavljalo več prehodnih in zaprtih pisarn, odprtih na ozek in temen hodnik, ter sejna soba brez naravne svetlobe. Prostori niso omogočali ne preglednosti ne prijetne uporabniške izkušnje. Izziv je bil ustvariti sodoben, odprt in prijazen delovni prostor, ki spodbuja produktivnost in dobro počutje.
Arhitekturna rešitev
Prehodni pisarni in hodnik smo povezali v enotno in vizualno privlačno celoto. Hodnik ni več le pot med prostori, temveč postane osrednje stičišče odprtega pisarniškega dela in sprejemnega območja za obiskovalce. Enostranska polprosojna lesena stenska obloga iz svetlega lesa optično razširi prostor, steklena vrata prepuščajo dnevno svetlobo in ustvarjajo igro svetlobe in sence. Pomanjkanje naravne osvetlitve dopolnjuje indirektna linijska osvetlitev, ki poudarja teksturo lesa in ustvarja občutek dnevne svetlobe.
Delovno okolje neposredno vpliva na počutje, sodelovanje in učinkovitost. S to prenovo smo sklop generičnih pisarn preoblikovali v svetlo, odprto in povezano delovno okolje, ki enakovredno nagovarja potrebe zaposlenih in obiskovalcev.
Izhodišče in izziv
Obstoječi sklop je sestavljalo več prehodnih in zaprtih pisarn, odprtih na ozek in temen hodnik, ter sejna soba brez naravne svetlobe. Prostori niso omogočali ne preglednosti ne prijetne uporabniške izkušnje. Izziv je bil ustvariti sodoben, odprt in prijazen delovni prostor, ki spodbuja produktivnost in dobro počutje.
Arhitekturna rešitev
Prehodni pisarni in hodnik smo povezali v enotno in vizualno privlačno celoto. Hodnik ni več le pot med prostori, temveč postane osrednje stičišče odprtega pisarniškega dela in sprejemnega območja za obiskovalce. Enostranska polprosojna lesena stenska obloga iz svetlega lesa optično razširi prostor, steklena vrata prepuščajo dnevno svetlobo in ustvarjajo igro svetlobe in sence. Pomanjkanje naravne osvetlitve dopolnjuje indirektna linijska osvetlitev, ki poudarja teksturo lesa in ustvarja občutek dnevne svetlobe.
Delovno okolje neposredno vpliva na počutje, sodelovanje in učinkovitost. S to prenovo smo sklop generičnih pisarn preoblikovali v svetlo, odprto in povezano delovno okolje, ki enakovredno nagovarja potrebe zaposlenih in obiskovalcev.
Izhodišče in izziv
Obstoječi sklop je sestavljalo več prehodnih in zaprtih pisarn, odprtih na ozek in temen hodnik, ter sejna soba brez naravne svetlobe. Prostori niso omogočali ne preglednosti ne prijetne uporabniške izkušnje. Izziv je bil ustvariti sodoben, odprt in prijazen delovni prostor, ki spodbuja produktivnost in dobro počutje.
Arhitekturna rešitev
Prehodni pisarni in hodnik smo povezali v enotno in vizualno privlačno celoto. Hodnik ni več le pot med prostori, temveč postane osrednje stičišče odprtega pisarniškega dela in sprejemnega območja za obiskovalce. Enostranska polprosojna lesena stenska obloga iz svetlega lesa optično razširi prostor, steklena vrata prepuščajo dnevno svetlobo in ustvarjajo igro svetlobe in sence. Pomanjkanje naravne osvetlitve dopolnjuje indirektna linijska osvetlitev, ki poudarja teksturo lesa in ustvarja občutek dnevne svetlobe.
2022
Prenova pisarn v
zaokrožen prostor urada















Fotografije
Fotografije
Fotografije
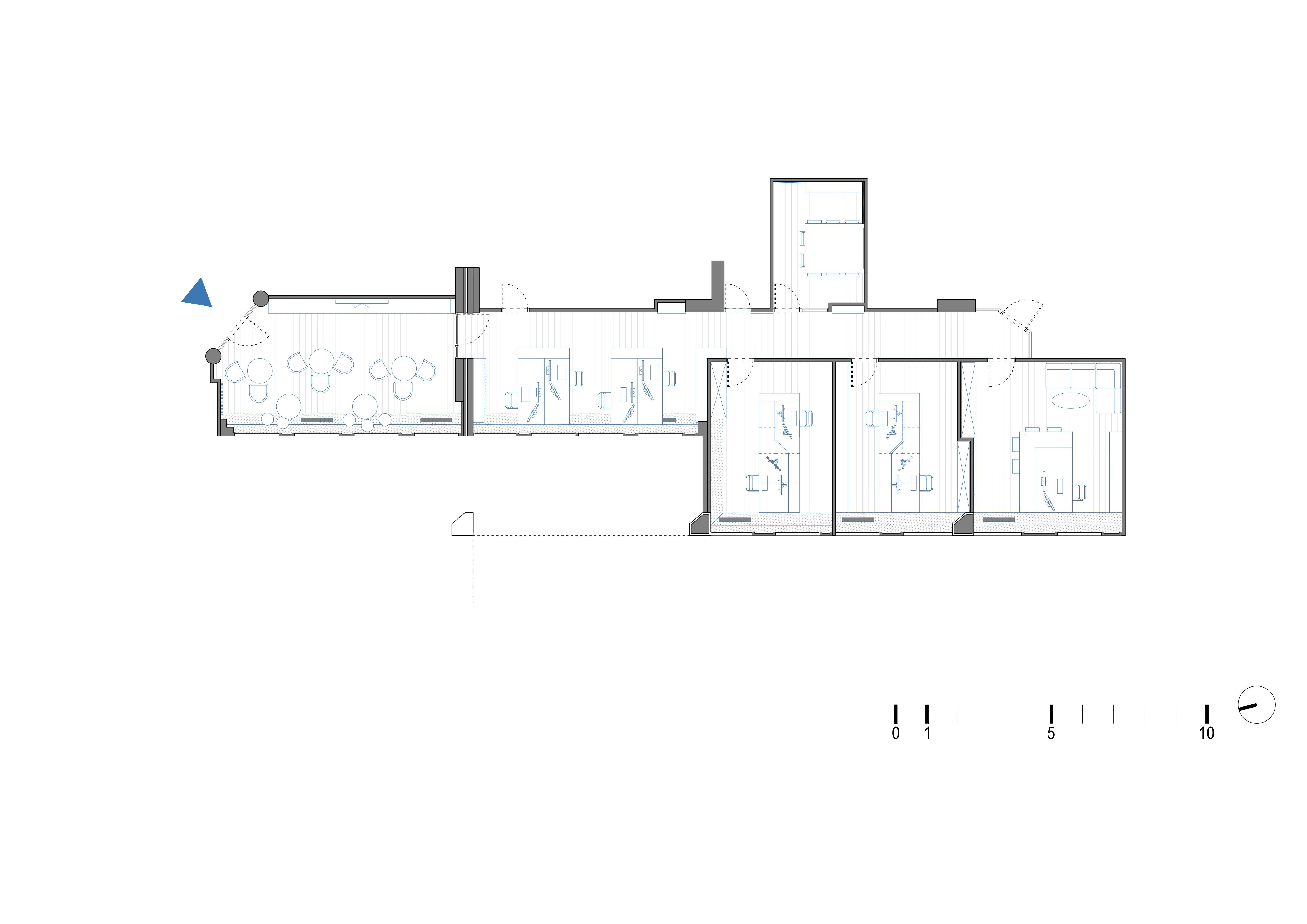
Notranja zasnova in materiali
Hodnik je zasnovan kot komunikacijska os, ki povezuje prostore različnih značajev - od zaprtih pisarn do razširjenih delovnih zalivov. Delovna mesta so prilagojena potrebam uporabnikov: v pisarnah je zagotovljena zasebnost, odlagalne površine in kotički za pogovore, odprti del pa je zasnovan s polodprtimi knjižnimi boksi in akustičnimi absorberji za zmanjševanje hrupa. Toplino in optimizem v središču za obiskovalce ter pisarni vodstva poudarja pohištvo v živahni rumeni barvi.
Učinek
Zasnova je ustvarila pisarniško okolje, ki spodbuja sodelovanje in komunikacijo, hkrati pa omogoča zasebnost in koncentracijo. Prostor izraža zaupanje in odprtost, ki pritičeta javni ustanovi, in zagotavlja prijetno izkušnjo tako zaposlenim kot obiskovalcem.
Zaključna misel
Projekt temelji na razmisleku o dejanskih potrebah uporabnikov in potencialih prostora. S premišljenimi arhitekturnimi posegi smo temen in nepovezan sklop prostorov spremenili v svetel, pretočen in spodbuden ambient.
Notranja zasnova in materiali
Hodnik je zasnovan kot komunikacijska os, ki povezuje prostore različnih značajev - od zaprtih pisarn do razširjenih delovnih zalivov. Delovna mesta so prilagojena potrebam uporabnikov: v pisarnah je zagotovljena zasebnost, odlagalne površine in kotički za pogovore, odprti del pa je zasnovan s polodprtimi knjižnimi boksi in akustičnimi absorberji za zmanjševanje hrupa. Toplino in optimizem v središču za obiskovalce ter pisarni vodstva poudarja pohištvo v živahni rumeni barvi.
Učinek
Zasnova je ustvarila pisarniško okolje, ki spodbuja sodelovanje in komunikacijo, hkrati pa omogoča zasebnost in koncentracijo. Prostor izraža zaupanje in odprtost, ki pritičeta javni ustanovi, in zagotavlja prijetno izkušnjo tako zaposlenim kot obiskovalcem.
Zaključna misel
Projekt temelji na razmisleku o dejanskih potrebah uporabnikov in potencialih prostora. S premišljenimi arhitekturnimi posegi smo temen in nepovezan sklop prostorov spremenili v svetel, pretočen in spodbuden ambient.
Notranja zasnova in materiali
Hodnik je zasnovan kot komunikacijska os, ki povezuje prostore različnih značajev - od zaprtih pisarn do razširjenih delovnih zalivov. Delovna mesta so prilagojena potrebam uporabnikov: v pisarnah je zagotovljena zasebnost, odlagalne površine in kotički za pogovore, odprti del pa je zasnovan s polodprtimi knjižnimi boksi in akustičnimi absorberji za zmanjševanje hrupa. Toplino in optimizem v središču za obiskovalce ter pisarni vodstva poudarja pohištvo v živahni rumeni barvi.
Učinek
Zasnova je ustvarila pisarniško okolje, ki spodbuja sodelovanje in komunikacijo, hkrati pa omogoča zasebnost in koncentracijo. Prostor izraža zaupanje in odprtost, ki pritičeta javni ustanovi, in zagotavlja prijetno izkušnjo tako zaposlenim kot obiskovalcem.
Zaključna misel
Projekt temelji na razmisleku o dejanskih potrebah uporabnikov in potencialih prostora. S premišljenimi arhitekturnimi posegi smo temen in nepovezan sklop prostorov spremenili v svetel, pretočen in spodbuden ambient.







Tloris obstoječe - novo
Tloris obstoječe - novo
Tloris obstoječe - novo
Informacije o projektu
Lokacija: Ljubljana
Leto projekta: 2022
Leto izgradnje: 2023
Površina: 155 m2
Tip objekta: Poslovni objekt
Namembnost: Poslovna
Poseg: Notranja ureditev, prenova
Javni naročnik
Fotografije: Virginia Vrecl
Atelje Ber.Nard: Igor Berlot, Eva Fišer Berlot,
Marko Horvat, Lucija Draginić
Informacije o projektu
Lokacija: Ljubljana
Leto projekta: 2022
Leto izgradnje: 2023
Površina: 155 m2
Tip objekta: Poslovni objekt
Namembnost: Poslovna
Poseg: Notranja ureditev, prenova
Javni naročnik
Fotografije: Virginia Vrecl
Atelje Ber.Nard: Igor Berlot, Eva Fišer Berlot,
Marko Horvat, Lucija Draginić
Informacije o projektu
Lokacija: Ljubljana
Leto projekta: 2022
Leto izgradnje: 2023
Površina: 155 m2
Tip objekta: Poslovni objekt
Namembnost: Poslovna
Poseg: Notranja ureditev, prenova
Javni naročnik
Fotografije: Virginia Vrecl
Atelje Ber.Nard: Igor Berlot, Eva Fišer Berlot,
Marko Horvat, Lucija Draginić
2022
Prenova pisarn v
zaokrožen prostor
urada