2009
Poslovni prostori
družbe GBD Creina



Oblikovanje interierja poslovnih prostorov podjetja GBD združuje optimalno funkcionalno zasnovo z jasno podporo prepoznavnosti in celostni podobi podjetja. Ključni poudarek projekta je bil ustvariti reprezentančen in hkrati učinkovit delovni prostor, ki obiskovalcu že ob vstopu posreduje občutek profesionalnosti in zanesljivosti.
Izhodiščno stanje in izziv
Podjetje je potrebovalo prostore, ki bodo hkrati služili dnevnim delovnim procesom in komunicirali njegov ugled na trgu. Pritličje je imelo pomembno javno funkcijo – sprejem strank in hitro prodajo delnic – ter je zahtevalo zasnovo, ki bo takoj prepoznana in vidna tudi iz zunanjosti.
Arhitekturna in interierna rešitev
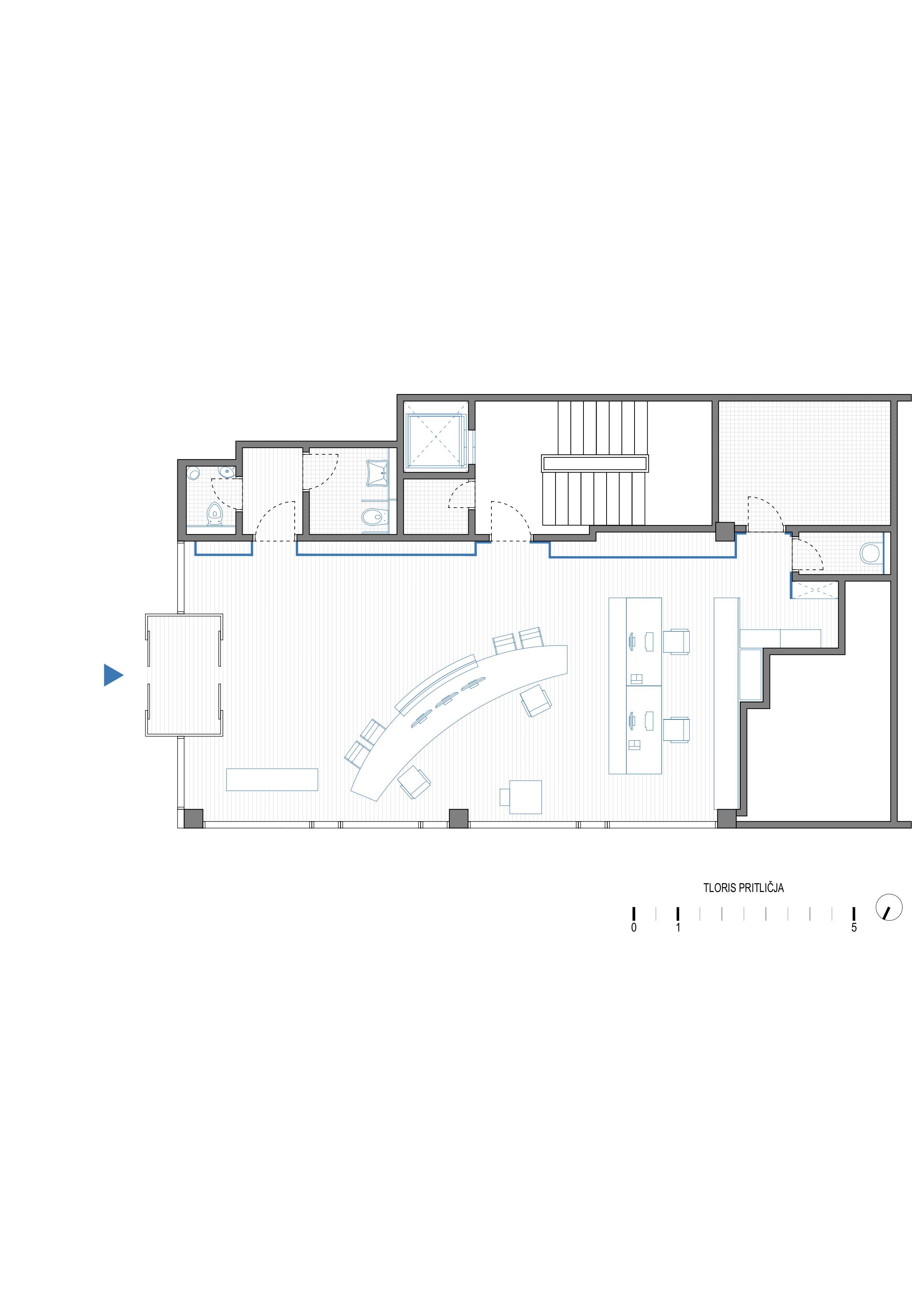
V pritličju smo postavili ukrivljen bel sprejemni pult z izpostavljenim logotipom podjetja in namensko osvetlitvijo. Velike steklene površine omogočajo, da je ta poudarjeni element zaznaven že od zunaj, kar krepi prepoznavnost blagovne znamke.
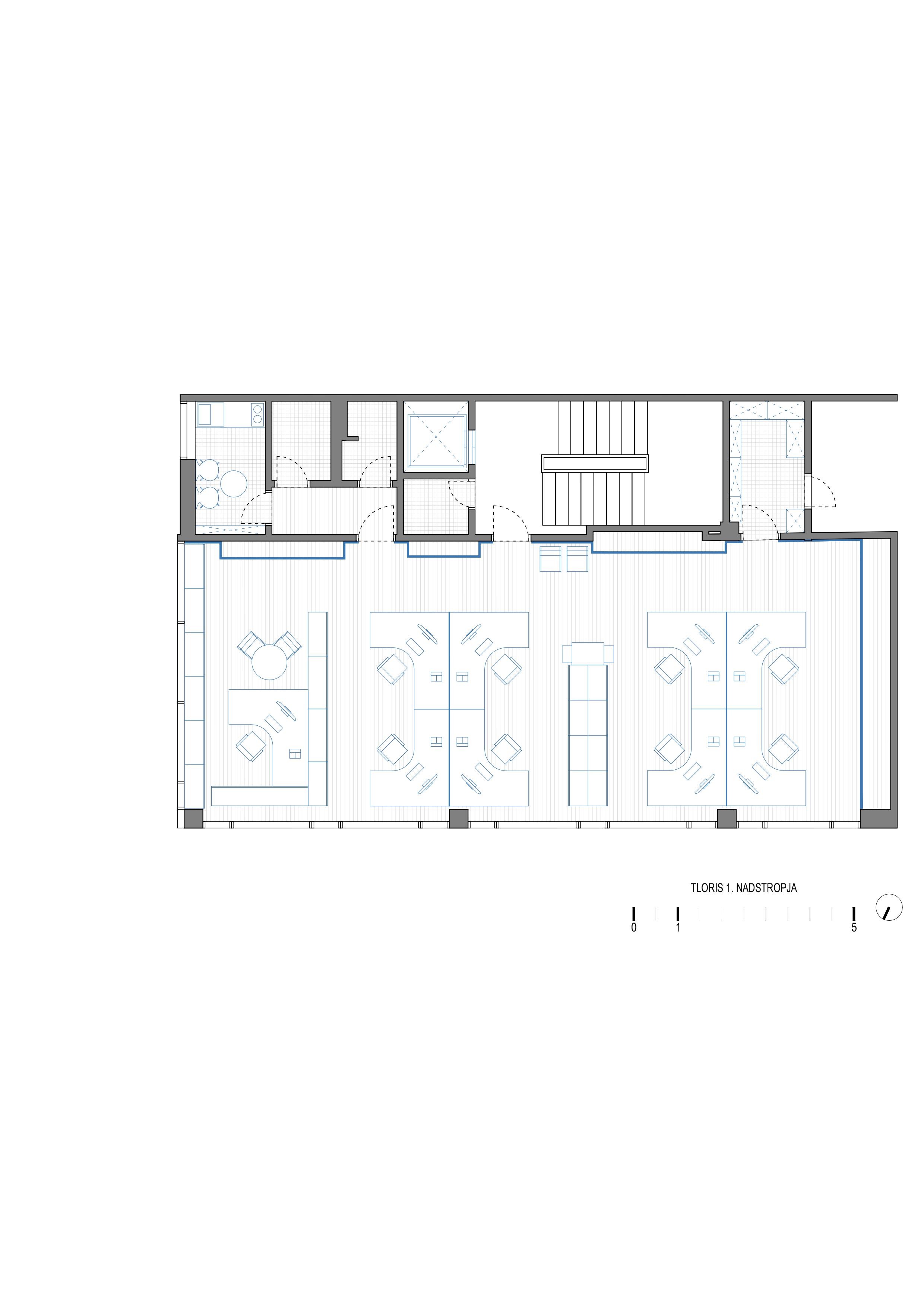
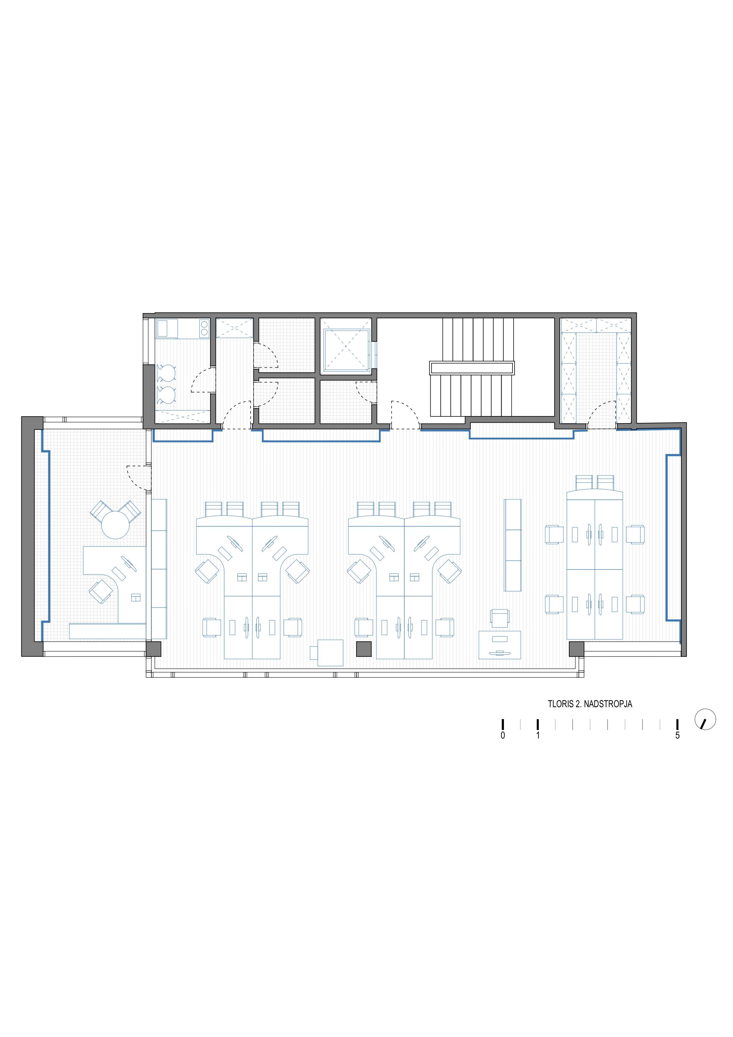
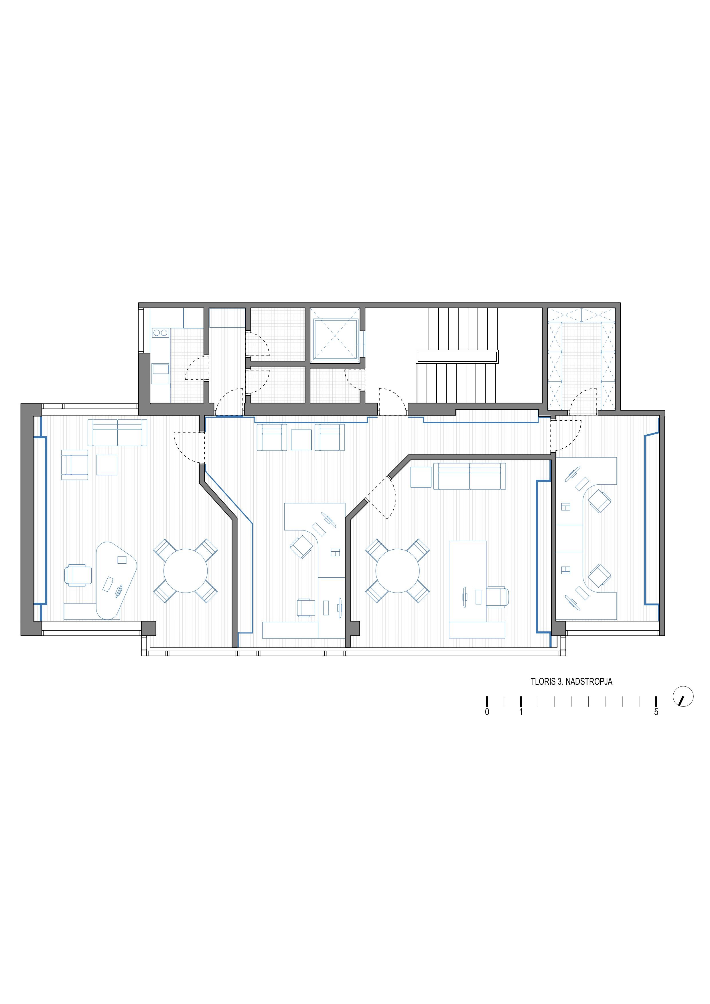
Stavba obsega štiri nadstropja: prva dva sta namenjena brokerjem in zalednim službam ter sta zasnovana kot odprta pisarniška prostora z delovnimi mesti, ločenimi s pregradami za zagotovitev zasebnosti. Zadnji dve nadstropji sta reprezentančni – zasebni pisarni članov uprave s tajništvom in velika sejna soba s teraso.
Oblikovanje interierja poslovnih prostorov podjetja GBD združuje optimalno funkcionalno zasnovo z jasno podporo prepoznavnosti in celostni podobi podjetja. Ključni poudarek projekta je bil ustvariti reprezentančen in hkrati učinkovit delovni prostor, ki obiskovalcu že ob vstopu posreduje občutek profesionalnosti in zanesljivosti.
Izhodiščno stanje in izziv
Podjetje je potrebovalo prostore, ki bodo hkrati služili dnevnim delovnim procesom in komunicirali njegov ugled na trgu. Pritličje je imelo pomembno javno funkcijo – sprejem strank in hitro prodajo delnic – ter je zahtevalo zasnovo, ki bo takoj prepoznana in vidna tudi iz zunanjosti.
Arhitekturna in interierna rešitev
V pritličju smo postavili ukrivljen bel sprejemni pult z izpostavljenim logotipom podjetja in namensko osvetlitvijo. Velike steklene površine omogočajo, da je ta poudarjeni element zaznaven že od zunaj, kar krepi prepoznavnost blagovne znamke.
Stavba obsega štiri nadstropja: prva dva sta namenjena brokerjem in zalednim službam ter sta zasnovana kot odprta pisarniška prostora z delovnimi mesti, ločenimi s pregradami za zagotovitev zasebnosti. Zadnji dve nadstropji sta reprezentančni – zasebni pisarni članov uprave s tajništvom in velika sejna soba s teraso.
Oblikovanje interierja poslovnih prostorov podjetja GBD združuje optimalno funkcionalno zasnovo z jasno podporo prepoznavnosti in celostni podobi podjetja. Ključni poudarek projekta je bil ustvariti reprezentančen in hkrati učinkovit delovni prostor, ki obiskovalcu že ob vstopu posreduje občutek profesionalnosti in zanesljivosti.
Izhodiščno stanje in izziv
Podjetje je potrebovalo prostore, ki bodo hkrati služili dnevnim delovnim procesom in komunicirali njegov ugled na trgu. Pritličje je imelo pomembno javno funkcijo – sprejem strank in hitro prodajo delnic – ter je zahtevalo zasnovo, ki bo takoj prepoznana in vidna tudi iz zunanjosti.
Arhitekturna in interierna rešitev
V pritličju smo postavili ukrivljen bel sprejemni pult z izpostavljenim logotipom podjetja in namensko osvetlitvijo. Velike steklene površine omogočajo, da je ta poudarjeni element zaznaven že od zunaj, kar krepi prepoznavnost blagovne znamke.
Stavba obsega štiri nadstropja: prva dva sta namenjena brokerjem in zalednim službam ter sta zasnovana kot odprta pisarniška prostora z delovnimi mesti, ločenimi s pregradami za zagotovitev zasebnosti. Zadnji dve nadstropji sta reprezentančni – zasebni pisarni članov uprave s tajništvom in velika sejna soba s teraso.
2009
Poslovni prostori družbe
GBD Creina


















Fotografije
Fotografije
Fotografije
Materiali in oblikovni poudarki
Oblikovanje se prilagaja pomenu in značaju posameznih prostorov. Poleg logotipa z zelenimi poudarki je glavni material les, izbran že v fazi gradnje. Njegova prisotnost se povečuje s pomembnostjo vsebine – v višjih nadstropjih les prevzame tudi vlogo stenske obloge in povezovalnega elementa med različnimi prostori. Kombinacija zelenih poudarkov in bogatega tona lesa je uravnotežena z belimi in svetlimi površinami, ki dodajo svežino in prispevajo k prostornosti.
Učinek
Nastali so prostori, ki združujejo reprezentančnost z delovno učinkovitostjo. Sprejemni del ustvarja močan prvi vtis, delovni prostori pa omogočajo nemoteno delo ob ohranjanju zasebnosti. Materialna in barvna zasnova se subtilno povezuje z vizualno identiteto podjetja, kar krepi celostno podobo in ugled blagovne znamke.
Zaključna misel
Projekt temelji na razumevanju pomena prvega vtisa in vpliva prostora na zaznavo podjetja. Premišljen izbor materialov, prostorska organizacija in jasna identiteta ustvarjajo delovno okolje, ki podpira poslovno uspešnost ter obiskovalcem posreduje občutek profesionalnosti in zaupanja.
Materiali in oblikovni poudarki
Oblikovanje se prilagaja pomenu in značaju posameznih prostorov. Poleg logotipa z zelenimi poudarki je glavni material les, izbran že v fazi gradnje. Njegova prisotnost se povečuje s pomembnostjo vsebine – v višjih nadstropjih les prevzame tudi vlogo stenske obloge in povezovalnega elementa med različnimi prostori. Kombinacija zelenih poudarkov in bogatega tona lesa je uravnotežena z belimi in svetlimi površinami, ki dodajo svežino in prispevajo k prostornosti.
Učinek
Nastali so prostori, ki združujejo reprezentančnost z delovno učinkovitostjo. Sprejemni del ustvarja močan prvi vtis, delovni prostori pa omogočajo nemoteno delo ob ohranjanju zasebnosti. Materialna in barvna zasnova se subtilno povezuje z vizualno identiteto podjetja, kar krepi celostno podobo in ugled blagovne znamke.
Zaključna misel
Projekt temelji na razumevanju pomena prvega vtisa in vpliva prostora na zaznavo podjetja. Premišljen izbor materialov, prostorska organizacija in jasna identiteta ustvarjajo delovno okolje, ki podpira poslovno uspešnost ter obiskovalcem posreduje občutek profesionalnosti in zaupanja.
Materiali in oblikovni poudarki
Oblikovanje se prilagaja pomenu in značaju posameznih prostorov. Poleg logotipa z zelenimi poudarki je glavni material les, izbran že v fazi gradnje. Njegova prisotnost se povečuje s pomembnostjo vsebine – v višjih nadstropjih les prevzame tudi vlogo stenske obloge in povezovalnega elementa med različnimi prostori. Kombinacija zelenih poudarkov in bogatega tona lesa je uravnotežena z belimi in svetlimi površinami, ki dodajo svežino in prispevajo k prostornosti.
Učinek
Nastali so prostori, ki združujejo reprezentančnost z delovno učinkovitostjo. Sprejemni del ustvarja močan prvi vtis, delovni prostori pa omogočajo nemoteno delo ob ohranjanju zasebnosti. Materialna in barvna zasnova se subtilno povezuje z vizualno identiteto podjetja, kar krepi celostno podobo in ugled blagovne znamke.
Zaključna misel
Projekt temelji na razumevanju pomena prvega vtisa in vpliva prostora na zaznavo podjetja. Premišljen izbor materialov, prostorska organizacija in jasna identiteta ustvarjajo delovno okolje, ki podpira poslovno uspešnost ter obiskovalcem posreduje občutek profesionalnosti in zaupanja.










Tloris pritličja, 1., 2., 3. nadstropja, mansarde
Tloris pritličja, 1., 2., 3. nadstropja, mansarde
Tloris pritličja, 1., 2., 3. nadstropja, mansarde
Informacije o projektu
Lokacija: Kranj
Leto projekta: 2008
Leto izgradnje: 2009
Površina: 640 m2
Tip objekta: Poslovni prostor
Namembnost: Poslovna
Poseg: Notranje oblikovanje
Zasebni naročnik
Fotografije: Matevž Paternoster
Arhé, Špela Nardoni Kovač u.d.i.a., Barbara Nardoni u.d.o.
Informacije o projektu
Lokacija: Kranj
Leto projekta: 2008
Leto izgradnje: 2009
Površina: 640 m2
Tip objekta: Poslovni prostor
Namembnost: Poslovna
Poseg: Notranje oblikovanje
Zasebni naročnik
Fotografije: Matevž Paternoster
Arhé, Špela Nardoni Kovač u.d.i.a., Barbara Nardoni u.d.o.
Informacije o projektu
Lokacija: Kranj
Leto projekta: 2008
Leto izgradnje: 2009
Površina: 640 m2
Tip objekta: Poslovni prostor
Namembnost: Poslovna
Poseg: Notranje oblikovanje
Zasebni naročnik
Fotografije: Matevž Paternoster
Arhé, Špela Nardoni Kovač u.d.i.a., Barbara Nardoni u.d.o.
2009
Poslovni prostori
družbe GBD Creina