2008
Poslovni prostori družbe GBD



Ureditev poslovnih prostorov sedeža GBD je primer, kako lahko premišljeno oblikovanje prostora slabost spremeni v prednost. Glavna prostorska organizacija združuje niz obodnih pisarniških prostorov okrog osrednjega servisnega in konstrukcijskega jedra. Povezovalna krožna pot je bila pred pričetkom dolga in temačna.
Izhodiščno stanje in izziv
Dolga, temačna povezava med pisarnami je ustvarjala občutek zaprtosti in težke prostorske dinamike. Osrednje betonsko jedro je prostorsko prevladovalo in omejevalo občutek odprtosti.
Arhitekturna rešitev
Z oblogo osrednjega volumna v črnem steklu smo ustvarili občutek praznine, ki vizualno briše volumen in daje vtis "črne luknje". Dematerializacijo betonskih sten poudarjajo odsevi steklenih površin ter bel napis, ki teče po obodu. Ta element ni le estetski, temveč tudi nosilec blagovne znamke: logotip podjetja obiskovalca pozdravi ob vhodu, linija napisa z navedbo hčerinskih podjetij pa ga subtilno vodi skozi prostor.
Ureditev poslovnih prostorov sedeža GBD je primer, kako lahko premišljeno oblikovanje prostora slabost spremeni v prednost. Glavna prostorska organizacija združuje niz obodnih pisarniških prostorov okrog osrednjega servisnega in konstrukcijskega jedra. Povezovalna krožna pot je bila pred pričetkom dolga in temačna.
Izhodiščno stanje in izziv
Dolga, temačna povezava med pisarnami je ustvarjala občutek zaprtosti in težke prostorske dinamike. Osrednje betonsko jedro je prostorsko prevladovalo in omejevalo občutek odprtosti.
Arhitekturna rešitev
Z oblogo osrednjega volumna v črnem steklu smo ustvarili občutek praznine, ki vizualno briše volumen in daje vtis "črne luknje". Dematerializacijo betonskih sten poudarjajo odsevi steklenih površin ter bel napis, ki teče po obodu. Ta element ni le estetski, temveč tudi nosilec blagovne znamke: logotip podjetja obiskovalca pozdravi ob vhodu, linija napisa z navedbo hčerinskih podjetij pa ga subtilno vodi skozi prostor.
Ureditev poslovnih prostorov sedeža GBD je primer, kako lahko premišljeno oblikovanje prostora slabost spremeni v prednost. Glavna prostorska organizacija združuje niz obodnih pisarniških prostorov okrog osrednjega servisnega in konstrukcijskega jedra. Povezovalna krožna pot je bila pred pričetkom dolga in temačna.
Izhodiščno stanje in izziv
Dolga, temačna povezava med pisarnami je ustvarjala občutek zaprtosti in težke prostorske dinamike. Osrednje betonsko jedro je prostorsko prevladovalo in omejevalo občutek odprtosti.
Arhitekturna rešitev
Z oblogo osrednjega volumna v črnem steklu smo ustvarili občutek praznine, ki vizualno briše volumen in daje vtis "črne luknje". Dematerializacijo betonskih sten poudarjajo odsevi steklenih površin ter bel napis, ki teče po obodu. Ta element ni le estetski, temveč tudi nosilec blagovne znamke: logotip podjetja obiskovalca pozdravi ob vhodu, linija napisa z navedbo hčerinskih podjetij pa ga subtilno vodi skozi prostor.
2008
Poslovni prostori
družbe GBD












Fotografije
Fotografije
Fotografije
Interier in materiali
Občutek velikega, povezanega osrednjega prostora podpirajo prostori za razgovore, druženje in sestanke, ki so ločeni le s stekleno opno. Velike steklene površine pisarn omogočajo prehajanje svetlobe globoko v notranjost in krepijo prostorsko pretočnost. Pisarniški prostori imajo kontrastno barvno zasnovo, ki sledi značaju osrednjega prostora, medtem ko v upravnih prostorih les in žlahtnejši materiali poudarjajo reprezentančnost.
Učinek
Osrednji prostor, ki je bil prej prostorska slabost, je postal vizualno in identitetno središče podjetja. Zaposlenim nudi pregledno, odprto in povezano delovno okolje, obiskovalcem pa močan vtis profesionalnosti in prepoznavne blagovne znamke.
Zaključna misel
Projekt dokazuje, da premišljeno oblikovanje lahko preseže prostorske omejitve in jih spremeni v prednost – ambient, ki prispeva k identiteti podjetja.
Interier in materiali
Občutek velikega, povezanega osrednjega prostora podpirajo prostori za razgovore, druženje in sestanke, ki so ločeni le s stekleno opno. Velike steklene površine pisarn omogočajo prehajanje svetlobe globoko v notranjost in krepijo prostorsko pretočnost. Pisarniški prostori imajo kontrastno barvno zasnovo, ki sledi značaju osrednjega prostora, medtem ko v upravnih prostorih les in žlahtnejši materiali poudarjajo reprezentančnost.
Učinek
Osrednji prostor, ki je bil prej prostorska slabost, je postal vizualno in identitetno središče podjetja. Zaposlenim nudi pregledno, odprto in povezano delovno okolje, obiskovalcem pa močan vtis profesionalnosti in prepoznavne blagovne znamke.
Zaključna misel
Projekt dokazuje, da premišljeno oblikovanje lahko preseže prostorske omejitve in jih spremeni v prednost – ambient, ki prispeva k identiteti podjetja.
Interier in materiali
Občutek velikega, povezanega osrednjega prostora podpirajo prostori za razgovore, druženje in sestanke, ki so ločeni le s stekleno opno. Velike steklene površine pisarn omogočajo prehajanje svetlobe globoko v notranjost in krepijo prostorsko pretočnost. Pisarniški prostori imajo kontrastno barvno zasnovo, ki sledi značaju osrednjega prostora, medtem ko v upravnih prostorih les in žlahtnejši materiali poudarjajo reprezentančnost.
Učinek
Osrednji prostor, ki je bil prej prostorska slabost, je postal vizualno in identitetno središče podjetja. Zaposlenim nudi pregledno, odprto in povezano delovno okolje, obiskovalcem pa močan vtis profesionalnosti in prepoznavne blagovne znamke.
Zaključna misel
Projekt dokazuje, da premišljeno oblikovanje lahko preseže prostorske omejitve in jih spremeni v prednost – ambient, ki prispeva k identiteti podjetja.

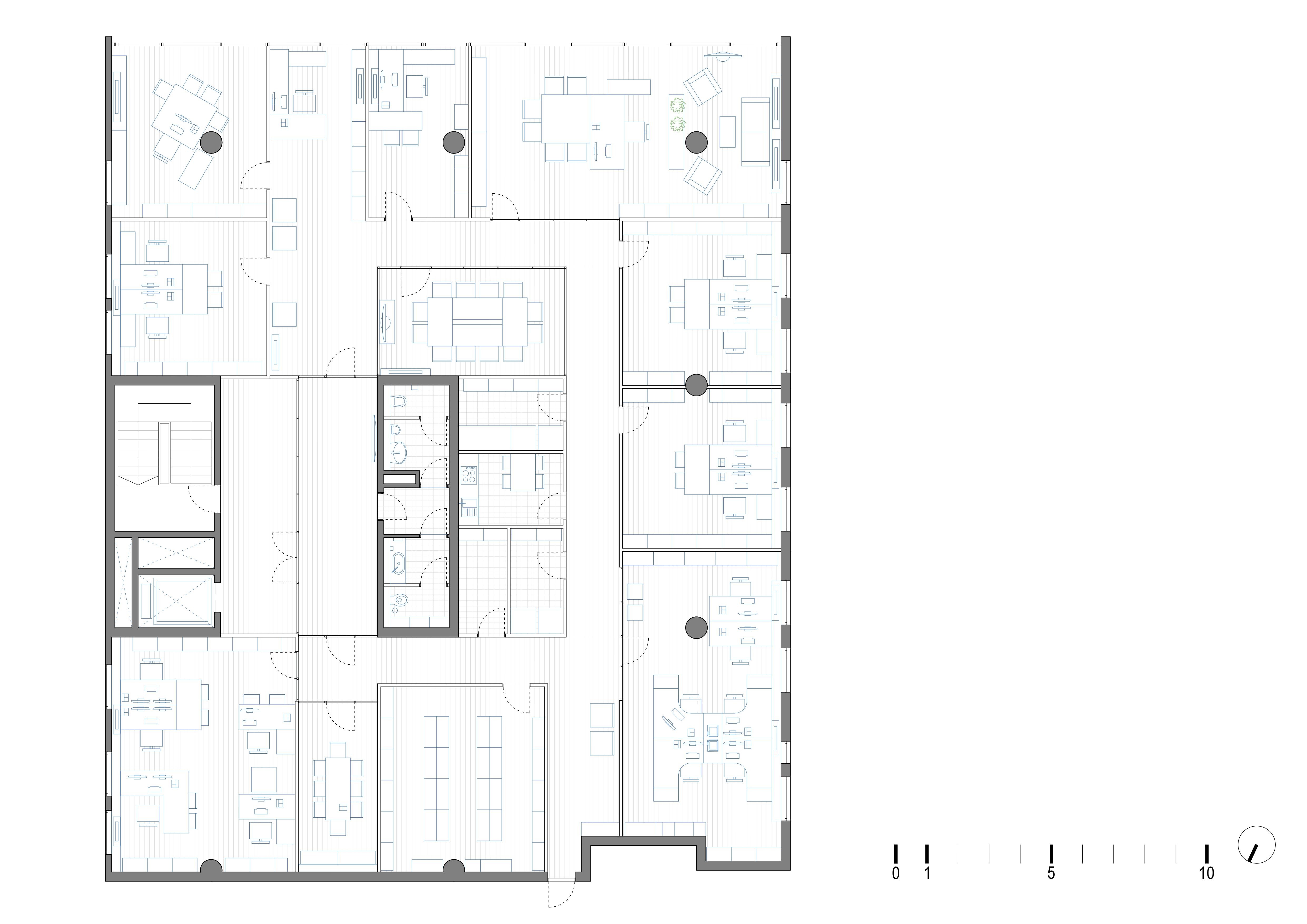
Tloris
Tloris
Tloris
Informacije o projektu
Lokacija: Kranj
Leto projekta: 2007
Leto izgradnje: 2008
Površina: 525 m2
Tip objekta: Poslovni prostor
Namembnost: Stanovanjska
Poseg: Novogradnja, prenova
Zasebni naročnik
Fotografije: Matevž Paternoster
Arhé, Špela Nardoni Kovač u.d.i.a.,
Barbara Nardoni u.d.o.
Informacije o projektu
Lokacija: Kranj
Leto projekta: 2007
Leto izgradnje: 2008
Površina: 525 m2
Tip objekta: Poslovni prostor
Namembnost: Stanovanjska
Poseg: Novogradnja, prenova
Zasebni naročnik
Fotografije: Matevž Paternoster
Arhé, Špela Nardoni Kovač u.d.i.a., Barbara Nardoni u.d.o.
Informacije o projektu
Lokacija: Kranj
Leto projekta: 2007
Leto izgradnje: 2008
Površina: 525 m2
Tip objekta: Poslovni prostor
Namembnost: Stanovanjska
Poseg: Novogradnja, prenova
Zasebni naročnik
Fotografije: Matevž Paternoster
Arhé, Špela Nardoni Kovač u.d.i.a., Barbara Nardoni u.d.o.
2008
Poslovni prostori družbe GBP