2025
Oskrbovana stanovanja v Ponikvah



Projekt oskrbovanih stanovanj v Ponikvah od prvih prostorskih preveritev dalje zaznamuje celovitost načrtovanja večnamenske stavbe, ki povezuje stanovanjski, skupnostni in poslovni program. Zasnova dopolnjuje obstoječo dejavnost socialno-varstvenega zavoda in ustvarja novo skupnostno jedro na robu naselja, ki povezuje prebivalce ter krepi lokalno ponudbo storitev.
Izhodišče in izzivi
Lokacija na prehodu med robom naselja in naravnim zaledjem je zahtevala arhitekturno rešitev, ki bo hkrati mestotvorna in skladna z okoliškim merilom. Izziv je predstavljala umestitev različnih vsebin v enoten volumen, ob upoštevanju zakonskih omejitev, bližine obstoječega zavoda in potrebe po skupnih površinah.
Arhitekturna rešitev
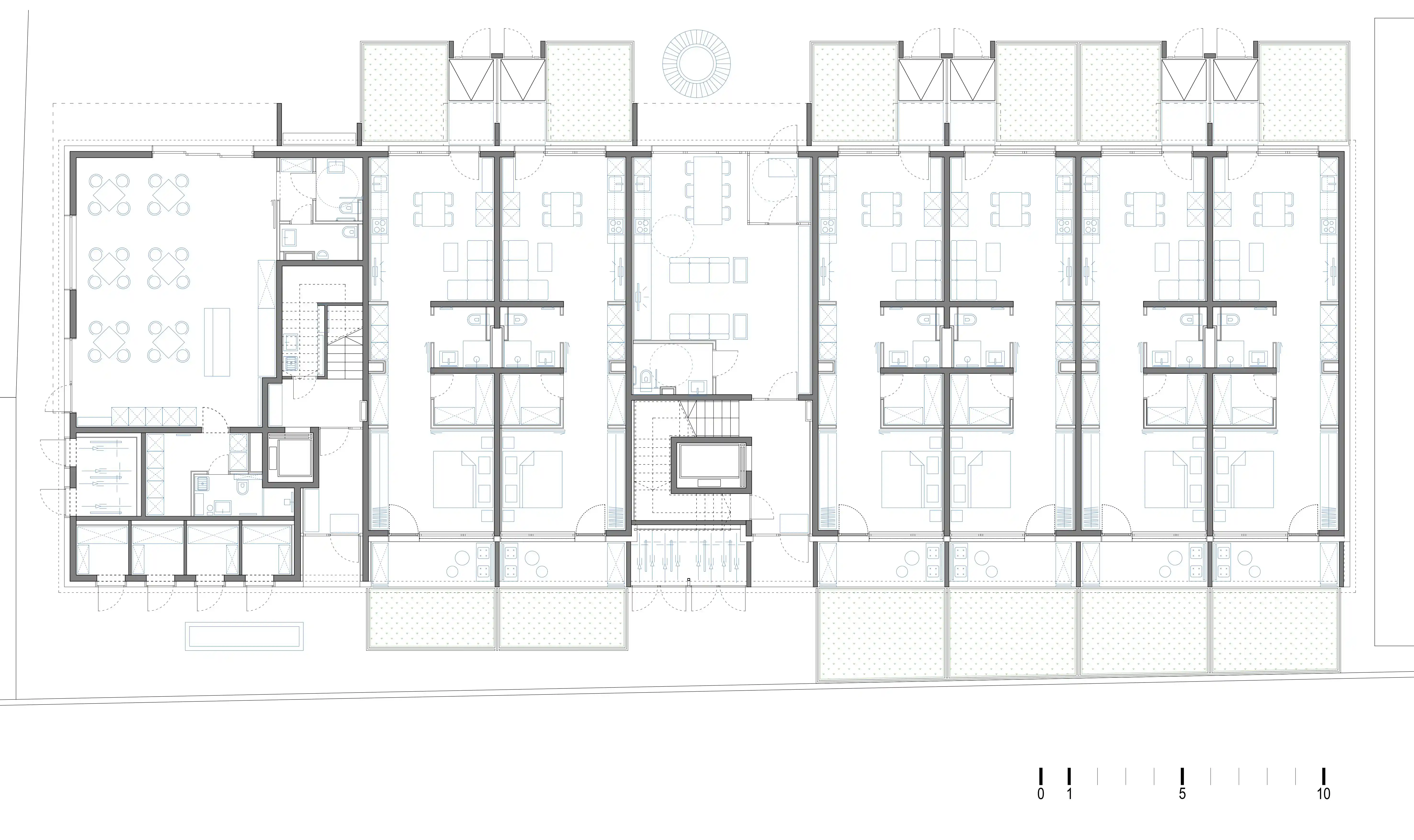
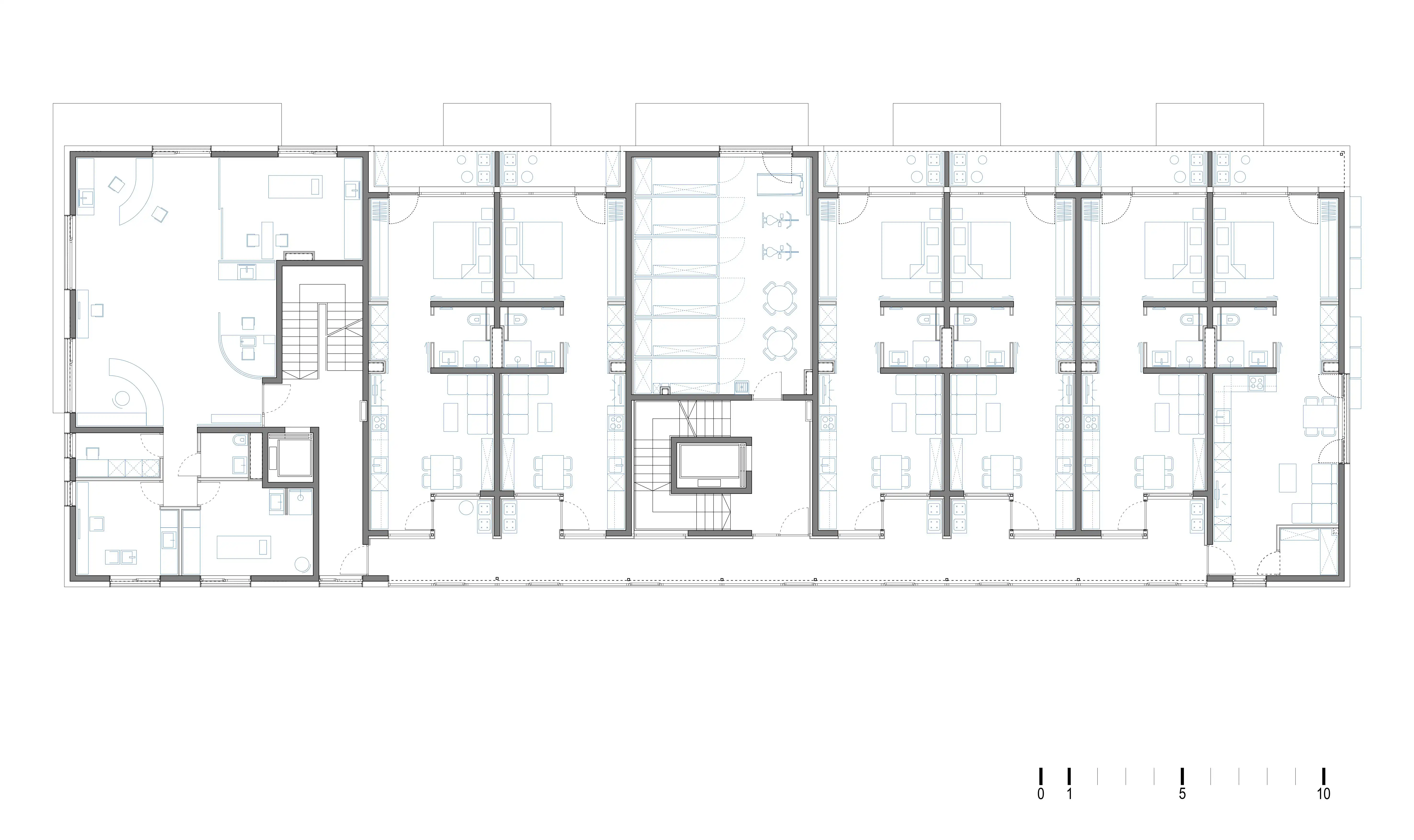
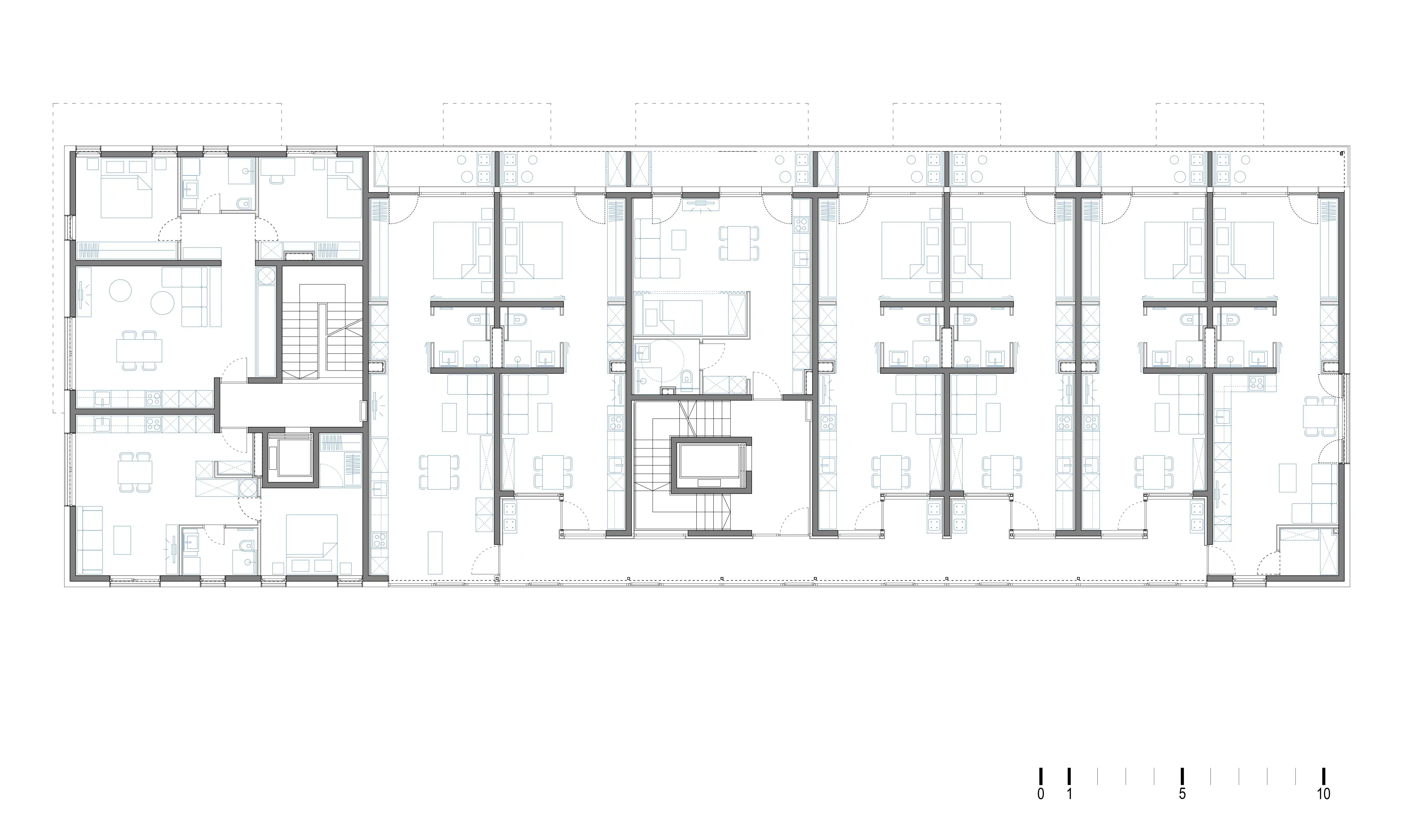
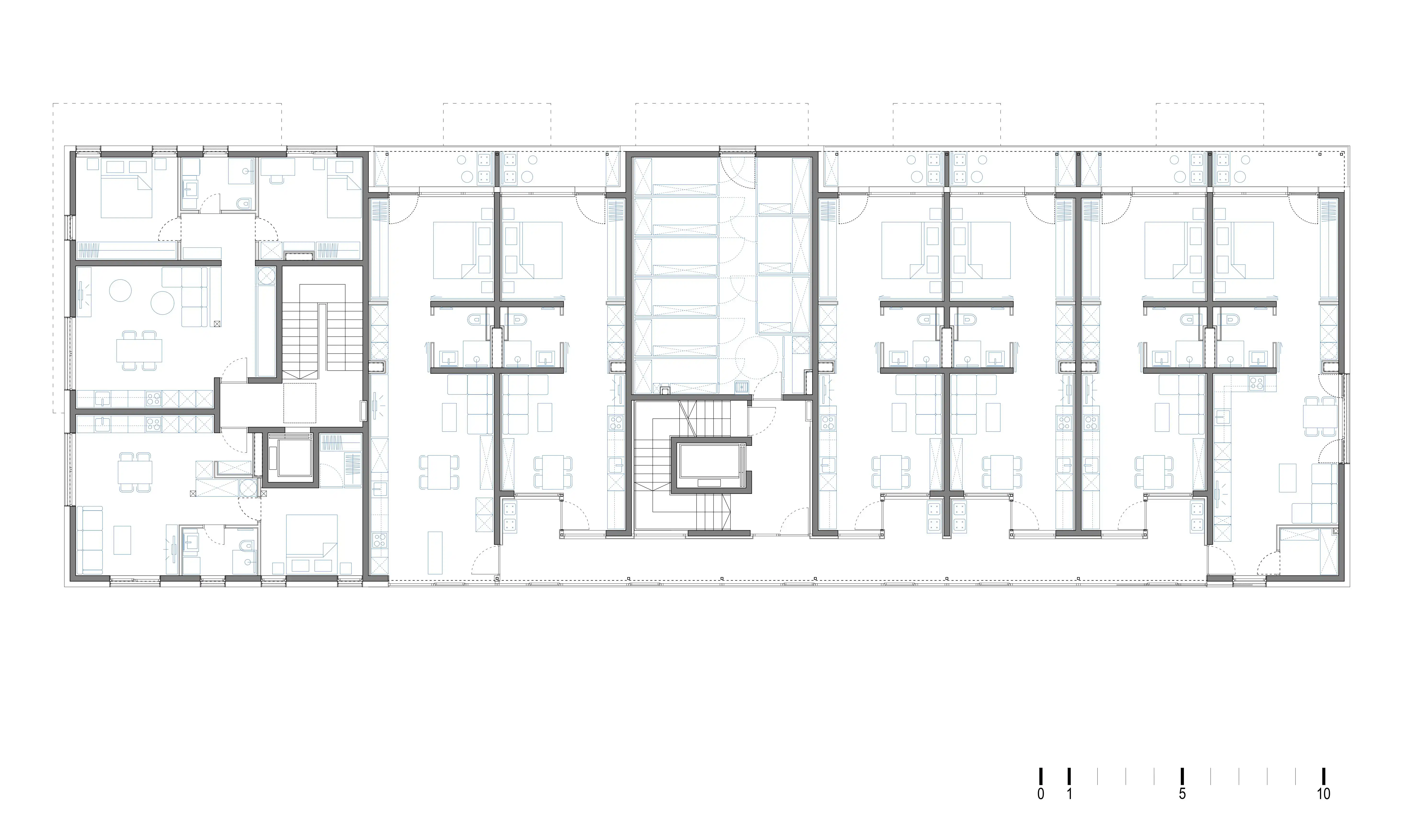
Kompleks je razdeljen na poslovno-stanovanjski del, obrnjen proti naselju, in umirjen del z oskrbovanimi stanovanji, ki je pomaknjen proti notranjosti območja. Povezovalni element stanovanjskega dela je zastekljen gank, ki poleti senči stanovanja, pozimi pa deluje kot toplotna zaščita in prostor za druženje. Ta “notranja ulica” ustvarja občutek soseske, kjer se zasebni predprostori nizajo kot vhodna dvorišča.
Tlorisna zasnova sledi ideji pretočnega bivanja: ob vhodu se prostor razširi v bivalni del s kuhinjo, jedilnim kotičkom in dnevno sobo, servisno jedro z kopalnico pa ločuje dnevni del od spalnice z ložo. Arhitekturno podobo zaznamujejo razgibane strehe, ki v notranjost prinašajo dodatno svetlobo in višino.
Projekt oskrbovanih stanovanj v Ponikvah od prvih prostorskih preveritev dalje zaznamuje celovitost načrtovanja večnamenske stavbe, ki povezuje stanovanjski, skupnostni in poslovni program. Zasnova dopolnjuje obstoječo dejavnost socialno-varstvenega zavoda in ustvarja novo skupnostno jedro na robu naselja, ki povezuje prebivalce ter krepi lokalno ponudbo storitev.
Izhodišče in izzivi
Lokacija na prehodu med robom naselja in naravnim zaledjem je zahtevala arhitekturno rešitev, ki bo hkrati mestotvorna in skladna z okoliškim merilom. Izziv je predstavljala umestitev različnih vsebin v enoten volumen, ob upoštevanju zakonskih omejitev, bližine obstoječega zavoda in potrebe po skupnih površinah.
Arhitekturna rešitev
Kompleks je razdeljen na poslovno-stanovanjski del, obrnjen proti naselju, in umirjen del z oskrbovanimi stanovanji, ki je pomaknjen proti notranjosti območja. Povezovalni element stanovanjskega dela je zastekljen gank, ki poleti senči stanovanja, pozimi pa deluje kot toplotna zaščita in prostor za druženje. Ta “notranja ulica” ustvarja občutek soseske, kjer se zasebni predprostori nizajo kot vhodna dvorišča.
Tlorisna zasnova sledi ideji pretočnega bivanja: ob vhodu se prostor razširi v bivalni del s kuhinjo, jedilnim kotičkom in dnevno sobo, servisno jedro z kopalnico pa ločuje dnevni del od spalnice z ložo. Arhitekturno podobo zaznamujejo razgibane strehe, ki v notranjost prinašajo dodatno svetlobo in višino.
Projekt oskrbovanih stanovanj v Ponikvah od prvih prostorskih preveritev dalje zaznamuje celovitost načrtovanja večnamenske stavbe, ki povezuje stanovanjski, skupnostni in poslovni program. Zasnova dopolnjuje obstoječo dejavnost socialno-varstvenega zavoda in ustvarja novo skupnostno jedro na robu naselja, ki povezuje prebivalce ter krepi lokalno ponudbo storitev.
Izhodišče in izzivi
Lokacija na prehodu med robom naselja in naravnim zaledjem je zahtevala arhitekturno rešitev, ki bo hkrati mestotvorna in skladna z okoliškim merilom. Izziv je predstavljala umestitev različnih vsebin v enoten volumen, ob upoštevanju zakonskih omejitev, bližine obstoječega zavoda in potrebe po skupnih površinah.
Arhitekturna rešitev
Kompleks je razdeljen na poslovno-stanovanjski del, obrnjen proti naselju, in umirjen del z oskrbovanimi stanovanji, ki je pomaknjen proti notranjosti območja. Povezovalni element stanovanjskega dela je zastekljen gank, ki poleti senči stanovanja, pozimi pa deluje kot toplotna zaščita in prostor za druženje. Ta “notranja ulica” ustvarja občutek soseske, kjer se zasebni predprostori nizajo kot vhodna dvorišča.
Tlorisna zasnova sledi ideji pretočnega bivanja: ob vhodu se prostor razširi v bivalni del s kuhinjo, jedilnim kotičkom in dnevno sobo, servisno jedro z kopalnico pa ločuje dnevni del od spalnice z ložo. Arhitekturno podobo zaznamujejo razgibane strehe, ki v notranjost prinašajo dodatno svetlobo in višino.
2025
Oskrbovana stanovanja
v Ponikvah












Vizualizacije
Vizualizacije
Vizualizacije
Program in funkcionalnost
Poslovno-stanovanjski del vključuje gostinski lokal, kozmetični salon in prostore zdravstvene nege, ki so dostopni tako stanovalcem kot širši skupnosti. Stanovanja v pritličju imajo zasebne atrije, višja nadstropja pa povezujeta dvigalo in skupni prostori. Med obema deloma stavbe je notranja povezava, ki omogoča lahek dostop do storitev vsem stanovalcem.
Učinek
Projekt združuje udobno in varno bivanje s skupnostnimi prostori ter dostopom do storitev, ki izboljšujejo kakovost življenja starejših. Arhitekturna zasnova krepi občutek domačnosti, spodbuja družabnost in povezuje stavbo z okoljem, hkrati pa je funkcionalno, energetsko in estetsko premišljena.
Zaključna misel
Stavbo in prostore kompleksa oskrbovanih stanovanj smo zasnovali z mislijo na potrebe in doživljanje starejšega človeka. Skušali smo ustvariti pravo razmerje med podporo okolja in neodvisnostjo ter zasebnostjo in družabnostjo. Stavba uporabnikom nudi varnost obenem pa spodbuja občutek povezanosti s skupnostjo in naravnim okoljem.
Program in funkcionalnost
Poslovno-stanovanjski del vključuje gostinski lokal, kozmetični salon in prostore zdravstvene nege, ki so dostopni tako stanovalcem kot širši skupnosti. Stanovanja v pritličju imajo zasebne atrije, višja nadstropja pa povezujeta dvigalo in skupni prostori. Med obema deloma stavbe je notranja povezava, ki omogoča lahek dostop do storitev vsem stanovalcem.
Učinek
Projekt združuje udobno in varno bivanje s skupnostnimi prostori ter dostopom do storitev, ki izboljšujejo kakovost življenja starejših. Arhitekturna zasnova krepi občutek domačnosti, spodbuja družabnost in povezuje stavbo z okoljem, hkrati pa je funkcionalno, energetsko in estetsko premišljena.
Zaključna misel
Stavbo in prostore kompleksa oskrbovanih stanovanj smo zasnovali z mislijo na potrebe in doživljanje starejšega človeka. Skušali smo ustvariti pravo razmerje med podporo okolja in neodvisnostjo ter zasebnostjo in družabnostjo. Stavba uporabnikom nudi varnost obenem pa spodbuja občutek povezanosti s skupnostjo in naravnim okoljem.
Program in funkcionalnost
Poslovno-stanovanjski del vključuje gostinski lokal, kozmetični salon in prostore zdravstvene nege, ki so dostopni tako stanovalcem kot širši skupnosti. Stanovanja v pritličju imajo zasebne atrije, višja nadstropja pa povezujeta dvigalo in skupni prostori. Med obema deloma stavbe je notranja povezava, ki omogoča lahek dostop do storitev vsem stanovalcem.
Učinek
Projekt združuje udobno in varno bivanje s skupnostnimi prostori ter dostopom do storitev, ki izboljšujejo kakovost življenja starejših. Arhitekturna zasnova krepi občutek domačnosti, spodbuja družabnost in povezuje stavbo z okoljem, hkrati pa je funkcionalno, energetsko in estetsko premišljena.
Zaključna misel
Stavbo in prostore kompleksa oskrbovanih stanovanj smo zasnovali z mislijo na potrebe in doživljanje starejšega človeka. Skušali smo ustvariti pravo razmerje med podporo okolja in neodvisnostjo ter zasebnostjo in družabnostjo. Stavba uporabnikom nudi varnost obenem pa spodbuja občutek povezanosti s skupnostjo in naravnim okoljem.












Tloris pritličja, 1., 2. nadstropja, mansarde
Tloris pritličja, 1., 2. nadstropja, mansarde
Tloris pritličja, 1., 2. nadstropja, mansarde
Informacije o projektu
Lokacija: Videm - Dobrepolje
Leto projekta: 2022
Leto izgradnje: 2025
Površina: 2200 m2
Tip objekta: Poslovno-stanovanjski objekt
Namembnost: Stanovanjska gradnja/javna gradnja/poslovno-stanovanjska
Poseg: Novogradnja/notranja ureditev
Naročnik: Mix d.o.o
Atelje Ber.Nard: Igor Berlot, Špela Nardoni Kovač,
Lucija Draginić, Marko Horvat
Informacije o projektu
Lokacija: Videm - Dobrepolje
Leto projekta: 2022
Leto izgradnje: 2025
Površina: 2200 m2
Tip objekta: Poslovno-stanovanjski objekt
Namembnost: Stanovanjska gradnja/javna gradnja/poslovno-stanovanjska
Poseg: Novogradnja/notranja ureditev
Naročnik: Mix d.o.o
Atelje Ber.Nard: Igor Berlot, Špela Nardoni Kovač,
Lucija Draginić, Marko Horvat
Informacije o projektu
Lokacija: 1312 Videm - Dobrepolje
Leto projekta: 2022
Leto izgradnje: 2025
Površina: 2200 m2
Tip objekta: Poslovno-stanovanjski objekt
Namembnost: Stanovanjska gradnja/javna gradnja/poslovno-stanovanjska
Poseg: Novogradnja, notranja ureditev
Naročnik: Mix d.o.o
Fotografije:
Atelje Ber.Nard: Igor Berlot, Špela Nardoni Kovač,
Marko Horvat, Lucija Draginić
2025
Oskrbovana
stanovanja v
Ponikvah