2022
Notranja
preureditev
stanovanja
v Ljubljani
2022
Notranja
preureditev
stanovanja
v Ljubljani



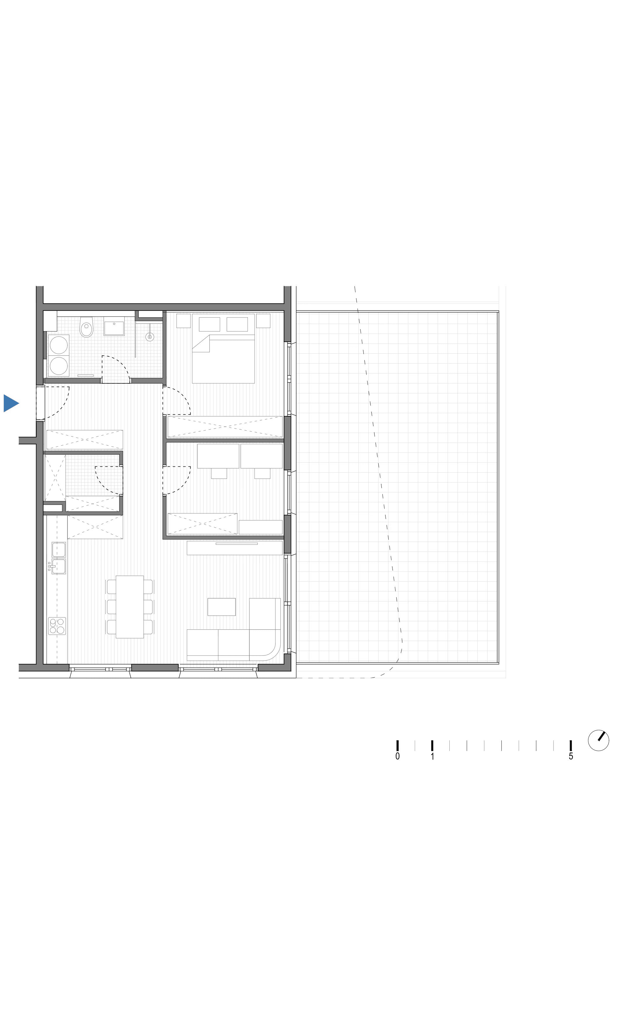
Prenova manjšega stanovanja v novi večstanovanjski stavbi je s premišljenimi oblikovalskimi prijemi spremenila način doživljanja prostora. Iz izhodiščnega tlorisa dvoinpolsobnega stanovanja, kjer je bil bivalni del dostopen preko ožine med vhodom in kuhinjo, smo ustvarili pretočen, povezan in prostoren ambient. Premišljena ureditev je združila posamezne prostore v enovito celoto in občutek utesnjenosti nadomestila z občutkom odprtosti.
Izhodiščno stanje
Shramba, umeščena med vhod in kuhinjo, je ustvarjala ozko prehodno območje in vizualno ločevala bivalne prostore. Dolg in ozek tloris je bil prostorsko neuravnotežen in zaprt, kar je omejevalo udobno bivanje.
Arhitekturna rešitev
Poltransparentna lesena stenska obloga z diskretnim odmikom od tal in stropa deluje kot lahek paravan – prostor razmeji, ne da bi ga zaprl. Kuhinjski blok se preko te obloge poveže z garderobnim korpusom, vhodni prostor pa se kljub ožini zvezno pretoči v dnevno-bivalni del. Nadaljevanje talne površine v obliki podokenske parapetne obloge vizualno razširi ozek prostor ter ustvari občutek uravnoteženosti. Enako načelo prostorske širitve je uporabljeno tudi v spalnici.
Prenova manjšega stanovanja v novi večstanovanjski stavbi je s premišljenimi oblikovalskimi prijemi spremenila način doživljanja prostora. Iz izhodiščnega tlorisa dvoinpolsobnega stanovanja, kjer je bil bivalni del dostopen preko ožine med vhodom in kuhinjo, smo ustvarili pretočen, povezan in prostoren ambient. Premišljena ureditev je združila posamezne prostore v enovito celoto in občutek utesnjenosti nadomestila z občutkom odprtosti.
Izhodiščno stanje
Shramba, umeščena med vhod in kuhinjo, je ustvarjala ozko prehodno območje in vizualno ločevala bivalne prostore. Dolg in ozek tloris je bil prostorsko neuravnotežen in zaprt, kar je omejevalo udobno bivanje.
Arhitekturna rešitev
Poltransparentna lesena stenska obloga z diskretnim odmikom od tal in stropa deluje kot lahek paravan – prostor razmeji, ne da bi ga zaprl. Kuhinjski blok se preko te obloge poveže z garderobnim korpusom, vhodni prostor pa se kljub ožini zvezno pretoči v dnevno-bivalni del. Nadaljevanje talne površine v obliki podokenske parapetne obloge vizualno razširi ozek prostor ter ustvari občutek uravnoteženosti. Enako načelo prostorske širitve je uporabljeno tudi v spalnici.
Prenova manjšega stanovanja v novi večstanovanjski stavbi je s premišljenimi oblikovalskimi prijemi spremenila način doživljanja prostora. Iz izhodiščnega tlorisa dvoinpolsobnega stanovanja, kjer je bil bivalni del dostopen preko ožine med vhodom in kuhinjo, smo ustvarili pretočen, povezan in prostoren ambient. Premišljena ureditev je združila posamezne prostore v enovito celoto in občutek utesnjenosti nadomestila z občutkom odprtosti.
Izhodiščno stanje
Shramba, umeščena med vhod in kuhinjo, je ustvarjala ozko prehodno območje in vizualno ločevala bivalne prostore. Dolg in ozek tloris je bil prostorsko neuravnotežen in zaprt, kar je omejevalo udobno bivanje.
Arhitekturna rešitev
Poltransparentna lesena stenska obloga z diskretnim odmikom od tal in stropa deluje kot lahek paravan – prostor razmeji, ne da bi ga zaprl. Kuhinjski blok se preko te obloge poveže z garderobnim korpusom, vhodni prostor pa se kljub ožini zvezno pretoči v dnevno-bivalni del. Nadaljevanje talne površine v obliki podokenske parapetne obloge vizualno razširi ozek prostor ter ustvari občutek uravnoteženosti. Enako načelo prostorske širitve je uporabljeno tudi v spalnici.
2022
Notranja preureditev stanovanja v Ljubljani





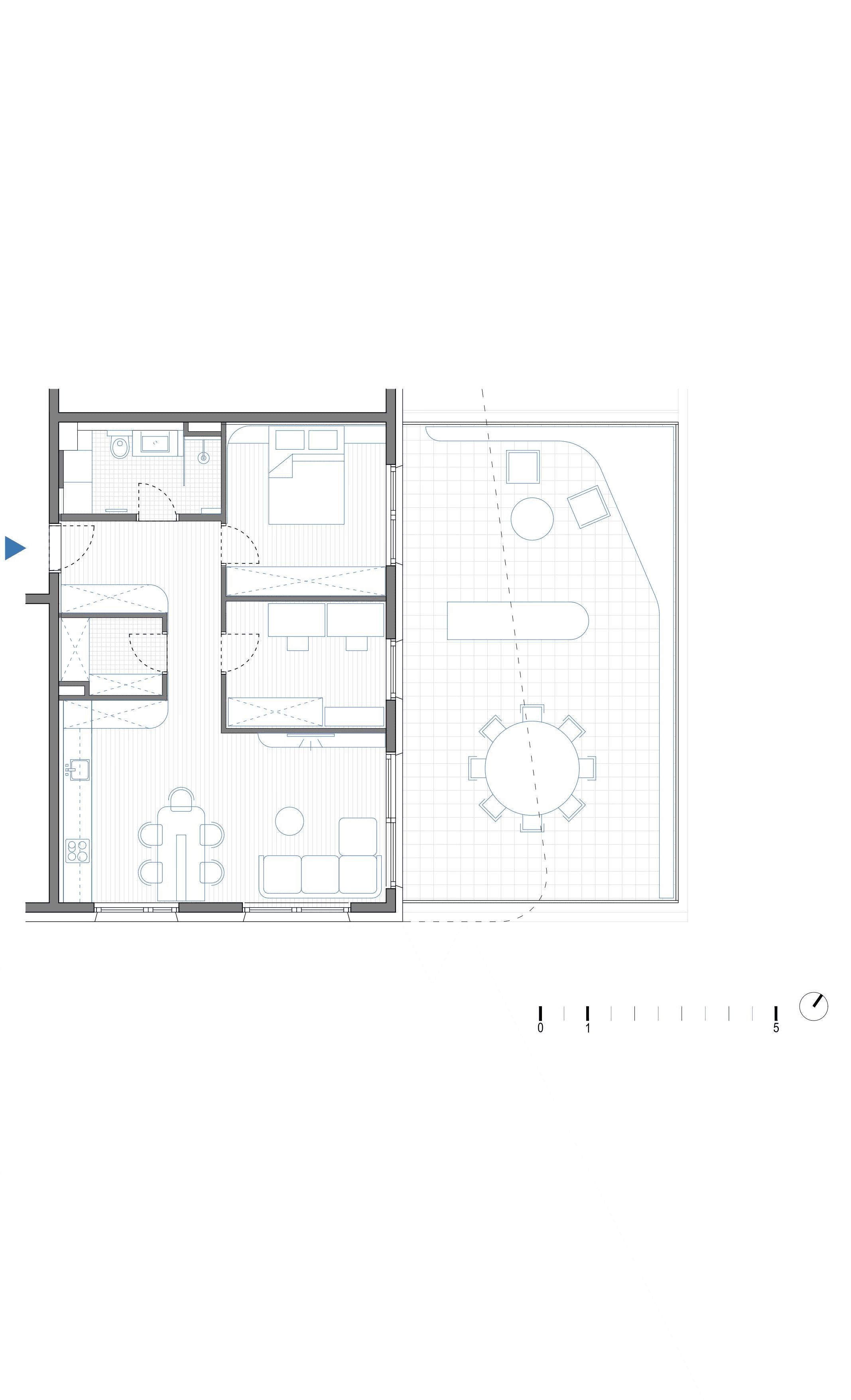
1.Zaokroževanje vogalov - mehko prehajanje prostorov
2.Obloga izpostavljenih sten - Izrez kubusa - večanja prostora
3.Zgib talne obloge na steno - optična razširitev prostora
1.Zaokroževanje vogalov - mehko prehajanje prostorov
2.Obloga izpostavljenih sten - Izrez kubusa - večanja prostora
3.Zgib talne obloge na steno - optična razširitev prostora
Zaokroževanje vogalov - mehko prehajanje prostorov
Obloga izpostavljenih sten
- Izrez kubusa - večanja prostora
Zgib talne obloge na steno - optična razširitev prostora












Fotografije
Fotografije
Fotografije
Interier in oblikovni poudarki
Vtis enovitosti, pretočnosti in povezanosti krepijo zaobljeni vogali, ki v prostor vnašajo mehkobo in prijetno vzdušje. Vertikalna letvasta struktura stenske obloge dodaja eleganten in sodoben značaj. Za stanovanje je bila posebej oblikovana raztegljiva miza, katere kamniti pas v sredini služi kot dekorativen element obenem pa je funkcionalen podstavek za vroče posode.
Učinek na bivanje
S premišljenim povezovanjem funkcionalnih elementov se je bistveno spremenilo dojemanje prostora – stanovanje je pridobilo več svetlobe, prostorskega toka in občutek večje prostornosti, kar ustvarja udobno in estetsko bivalno okolje.
Zaključna misel
Projekt temelji na premisleku o tem, kako naj prostor deluje pri vsakdanji uporabi in kakšne občutke naj prebudi pri uporabnikih. Pristop omogoča, da tudi manjši prostori postanejo prijetni, funkcionalni in navdihujoči.
Interier in oblikovni poudarki
Vtis enovitosti, pretočnosti in povezanosti krepijo zaobljeni vogali, ki v prostor vnašajo mehkobo in prijetno vzdušje. Vertikalna letvasta struktura stenske obloge dodaja eleganten in sodoben značaj. Za stanovanje je bila posebej oblikovana raztegljiva miza, katere kamniti pas v sredini služi kot dekorativen element obenem pa je funkcionalen podstavek za vroče posode.
Učinek na bivanje
S premišljenim povezovanjem funkcionalnih elementov se je bistveno spremenilo dojemanje prostora – stanovanje je pridobilo več svetlobe, prostorskega toka in občutek večje prostornosti, kar ustvarja udobno in estetsko bivalno okolje.
Zaključna misel
Projekt temelji na premisleku o tem, kako naj prostor deluje pri vsakdanji uporabi in kakšne občutke naj prebudi pri uporabnikih. Pristop omogoča, da tudi manjši prostori postanejo prijetni, funkcionalni in navdihujoči.
Interier in oblikovni poudarki
Vtis enovitosti, pretočnosti in povezanosti krepijo zaobljeni vogali, ki v prostor vnašajo mehkobo in prijetno vzdušje. Vertikalna letvasta struktura stenske obloge dodaja eleganten in sodoben značaj. Za stanovanje je bila posebej oblikovana raztegljiva miza, katere kamniti pas v sredini služi kot dekorativen element obenem pa je funkcionalen podstavek za vroče posode.
Učinek na bivanje
S premišljenim povezovanjem funkcionalnih elementov se je bistveno spremenilo dojemanje prostora – stanovanje je pridobilo več svetlobe, prostorskega toka in občutek večje prostornosti, kar ustvarja udobno in estetsko bivalno okolje.
Zaključna misel
Projekt temelji na premisleku o tem, kako naj prostor deluje pri vsakdanji uporabi in kakšne občutke naj prebudi pri uporabnikih. Pristop omogoča, da tudi manjši prostori postanejo prijetni, funkcionalni in navdihujoči.










Tloris obstojče - novo
Tloris obstojče - novo
Tloris obstojče - novo
Informacije o projektu
Lokacija: Ljubljana - Rudnik
Leto projekta: 2021
Leto izgradnje: 2022
Površina: 55 m2
Tip objekta: Stanovanje
Namembnost: Stanovanjska gradnja
Poseg: Notranja ureditev
Zasebni naročnik
Fotografije: Miran Kambič
Atelje Ber.Nard: Igor Berlot, Špela Nardoni Kovač,
Marko Horvat
Informacije o projektu
Lokacija: Ljubljana - Rudnik
Leto projekta: 2021
Leto izgradnje: 2022
Površina: 55 m2
Tip objekta: Stanovanje
Namembnost: Stanovanjska gradnja
Poseg: Notranja ureditev
Zasebni naročnik
Fotografije: Miran Kambič
Atelje Ber.Nard: Igor Berlot, Špela Nardoni Kovač,
Marko Horvat
Informacije o projektu
Lokacija: Ljubljana - Rudnik
Leto projekta: 2021
Leto izgradnje: 2022
Površina: 55 m2
Tip objekta: Stanovanje
Namembnost: Stanovanjska gradnja
Poseg: Notranja ureditev
Zasebni naročnik
Fotografije: Miran Kambič
Atelje Ber.Nard: Igor Berlot, Špela Nardoni Kovač,
Veronika Batistič, Marko Horvat
2022
Notranja preureditev
stanovanja v
Ljubljani