2022
Notranja
preureditev
stanovanjske
hiše
2022
Notranja
preureditev
stanovanjske
hiše



Prenova stanovanjske hiše je preoblikovala tipsko zasnovo v svetel, pretočen in povezan dom, ki podpira življenjski slog stanovalcev ter njihovo dobro počutje. Premišljena organizacija prostora neposredno vpliva na kakovost bivanja – narekuje ritem vsakdanjega življenja in oblikuje vzdušje doma.
Izhodiščno stanje
Stanovalci se v novejši, tipsko grajeni hiši niso dobro počutili. Tloris pritličja in razporeditev opreme sta omejevala naravno komunikacijo med prostori in zapirala povezave z zunanjimi bivalnimi površinami. Prostor ni omogočal lahkotnega gibanja in svobodne uporabe doma.
Arhitekturna rešitev
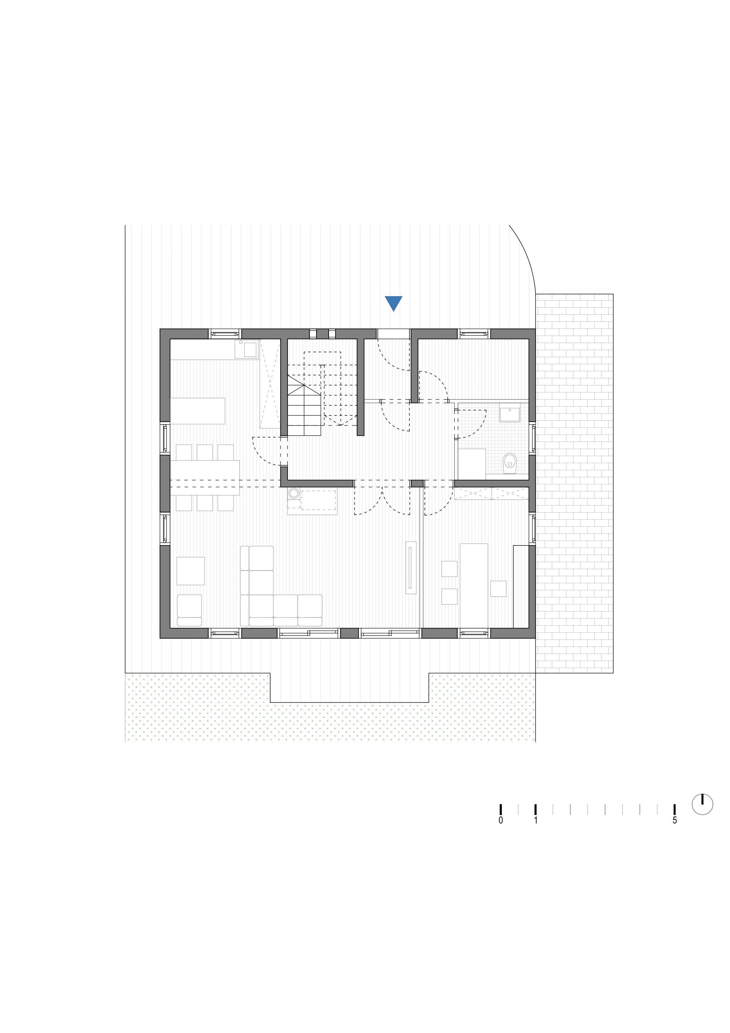
S celovito prenovo pritličja smo odstranili izbrane predelne stene in izvedli ključne preboje, ki so hišo povezali v prostorno celoto ter jo odprli proti vrtu. Delovni prostor smo umestili v zaledje, kuhinjo z jedilnico postavili nasproti vhodu, dnevna soba pa je postala osrednji povezovalni prostor. K prostornosti pomembno prispeva tudi notranja oprema, zasnovana tako, da hodnik povezuje z bivalnim delom in stopniščem.
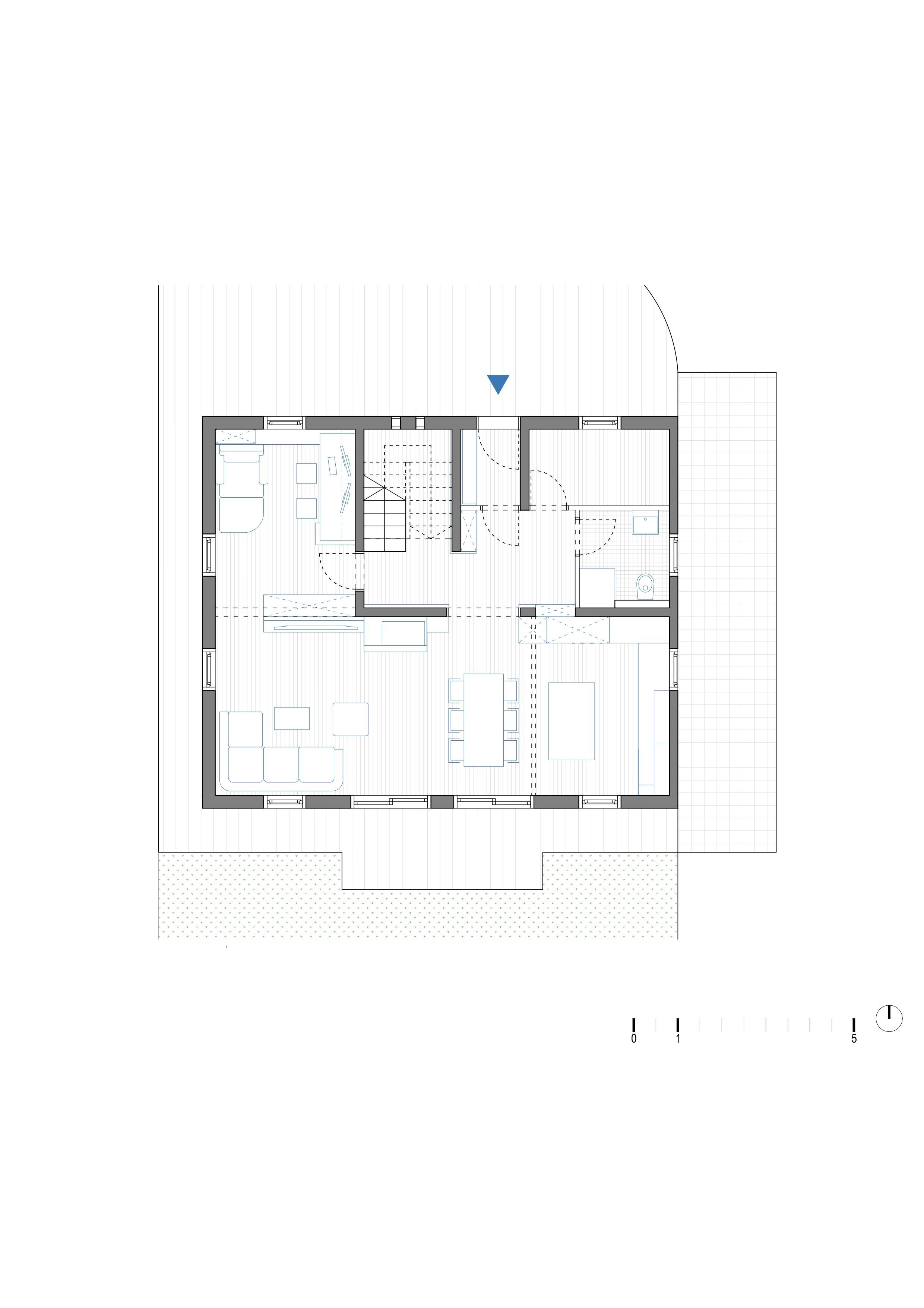
Nova krožno zasnovana prostorska organizacija omogoča, da se svetel bivalni prostor pretoči v mansardo, kjer smo nekdanjo shrambo preuredili v kotiček za delo od doma s pogledom na stopnišče.
Prenova stanovanjske hiše je preoblikovala tipsko zasnovo v svetel, pretočen in povezan dom, ki podpira življenjski slog stanovalcev ter njihovo dobro počutje. Premišljena organizacija prostora neposredno vpliva na kakovost bivanja – narekuje ritem vsakdanjega življenja in oblikuje vzdušje doma.
Izhodiščno stanje
Stanovalci se v novejši, tipsko grajeni hiši niso dobro počutili. Tloris pritličja in razporeditev opreme sta omejevala naravno komunikacijo med prostori in zapirala povezave z zunanjimi bivalnimi površinami. Prostor ni omogočal lahkotnega gibanja in svobodne uporabe doma.
Arhitekturna rešitev
S celovito prenovo pritličja smo odstranili izbrane predelne stene in izvedli ključne preboje, ki so hišo povezali v prostorno celoto ter jo odprli proti vrtu. Delovni prostor smo umestili v zaledje, kuhinjo z jedilnico postavili nasproti vhodu, dnevna soba pa je postala osrednji povezovalni prostor. K prostornosti pomembno prispeva tudi notranja oprema, zasnovana tako, da hodnik povezuje z bivalnim delom in stopniščem.
Nova krožno zasnovana prostorska organizacija omogoča, da se svetel bivalni prostor pretoči v mansardo, kjer smo nekdanjo shrambo preuredili v kotiček za delo od doma s pogledom na stopnišče.
Prenova stanovanjske hiše je preoblikovala tipsko zasnovo v svetel, pretočen in povezan dom, ki podpira življenjski slog stanovalcev ter njihovo dobro počutje. Premišljena organizacija prostora neposredno vpliva na kakovost bivanja – narekuje ritem vsakdanjega življenja in oblikuje vzdušje doma.
Izhodiščno stanje
Stanovalci se v novejši, tipsko grajeni hiši niso dobro počutili. Tloris pritličja in razporeditev opreme sta omejevala naravno komunikacijo med prostori in zapirala povezave z zunanjimi bivalnimi površinami. Prostor ni omogočal lahkotnega gibanja in svobodne uporabe doma.
Arhitekturna rešitev
S celovito prenovo pritličja smo odstranili izbrane predelne stene in izvedli ključne preboje, ki so hišo povezali v prostorno celoto ter jo odprli proti vrtu. Delovni prostor smo umestili v zaledje, kuhinjo z jedilnico postavili nasproti vhodu, dnevna soba pa je postala osrednji povezovalni prostor. K prostornosti pomembno prispeva tudi notranja oprema, zasnovana tako, da hodnik povezuje z bivalnim delom in stopniščem.
Nova krožno zasnovana prostorska organizacija omogoča, da se svetel bivalni prostor pretoči v mansardo, kjer smo nekdanjo shrambo preuredili v kotiček za delo od doma s pogledom na stopnišče.
2022
Notranja preureditev stanovanjske hiše















Fotografije
Fotografije
Fotografije
Interier in materiali
Zasnova interierja sledi želji po prostorni povezanosti notranjih prostorov in ponovni uporabi izbranih obstoječih kosov pohištva. Bela kuhinja je dopolnjena z nizom lesenih elementov in oblog, ki subtilno razmejujejo in hkrati povezujejo prostore. Enak princip povezovanja, širjenja in odpiranja pogledov smo uporabili tudi pri ostali notranji opremi, kar ustvarja harmonično prostorsko izkušnjo.
Učinek na bivanje
Po prenovi hiša s svojo funkcionalno razporeditvijo, estetsko usklajenostjo in novo prostornostjo stanovalcem nudi povsem drugačno kakovost bivanja – spodbuja druženje, omogoča zasebnost, povezuje z zunanjostjo in ustvarja občutek domačnosti.
Zaključna misel
Temeljit razmislek o dejanskih potrebah stanovalcev in potencialih, ki jih prostor ponuja, je bil osnova za uspešno prenovo, ki se kaže z zadovoljstvom uporabnikov.
Interier in materiali
Zasnova interierja sledi želji po prostorni povezanosti notranjih prostorov in ponovni uporabi izbranih obstoječih kosov pohištva. Bela kuhinja je dopolnjena z nizom lesenih elementov in oblog, ki subtilno razmejujejo in hkrati povezujejo prostore. Enak princip povezovanja, širjenja in odpiranja pogledov smo uporabili tudi pri ostali notranji opremi, kar ustvarja harmonično prostorsko izkušnjo.
Učinek na bivanje
Po prenovi hiša s svojo funkcionalno razporeditvijo, estetsko usklajenostjo in novo prostornostjo stanovalcem nudi povsem drugačno kakovost bivanja – spodbuja druženje, omogoča zasebnost, povezuje z zunanjostjo in ustvarja občutek domačnosti.
Zaključna misel
Temeljit razmislek o dejanskih potrebah stanovalcev in potencialih, ki jih prostor ponuja, je bil osnova za uspešno prenovo, ki se kaže z zadovoljstvom uporabnikov.
Interier in materiali
Zasnova interierja sledi želji po prostorni povezanosti notranjih prostorov in ponovni uporabi izbranih obstoječih kosov pohištva. Bela kuhinja je dopolnjena z nizom lesenih elementov in oblog, ki subtilno razmejujejo in hkrati povezujejo prostore. Enak princip povezovanja, širjenja in odpiranja pogledov smo uporabili tudi pri ostali notranji opremi, kar ustvarja harmonično prostorsko izkušnjo.
Učinek na bivanje
Po prenovi hiša s svojo funkcionalno razporeditvijo, estetsko usklajenostjo in novo prostornostjo stanovalcem nudi povsem drugačno kakovost bivanja – spodbuja druženje, omogoča zasebnost, povezuje z zunanjostjo in ustvarja občutek domačnosti.
Zaključna misel
Temeljit razmislek o dejanskih potrebah stanovalcev in potencialih, ki jih prostor ponuja, je bil osnova za uspešno prenovo, ki se kaže z zadovoljstvom uporabnikov.













Tloris obstoječe - novo (pritličje, nadstropje)
Tloris obstoječe - novo (pritličje, nadstropje)
Tloris obstoječe - novo (pritličje, nadstropje)
Informacije o projektu
Lokacija: Gmajnice v Komendi
Leto projekta: 2021
Leto izgradnje: 2022
Površina: 126 m2
Tip objekta: Stanovanjska hiša
Namembnost: Stanovanjska
Poseg: Notranja ureditev, prenova
Zasebni naročnik
Fotografije: Miran Kambič
Atelje Ber.Nard: Igor Berlot, Špela Nardoni Kovač,
Marko Horvat, Veronika Batistič, Lucija Draginić
Informacije o projektu
Lokacija: Gmajnice v Komendi
Leto projekta: 2021
Leto izgradnje: 2022
Površina: 126 m2
Tip objekta: Stanovanjska hiša
Namembnost: Stanovanjska
Poseg: Notranja ureditev, prenova
Zasebni naročnik
Fotografije: Miran Kambič
Atelje Ber.Nard: Igor Berlot, Špela Nardoni Kovač,
Marko Horvat, Veronika Batistič, Lucija Draginić
Informacije o projektu
Lokacija: Gmajnice v Komendi
Leto projekta: 2021
Leto izgradnje: 2022
Površina: 126 m2
Tip objekta: Stanovanjska hiša
Namembnost: Stanovanjska
Poseg: Notranja ureditev, prenova
Zasebni naročnik
Fotografije: ?
Atelje Ber.Nard: Igor Berlot, Špela Nardoni Kovač,
Marko Horvat, Veronika Batistič, Lucija Draginić
2022
Notranja
preureditev
stanovanjske
hiše