2024
Hiša na
robu vasi
2024
Hiša na
robu vasi



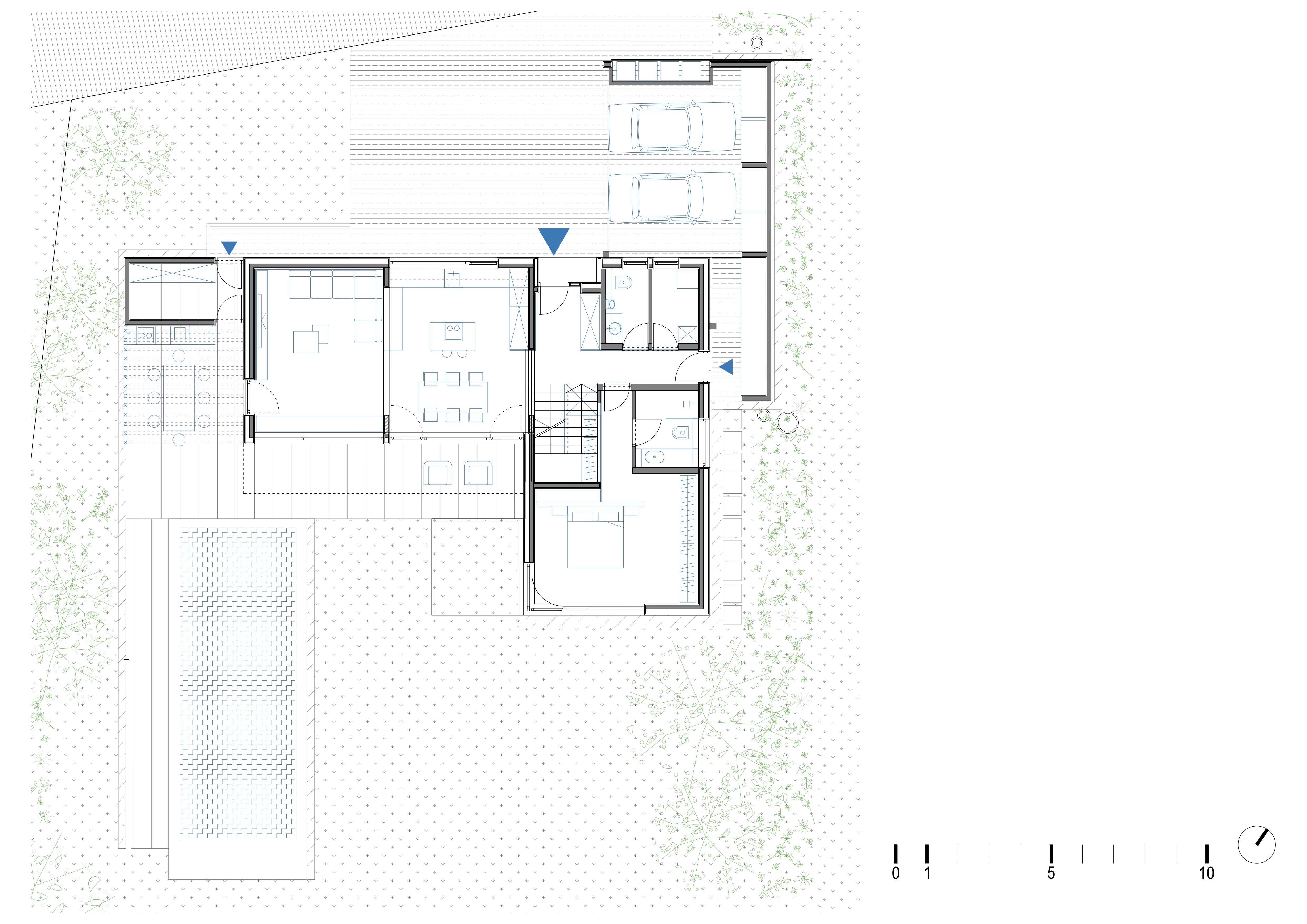
Arhitekturna zasnova družinske hiše temelji na igri med zamejevanjem in odpiranjem, ki strogo ločuje zasebne prostore družine od javnih površin. Osnovni volumen, postavljen ob cesti, na meji med vasjo in naravnim okoljem, ščiti bivalne dele pred pogledi, hkrati pa notranjost odpira proti vrtu, travniku in gozdu.
Izhodišče in izziv
Družina je želela dom, ki zagotavlja zasebnost pred pogledi iz naselja in sosednjih stavb, hkrati pa si je želela povezave z vrtom, bazenom in bližnjim gozdom. Izziv je bil ustvariti arhitekturo, ki bo ščitila in ne omejevala.
Arhitekturna rešitev
Osnovnemu volumnu so dodani pritlični prizidki, ki s strateško postavitvijo varujejo zunanje površine pred pogledi s sosednje parcele (garaža in spalnica) in vasi ( shramba in letna kuhinja). Bivalni prostori se v obeh etažah preko velikih steklenih površin naravno pretočijo na teraso, bazen in naprej proti travniku in gozdu.
“Z arhitekti smo izjemno zadovoljni – zasnovali so dom, v katerem res radi bivamo. Hiša je svetla, funkcionalna in odprta proti terasi, bazenu, travniku in gozdu. Lepo je, ker je hkrati povezana z naravo, obenem pa premišljeno zasnovana tako, da nam zagotavlja zasebnost. Najbolj nas veseli, da nam dom daje občutek miru in sproščenosti.”
Špela in Tomaž
Arhitekturna zasnova družinske hiše temelji na igri med zamejevanjem in odpiranjem, ki strogo ločuje zasebne prostore družine od javnih površin. Osnovni volumen, postavljen ob cesti, na meji med vasjo in naravnim okoljem, ščiti bivalne dele pred pogledi, hkrati pa notranjost odpira proti vrtu, travniku in gozdu.
Izhodišče in izziv
Družina je želela dom, ki zagotavlja zasebnost pred pogledi iz naselja in sosednjih stavb, hkrati pa si je želela povezave z vrtom, bazenom in bližnjim gozdom. Izziv je bil ustvariti arhitekturo, ki bo ščitila in ne omejevala.
Arhitekturna rešitev
Osnovnemu volumnu so dodani pritlični prizidki, ki s strateško postavitvijo varujejo zunanje površine pred pogledi s sosednje parcele (garaža in spalnica) in vasi ( shramba in letna kuhinja). Bivalni prostori se v obeh etažah preko velikih steklenih površin naravno pretočijo na teraso, bazen in naprej proti travniku in gozdu.
“Z arhitekti smo izjemno zadovoljni – zasnovali so dom, v katerem res radi bivamo. Hiša je svetla, funkcionalna in odprta proti terasi, bazenu, travniku in gozdu. Lepo je, ker je hkrati povezana z naravo, obenem pa premišljeno zasnovana tako, da nam zagotavlja zasebnost. Najbolj nas veseli, da nam dom daje občutek miru in sproščenosti.”
Špela in Tomaž
Arhitekturna zasnova družinske hiše temelji na igri med zamejevanjem in odpiranjem, ki strogo ločuje zasebne prostore družine od javnih površin. Osnovni volumen, postavljen ob cesti, na meji med vasjo in naravnim okoljem, ščiti bivalne dele pred pogledi, hkrati pa notranjost odpira proti vrtu, travniku in gozdu.
Izhodišče in izziv
Družina je želela dom, ki zagotavlja zasebnost pred pogledi iz naselja in sosednjih stavb, hkrati pa si je želela povezave z vrtom, bazenom in bližnjim gozdom. Izziv je bil ustvariti arhitekturo, ki bo ščitila in ne omejevala.
Arhitekturna rešitev
Osnovnemu volumnu so dodani pritlični prizidki, ki s strateško postavitvijo varujejo zunanje površine pred pogledi s sosednje parcele (garaža in spalnica) in vasi ( shramba in letna kuhinja). Bivalni prostori se v obeh etažah preko velikih steklenih površin naravno pretočijo na teraso, bazen in naprej proti travniku in gozdu.
“Z arhitekti smo izjemno zadovoljni – zasnovali so dom, v katerem res radi bivamo. Hiša je svetla, funkcionalna in odprta proti terasi, bazenu, travniku in gozdu. Lepo je, ker je hkrati povezana z naravo, obenem pa premišljeno zasnovana tako, da nam zagotavlja zasebnost. Najbolj nas veseli, da nam dom daje občutek miru in sproščenosti.”
Špela in Tomaž
2024
Hiša na robu vasi















Fotografije
Fotografije
Fotografije
Notranja zasnova
Pritličje je zasnovano fluidno, z meandriranjem po zemljišču oblikuje zunanje in notranje prostore z različnim značajem in stopnjo zasebnosti. Bivalni prostori se v vertikalni smeri razširjajo v igralno delovni kotiček v mansardi, nanje pa se pripenjajo intovertirani prostori spalnic in servisnih prostorov.
Učinek
Hiša uspešno prepleta želje naročnika, prostorske danosti in omejitve regulative v celoto, ki družini omogoča radoživ, svoboden in povezan način bivanja. Prostor je zaščiten tam, kjer je potrebno, in odprt tam, kjer se življenje naravno širi v okolico.
Zaključna misel
S hišo smo arhitekturno povezali kontraste - med zasebnim in odprtim, trdim in mehkim, zadržanim in veselim - in tako ustvarili dom, ki zagotavlja varnost in hkrati spodbuja prostost bivanja.
Notranja zasnova
Pritličje je zasnovano fluidno, z meandriranjem po zemljišču oblikuje zunanje in notranje prostore z različnim značajem in stopnjo zasebnosti. Bivalni prostori se v vertikalni smeri razširjajo v igralno delovni kotiček v mansardi, nanje pa se pripenjajo intovertirani prostori spalnic in servisnih prostorov.
Učinek
Hiša uspešno prepleta želje naročnika, prostorske danosti in omejitve regulative v celoto, ki družini omogoča radoživ, svoboden in povezan način bivanja. Prostor je zaščiten tam, kjer je potrebno, in odprt tam, kjer se življenje naravno širi v okolico.
Zaključna misel
S hišo smo arhitekturno povezali kontraste - med zasebnim in odprtim, trdim in mehkim, zadržanim in veselim - in tako ustvarili dom, ki zagotavlja varnost in hkrati spodbuja prostost bivanja.
Notranja zasnova
Pritličje je zasnovano fluidno, z meandriranjem po zemljišču oblikuje zunanje in notranje prostore z različnim značajem in stopnjo zasebnosti. Bivalni prostori se v vertikalni smeri razširjajo v igralno delovni kotiček v mansardi, nanje pa se pripenjajo intovertirani prostori spalnic in servisnih prostorov.
Učinek
Hiša uspešno prepleta želje naročnika, prostorske danosti in omejitve regulative v celoto, ki družini omogoča radoživ, svoboden in povezan način bivanja. Prostor je zaščiten tam, kjer je potrebno, in odprt tam, kjer se življenje naravno širi v okolico.
Zaključna misel
S hišo smo arhitekturno povezali kontraste - med zasebnim in odprtim, trdim in mehkim, zadržanim in veselim - in tako ustvarili dom, ki zagotavlja varnost in hkrati spodbuja prostost bivanja.


Tloris pritličja, nadstropja
Tloris pritličja, nadstropja
Tloris pritličja, nadstropja
Informacije o projektu
Lokacija: Videm - Dobrepolje
Leto projekta: 2022
Leto izgradnje: 2024
Površina: 262 m2
Tip objekta: Stanovanjska hiša
Namembnost: Novogradnja/ notranje oblikovanje-interier/ zunanja ureditev
Poseg: Novogradnja
Zasebni naročnik
Atelje Ber.Nard: Igor Berlot, Špela Nardoni Kovač,
Lucija Draginić, Marko Horvat
Informacije o projektu
Lokacija: Videm - Dobrepolje
Leto projekta: 2022
Leto izgradnje: 2024
Površina: 262 m2
Tip objekta: Stanovanjska hiša
Namembnost: Novogradnja/ notranje oblikovanje-interier/ zunanja ureditev
Poseg: Novogradnja
Zasebni naročnik
Atelje Ber.Nard: Igor Berlot, Špela Nardoni Kovač,
Lucija Draginić, Marko Horvat
Informacije o projektu
Lokacija: Videm - Dobrepolje
Leto projekta: 2022
Leto izgradnje: 2024
Površina: 262 m2
Tip objekta: Stanovanjska hiša
Namembnost: Novogradnja/ notranje oblikovanje-interier/ zunanja ureditev
Poseg: Novogradnja
Zasebni naročnik
Atelje Ber.Nard: Igor Berlot, Špela Nardoni Kovač,
Veronika Batistič, Lucija Draginić, Marko Horvat
2024
Hiša na
robu vasi