2025
Oskrbovana stanovanja
v Ponikvah
- dvojčka



V sklopu projekta oskrbovanih stanovanj v Ponikvah smo na južnem delu zemljišča zasnovali dva dvojčka, ki združujeta udobje individualne hiše z racionalnostjo večstanovanjske gradnje. Zasnova omogoča zasebnost, stik z naravo in prilagodljivost glede na potrebe različnih uporabnikov.
Izhodišče in umestitev
Dvojčka stojita ob dostopni cesti, pravokotni na glavni dovoz k stavbi oskrbovanih stanovanj. Ob njej je urejeno skupno dvorišče z vhodno nišo in parkirnim prostorom za dve vozili. Na južni strani se zunanje bivalne površine odpirajo proti travnikom in gozdu, kar stanovalcem zagotavlja mirno in prijetno okolje.
Arhitekturna zasnova
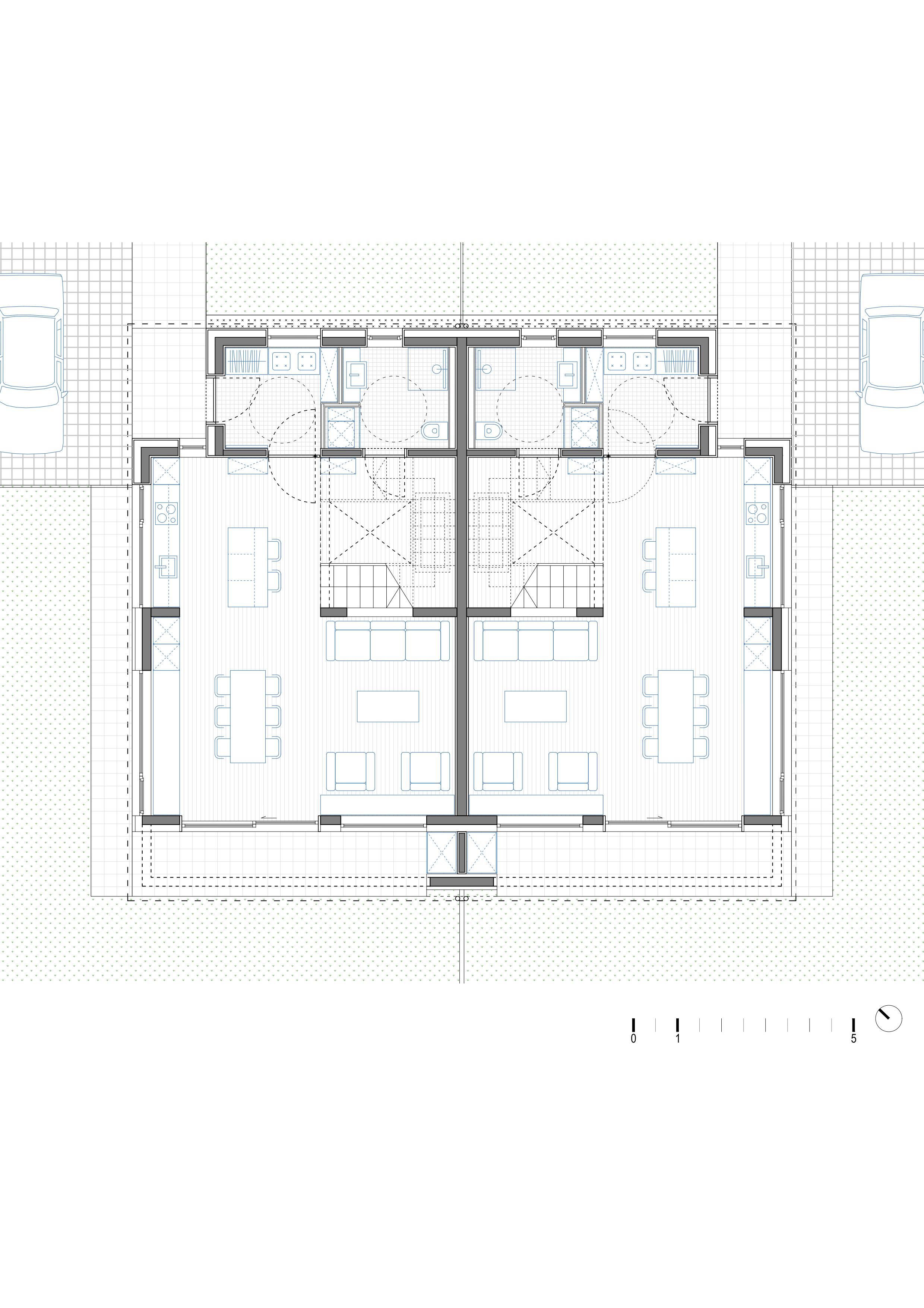
Vsak dvojček sestavljata dve simetrični stanovanjski enoti z vhodom iz severovzhodne ali severozahodne strani. Vhodni predprostor deluje kot vetrolov in vodi v osrednji bivalni del. Odprto stopnišče v središču tlorisa povezuje pritličje z mansardo, pod njim je skrit vhod v kopalnico. Ob stopnišču je kuhinja z otokom, ki se nadaljuje v jedilnico in dnevni prostor z izhodom na vrt. Zunanje površine so delno pokrite s previsom mansarde, kar omogoča zaščito pred vremenskimi vplivi.
V sklopu projekta oskrbovanih stanovanj v Ponikvah smo na južnem delu zemljišča zasnovali dva dvojčka, ki združujeta udobje individualne hiše z racionalnostjo večstanovanjske gradnje. Zasnova omogoča zasebnost, stik z naravo in prilagodljivost glede na potrebe različnih uporabnikov.
Izhodišče in umestitev
Dvojčka stojita ob dostopni cesti, pravokotni na glavni dovoz k stavbi oskrbovanih stanovanj. Ob njej je urejeno skupno dvorišče z vhodno nišo in parkirnim prostorom za dve vozili. Na južni strani se zunanje bivalne površine odpirajo proti travnikom in gozdu, kar stanovalcem zagotavlja mirno in prijetno okolje.
Arhitekturna zasnova
Vsak dvojček sestavljata dve simetrični stanovanjski enoti z vhodom iz severovzhodne ali severozahodne strani. Vhodni predprostor deluje kot vetrolov in vodi v osrednji bivalni del. Odprto stopnišče v središču tlorisa povezuje pritličje z mansardo, pod njim je skrit vhod v kopalnico. Ob stopnišču je kuhinja z otokom, ki se nadaljuje v jedilnico in dnevni prostor z izhodom na vrt. Zunanje površine so delno pokrite s previsom mansarde, kar omogoča zaščito pred vremenskimi vplivi.
V sklopu projekta oskrbovanih stanovanj v Ponikvah smo na južnem delu zemljišča zasnovali dva dvojčka, ki združujeta udobje individualne hiše z racionalnostjo večstanovanjske gradnje. Zasnova omogoča zasebnost, stik z naravo in prilagodljivost glede na potrebe različnih uporabnikov.
Izhodišče in umestitev
Dvojčka stojita ob dostopni cesti, pravokotni na glavni dovoz k stavbi oskrbovanih stanovanj. Ob njej je urejeno skupno dvorišče z vhodno nišo in parkirnim prostorom za dve vozili. Na južni strani se zunanje bivalne površine odpirajo proti travnikom in gozdu, kar stanovalcem zagotavlja mirno in prijetno okolje.
Arhitekturna zasnova
Vsak dvojček sestavljata dve simetrični stanovanjski enoti z vhodom iz severovzhodne ali severozahodne strani. Vhodni predprostor deluje kot vetrolov in vodi v osrednji bivalni del. Odprto stopnišče v središču tlorisa povezuje pritličje z mansardo, pod njim je skrit vhod v kopalnico. Ob stopnišču je kuhinja z otokom, ki se nadaljuje v jedilnico in dnevni prostor z izhodom na vrt. Zunanje površine so delno pokrite s previsom mansarde, kar omogoča zaščito pred vremenskimi vplivi.
2025
Oskrbovana stanovanja
v Ponikvah - dvojčka






Vizualizacije
Vizualizacije
Vizualizacije
Bivalni prostori
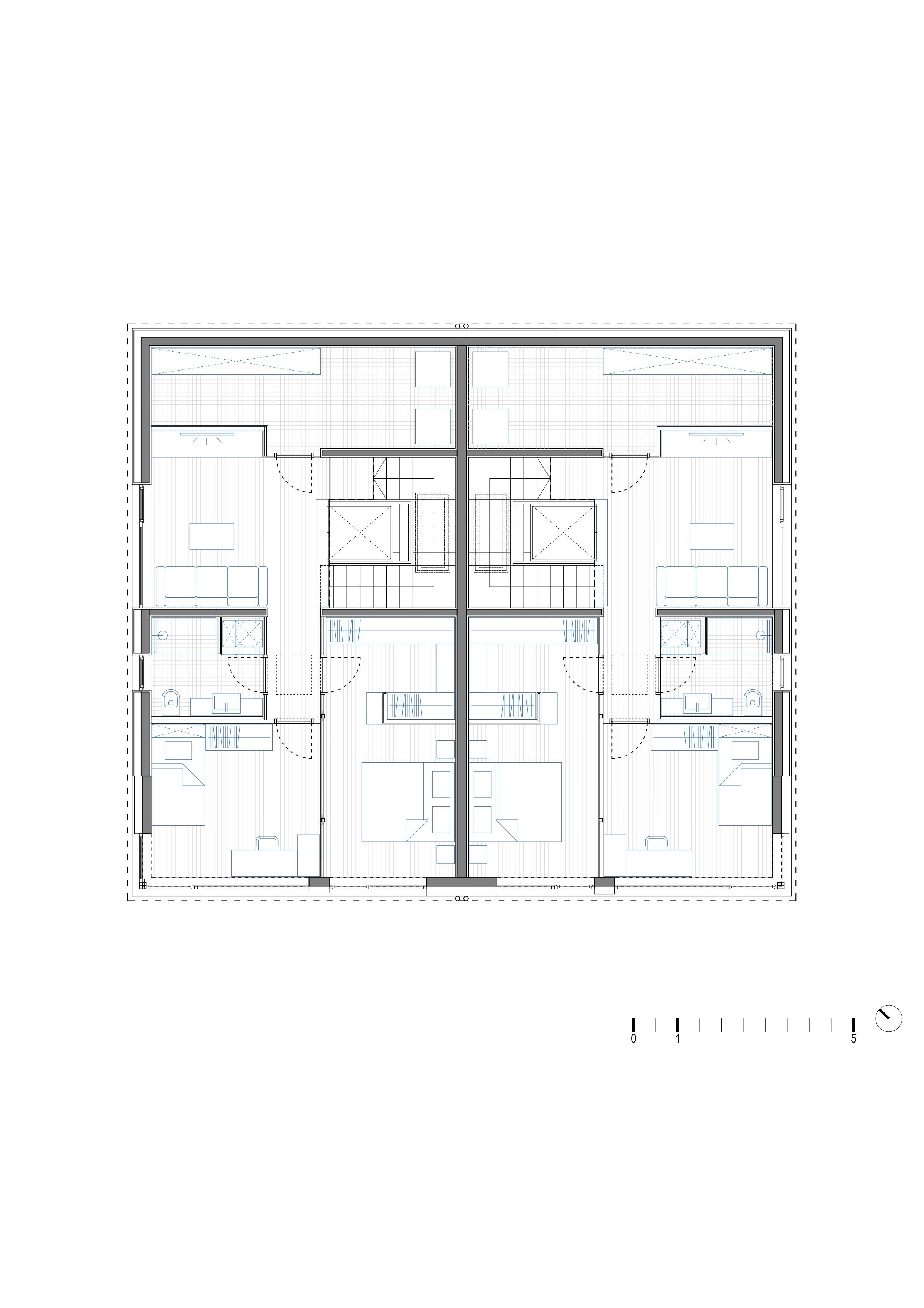
V mansardi je kotiček za branje, počitek ali gledanje televizije, od koder so dostopi do shrambe, kopalnice, otroške sobe in glavne spalnice z garderobo. Velik poudarek je na prilagodljivosti:
pritličje je mogoče preurediti v dostopno spalnico z invalidskim vozičkom,
stopnišče omogoča vgradnjo dvižne ploščadi ali osebnega dvigala,
bivalni kotiček v mansardi se lahko spremeni v dodatno sobo ali domačo pisarno.
Učinek
Dvojčka nudita fleksibilno in udobno bivanje, ki se lahko spreminja skupaj z življenjskim slogom stanovalcev – od mlade družine do para v zrelejših letih, ki želi ohraniti stik z naravo in skupnostjo.
Zaključna misel
Premišljena prostorska zasnova omogoča, da se vsak dom prilagodi svojim uporabnikom, hkrati pa ohrani občutek domačnosti, funkcionalnosti in povezanosti z okoljem in skupnostjo.
Bivalni prostori
V mansardi je kotiček za branje, počitek ali gledanje televizije, od koder so dostopi do shrambe, kopalnice, otroške sobe in glavne spalnice z garderobo. Velik poudarek je na prilagodljivosti:
pritličje je mogoče preurediti v dostopno spalnico z invalidskim vozičkom,
stopnišče omogoča vgradnjo dvižne ploščadi ali osebnega dvigala,
bivalni kotiček v mansardi se lahko spremeni v dodatno sobo ali domačo pisarno.
Učinek
Dvojčka nudita fleksibilno in udobno bivanje, ki se lahko spreminja skupaj z življenjskim slogom stanovalcev – od mlade družine do para v zrelejših letih, ki želi ohraniti stik z naravo in skupnostjo.
Zaključna misel
Premišljena prostorska zasnova omogoča, da se vsak dom prilagodi svojim uporabnikom, hkrati pa ohrani občutek domačnosti, funkcionalnosti in povezanosti z okoljem in skupnostjo.
Bivalni prostori
V mansardi je kotiček za branje, počitek ali gledanje televizije, od koder so dostopi do shrambe, kopalnice, otroške sobe in glavne spalnice z garderobo. Velik poudarek je na prilagodljivosti:
pritličje je mogoče preurediti v dostopno spalnico z invalidskim vozičkom,
stopnišče omogoča vgradnjo dvižne ploščadi ali osebnega dvigala,
bivalni kotiček v mansardi se lahko spremeni v dodatno sobo ali domačo pisarno.
Učinek
Dvojčka nudita fleksibilno in udobno bivanje, ki se lahko spreminja skupaj z življenjskim slogom stanovalcev – od mlade družine do para v zrelejših letih, ki želi ohraniti stik z naravo in skupnostjo.
Zaključna misel
Premišljena prostorska zasnova omogoča, da se vsak dom prilagodi svojim uporabnikom, hkrati pa ohrani občutek domačnosti, funkcionalnosti in povezanosti z okoljem in skupnostjo.






Tloris pritličja, nadstropja
Tloris pritličja, nadstropja
Tloris pritličja, nadstropja
Informacije o projektu
Lokacija: 1312 Videm - Dobrepolje
Leto projekta: 2022
Leto izgradnje: 2025
Površina: 2200 m2
Tip objekta: Poslovno-stanovanjski objekt
Namembnost: Stanovanjska gradnja/javna gradnja/poslovno-stanovanjska
Poseg: Novogradnja, notranja ureditev
Naročnik: Mix d.o.o
Fotografije:
Atelje Ber.Nard: Igor Berlot, Špela Nardoni Kovač,
Marko Horvat, Lucija Draginić
Informacije o projektu
Lokacija: 1312 Videm - Dobrepolje
Leto projekta: 2022
Leto izgradnje: 2025
Površina: 2200 m2
Tip objekta: Poslovno-stanovanjski objekt
Namembnost: Stanovanjska gradnja/javna gradnja/poslovno-stanovanjska
Poseg: Novogradnja, notranja ureditev
Naročnik: Mix d.o.o
Fotografije:
Atelje Ber.Nard: Igor Berlot, Špela Nardoni Kovač,
Marko Horvat, Lucija Draginić
Informacije o projektu
Lokacija: 1312 Videm - Dobrepolje
Leto projekta: 2022
Leto izgradnje: 2025
Površina: 2200 m2
Tip objekta: Poslovno-stanovanjski objekt
Namembnost: Stanovanjska gradnja/javna gradnja/poslovno-stanovanjska
Poseg: Novogradnja, notranja ureditev
Naročnik: Mix d.o.o
Fotografije:
Atelje Ber.Nard: Igor Berlot, Špela Nardoni Kovač,
Marko Horvat, Lucija Draginić
2025
Oskrbovana stanovanja
v Ponikvah
- dvojčka