Oskrbovana
stanovanja






2024
Oskrbovana stanovanja
Projekt povezuje večnamensko stavbo kot kombinacijo oskrbovanih stanovanj, poslovnega programa in stanovanj ter dva stanovanjska dvojčka. Lastnik zemljišča se je na nas obrnil za preveritev možnosti pozidave. Po prvih načelnih preveritvah območja smo rešitev prilagodili zakonodajnemu okvirju, po katerem območje s svojim programom dopolnjuje obstoječo dejavnost socialno varstvenega zavoda. Z novo pozidavo se bo tako na območju oblikovalo eno od skupnostnih jeder naselja, ki bo s svojimi vsebinami dopolnjevalo že obstoječe storitve v sosedstvu.
Lokacija
Obravnavano zemljišče je v Ponikvah, v občini Dobrepolje. Parcela je pretežno pravokotne oblike in leži na prehodu med robom naselja in gozdom, med drobno stanovanjsko pozidavo in varstvenim zavodomo. Dostop je z javne ceste. Pred začetkom gradnje je na zemljišču še stala nekdanja domačija.
Želje naročnika
Razširiti lokalno ponudbo oskrbovanih stanovanj,
Zagotoviti prostore za različne dopolnilne dejavnosti, ki bi služile tako stanovalcem oskrbovanih stanovanj kot prebivalcem kraja
Oblikovati novo mestotvorno potezo ob robu naselja in
Omogočiti optimalno tehnološko opremljenost in ekonomsko vzdržno investicijo
Projekt povezuje večnamensko stavbo kot kombinacijo oskrbovanih stanovanj, poslovnega programa in stanovanj ter dva stanovanjska dvojčka. Lastnik zemljišča se je na nas obrnil za preveritev možnosti pozidave. Po prvih načelnih preveritvah območja smo rešitev prilagodili zakonodajnemu okvirju, po katerem območje s svojim programom dopolnjuje obstoječo dejavnost socialno varstvenega zavoda. Z novo pozidavo se bo tako na območju oblikovalo eno od skupnostnih jeder naselja, ki bo s svojimi vsebinami dopolnjevalo že obstoječe storitve v sosedstvu.
Lokacija
Obravnavano zemljišče je v Ponikvah, v občini Dobrepolje. Parcela je pretežno pravokotne oblike in leži na prehodu med robom naselja in gozdom, med drobno stanovanjsko pozidavo in varstvenim zavodomo. Dostop je z javne ceste. Pred začetkom gradnje je na zemljišču še stala nekdanja domačija.
Želje naročnika
Razširiti lokalno ponudbo oskrbovanih stanovanj,
Zagotoviti prostore za različne dopolnilne dejavnosti, ki bi služile tako stanovalcem oskrbovanih stanovanj kot prebivalcem kraja
Oblikovati novo mestotvorno potezo ob robu naselja in
Omogočiti optimalno tehnološko opremljenost in ekonomsko vzdržno investicijo
Projekt povezuje večnamensko stavbo kot kombinacijo oskrbovanih stanovanj, poslovnega programa in stanovanj ter dva stanovanjska dvojčka. Lastnik zemljišča se je na nas obrnil za preveritev možnosti pozidave. Po prvih načelnih preveritvah območja smo rešitev prilagodili zakonodajnemu okvirju, po katerem območje s svojim programom dopolnjuje obstoječo dejavnost socialno varstvenega zavoda. Z novo pozidavo se bo tako na območju oblikovalo eno od skupnostnih jeder naselja, ki bo s svojimi vsebinami dopolnjevalo že obstoječe storitve v sosedstvu.
Lokacija
Obravnavano zemljišče je v Ponikvah, v občini Dobrepolje. Parcela je pretežno pravokotne oblike in leži na prehodu med robom naselja in gozdom, med drobno stanovanjsko pozidavo in varstvenim zavodomo. Dostop je z javne ceste. Pred začetkom gradnje je na zemljišču še stala nekdanja domačija.
Želje naročnika
Razširiti lokalno ponudbo oskrbovanih stanovanj,
Zagotoviti prostore za različne dopolnilne dejavnosti, ki bi služile tako stanovalcem oskrbovanih stanovanj kot prebivalcem kraja
Oblikovati novo mestotvorno potezo ob robu naselja in
Omogočiti optimalno tehnološko opremljenost in ekonomsko vzdržno investicijo
Urbanistična in arhitekturna zasnova
Urbanistična in arhitekturna zasnova
Urbanistična in arhitekturna zasnova







Izzivi
Zakonske in programske omejitve gradnje
Prilagoditev gradnje neposredni bližini obstoječega Zavoda
Most med obstoječo javno in stanovanjsko pozidavo
Vzpostavitev primernega obsega skupnih površin v okviru javnega in lastniškega dela objekta
Sinergična povezava poslovnega in stanovanjskega dela
Nizka prodajna vrednost nepremičnin v regiji
Poslovno-stanovajski objekt
Začetni del projekta (faza 0) je bil namenjen analizi lokacije, programskih zahtev/omejitev in zakonodajnega okvirja ter preveritvi možnosti pozidave, s katero smo naročniku pomagali postopno zarisati smer in obseg projekta. Izbrano zasnovo smo skupaj z naročnikom preverili in prilagodili tudi s stališča investicijske vzdržnosti. Ta je bila podlaga za idejno zasnovo (faza 1.1), ki povezuje raznolike vsebine – stanovanjski, skupnostni in poslovni del – v enoten volumen, a z jasno ločenimi zasebnimi, skupnimi in javnimi površinami. V tej fazi smo določili število in velikost stanovanj in poslovnih prostorov, prometno ureditev s potrebnim številom parkirnih mest, velikost dvojčkov, zelene površine, obliko, velikost in podobo stavb, predlagali smo materiale ipd. Z analizo osončenosti smo preverili količino naravne svetlobe na lokaciji v različnih delih leta in v skladu s tem zagotovili več kot ugodno naravno osvetlitev vseh stanovanj in poslovnih prostorov. Pred zaključkom tudi te faze smo ponovno preverili investicijski okvir.
Faza izdelave projektne dokumentacije za izvedbo (faza 3) je bila netipčna, saj je na željo naročnika prišlo do sprememb, prilagoditev in celo zamenjave konstrukcijskega sistema. Izkazalo se je, da je v načrtovanje nujno vključiti fazo Idejnega projekta (fazo 1.2), ki omogoča preveritev različnih materialov, sistemov in njihovega vpliva na investicijo z manjšo porabo časa in tako nižjo finančno obremenitvijo naročnika. Naučili smo se tudi, kako pomembno je upoštevati sosledje posameznih faz projekta in, da prehitevanje prepogosto prinese nasprotne učinke od zaželenih.
Sledila je priprava predstavitvenega materiala za prodajo (vizualizacije, fasadni kolaži, prikazi posameznih stanovanjskih enot), ter usklajevanje projekta z zahtevami izbranih izvajalcev, sodelovanje pri pogovorih s ponudniki posameznih gradbenih sistemov ipd.
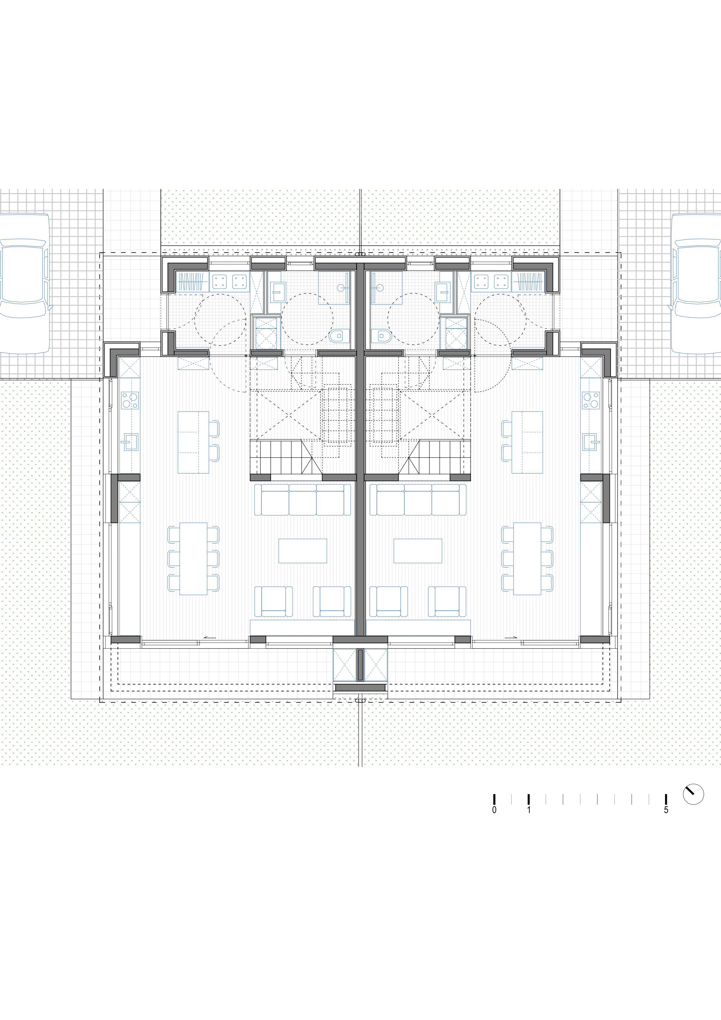
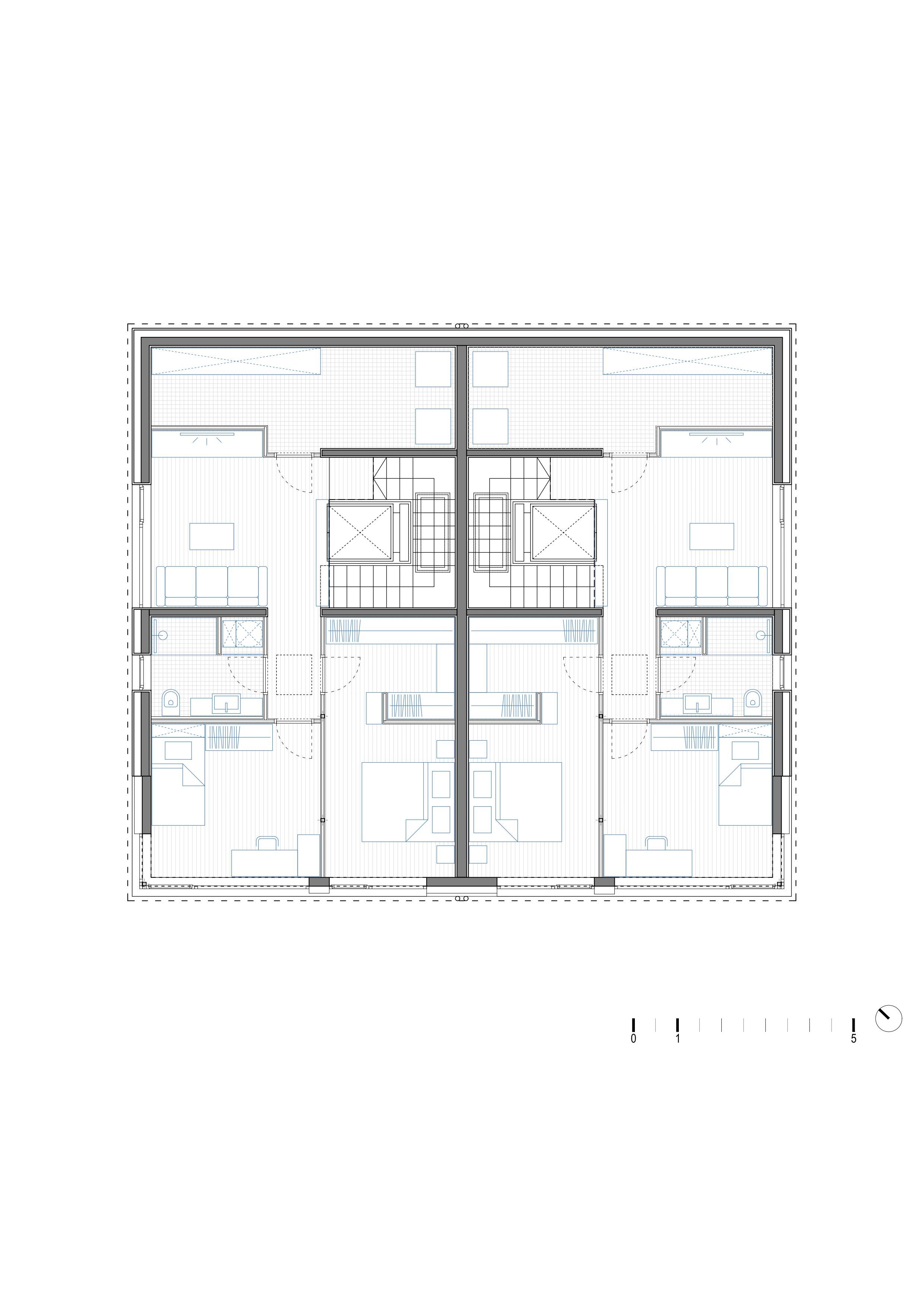
Dvojčka
Dvojčka sta umeščena na južni del zemljišča in dostopna po skupni cesti mimo stavbe oskrbovanih stanovanj. Ob cesti je urejeno dvorišče, z vhodno nišo in prostorom za zaporedno parkiranje dveh avtomobilov. Preostali del zemljišča je zelenica, ki na južni strani nadaljuje bivalne površine, s katerih se odpirajo pogledi proti travniku in gozdu.
Dvojček sestavljata dve simetrični stanovanjski enoti. Vhod je urejen iz niše na severovzhodni oziroma severozahodni strani stavbe. Vhodni predprostor, ki hkrati deluje kot vetrolov, vodi v bivalne prostore. V osrednjem delu je odprto stopnišče v mansardo, pod njim pa je skrit vhod v kopalnico. Ob stopnišču je kuhinja s kuhinjskim otokom, ki se nadaljuje v jedilnico in dnevno sobo. Preko jedilnice s pogledom na travnike in gozd dostopamo na vrt. Zunanje bivalne površine so delno nadstrešene z zamikom mansardne etaže.
Bivalni prostor se preko odprtega stopnišča nadaljuje v mansardo, kjer je urejen kotiček za branje, počitek in gledanje televizije. Od tukaj so dostopne glavna spalnica z garderobo, otroške sobe in kopalnica ter shramba.
Rezultat
Premišljena tlorisna zasnova, ki omogoča enostavno prilagajanje stanovanjskih enot glede na potrebe uporabnikov:
Primer 1: V pritličju je mogoče dnevno sobo preurediti v spalnico, dostopno z invalidskim vozičkom. Tako jedilna miza nadomesti kuhinjski otok, obstoječi jedilni kotiček postane dnevna soba.
Primer 2: Osrednje stopnišče je oblikovano tako, da zagotavlja prostor za vgradnjo dvižne ploščadi ali manjšega osebnega dvigala in s tem neoviran dostop vsem uporabnikom v mansardo.
Primer 3: S »klasično« koridorsko razporedititvijo je bivalni kotiček v mansardi mogoče preurediti v dodatno sobo ali domačo pisarno.
Tloris pritličja, 1., 2. nadstropja, mansarde
Rezultat
Izdelali smo arhitekturno zasnovo večnamenskega kompleksa, ki z vključevanjem različnih dejavnosti spodbuja življenje v bolj odprti, prepleteni skupnosti stanovalcev in uporabnikov storitev. Stavba z vsebino nadgradi obstoječe okolje, obenem pa omogoči udobno bivanje posameznikom, ki želijo varno preživeti starost v mirnem vaškem okolju z dodatno oskrbo.
Projekt naslavlja ključne zahteve naročnika – funkcionalnost, energetsko učinkovitost, vizualno skladnost z okoljem ter možnost fazne gradnje.
Izzivi
Zakonske in programske omejitve gradnje
Prilagoditev gradnje neposredni bližini obstoječega Zavoda
Most med obstoječo javno in stanovanjsko pozidavo
Vzpostavitev primernega obsega skupnih površin v okviru javnega in lastniškega dela objekta
Sinergična povezava poslovnega in stanovanjskega dela
Nizka prodajna vrednost nepremičnin v regiji
Poslovno-stanovajski objekt
Začetni del projekta (faza 0) je bil namenjen analizi lokacije, programskih zahtev/omejitev in zakonodajnega okvirja ter preveritvi možnosti pozidave, s katero smo naročniku pomagali postopno zarisati smer in obseg projekta. Izbrano zasnovo smo skupaj z naročnikom preverili in prilagodili tudi s stališča investicijske vzdržnosti. Ta je bila podlaga za idejno zasnovo (faza 1.1), ki povezuje raznolike vsebine – stanovanjski, skupnostni in poslovni del – v enoten volumen, a z jasno ločenimi zasebnimi, skupnimi in javnimi površinami. V tej fazi smo določili število in velikost stanovanj in poslovnih prostorov, prometno ureditev s potrebnim številom parkirnih mest, velikost dvojčkov, zelene površine, obliko, velikost in podobo stavb, predlagali smo materiale ipd. Z analizo osončenosti smo preverili količino naravne svetlobe na lokaciji v različnih delih leta in v skladu s tem zagotovili več kot ugodno naravno osvetlitev vseh stanovanj in poslovnih prostorov. Pred zaključkom tudi te faze smo ponovno preverili investicijski okvir.
Faza izdelave projektne dokumentacije za izvedbo (faza 3) je bila netipčna, saj je na željo naročnika prišlo do sprememb, prilagoditev in celo zamenjave konstrukcijskega sistema. Izkazalo se je, da je v načrtovanje nujno vključiti fazo Idejnega projekta (fazo 1.2), ki omogoča preveritev različnih materialov, sistemov in njihovega vpliva na investicijo z manjšo porabo časa in tako nižjo finančno obremenitvijo naročnika. Naučili smo se tudi, kako pomembno je upoštevati sosledje posameznih faz projekta in, da prehitevanje prepogosto prinese nasprotne učinke od zaželenih.
Sledila je priprava predstavitvenega materiala za prodajo (vizualizacije, fasadni kolaži, prikazi posameznih stanovanjskih enot), ter usklajevanje projekta z zahtevami izbranih izvajalcev, sodelovanje pri pogovorih s ponudniki posameznih gradbenih sistemov ipd.
Poslovno-stanovajski objekt
Začetni del projekta (faza 0) je bil namenjen analizi lokacije, programskih zahtev/omejitev in zakonodajnega okvirja ter preveritvi možnosti pozidave, s katero smo naročniku pomagali postopno zarisati smer in obseg projekta. Izbrano zasnovo smo skupaj z naročnikom preverili in prilagodili tudi s stališča investicijske vzdržnosti. Ta je bila podlaga za idejno zasnovo (faza 1.1), ki povezuje raznolike vsebine – stanovanjski, skupnostni in poslovni del – v enoten volumen, a z jasno ločenimi zasebnimi, skupnimi in javnimi površinami. V tej fazi smo določili število in velikost stanovanj in poslovnih prostorov, prometno ureditev s potrebnim številom parkirnih mest, velikost dvojčkov, zelene površine, obliko, velikost in podobo stavb, predlagali smo materiale ipd. Z analizo osončenosti smo preverili količino naravne svetlobe na lokaciji v različnih delih leta in v skladu s tem zagotovili več kot ugodno naravno osvetlitev vseh stanovanj in poslovnih prostorov. Pred zaključkom tudi te faze smo ponovno preverili investicijski okvir.
Faza izdelave projektne dokumentacije za izvedbo (faza 3) je bila netipčna, saj je na željo naročnika prišlo do sprememb, prilagoditev in celo zamenjave konstrukcijskega sistema. Izkazalo se je, da je v načrtovanje nujno vključiti fazo Idejnega projekta (fazo 1.2), ki omogoča preveritev različnih materialov, sistemov in njihovega vpliva na investicijo z manjšo porabo časa in tako nižjo finančno obremenitvijo naročnika. Naučili smo se tudi, kako pomembno je upoštevati sosledje posameznih faz projekta in, da prehitevanje prepogosto prinese nasprotne učinke od zaželenih.
Sledila je priprava predstavitvenega materiala za prodajo (vizualizacije, fasadni kolaži, prikazi posameznih stanovanjskih enot), ter usklajevanje projekta z zahtevami izbranih izvajalcev, sodelovanje pri pogovorih s ponudniki posameznih gradbenih sistemov ipd.
Rezultat
Izdelali smo arhitekturno zasnovo večnamenskega kompleksa, ki z vključevanjem različnih dejavnosti spodbuja življenje v bolj odprti, prepleteni skupnosti stanovalcev in uporabnikov storitev. Stavba z vsebino nadgradi obstoječe okolje, obenem pa omogoči udobno bivanje posameznikom, ki želijo varno preživeti starost v mirnem vaškem okolju z dodatno oskrbo.
Projekt naslavlja ključne zahteve naročnika – funkcionalnost, energetsko učinkovitost, vizualno skladnost z okoljem ter možnost fazne gradnje.
Rezultat
Izdelali smo arhitekturno zasnovo večnamenskega kompleksa, ki z vključevanjem različnih dejavnosti spodbuja življenje v bolj odprti, prepleteni skupnosti stanovalcev in uporabnikov storitev. Stavba z vsebino nadgradi obstoječe okolje, obenem pa omogoči udobno bivanje posameznikom, ki želijo varno preživeti starost v mirnem vaškem okolju z dodatno oskrbo.
Projekt naslavlja ključne zahteve naročnika – funkcionalnost, energetsko učinkovitost, vizualno skladnost z okoljem ter možnost fazne gradnje.








Tloris pritličja, 1., 2. nadstropja, mansarde, prerezi
Tloris pritličja, 1., 2. nadstropja, mansarde, prerezi
























Vizualizacije
Vizualizacije
Vizualizacije
Dvojčka
Dvojčka sta umeščena na južni del zemljišča in dostopna po skupni cesti mimo stavbe oskrbovanih stanovanj. Ob cesti je urejeno dvorišče, z vhodno nišo in prostorom za zaporedno parkiranje dveh avtomobilov. Preostali del zemljišča je zelenica, ki na južni strani nadaljuje bivalne površine, s katerih se odpirajo pogledi proti travniku in gozdu.
Dvojček sestavljata dve simetrični stanovanjski enoti. Vhod je urejen iz niše na severovzhodni oziroma severozahodni strani stavbe. Vhodni predprostor, ki hkrati deluje kot vetrolov, vodi v bivalne prostore. V osrednjem delu je odprto stopnišče v mansardo, pod njim pa je skrit vhod v kopalnico. Ob stopnišču je kuhinja s kuhinjskim otokom, ki se nadaljuje v jedilnico in dnevno sobo. Preko jedilnice s pogledom na travnike in gozd dostopamo na vrt. Zunanje bivalne površine so delno nadstrešene z zamikom mansardne etaže.
Bivalni prostor se preko odprtega stopnišča nadaljuje v mansardo, kjer je urejen kotiček za branje, počitek in gledanje televizije. Od tukaj so dostopne glavna spalnica z garderobo, otroške sobe in kopalnica ter shramba.
Dvojčka
Dvojčka sta umeščena na južni del zemljišča in dostopna po skupni cesti mimo stavbe oskrbovanih stanovanj. Ob cesti je urejeno dvorišče, z vhodno nišo in prostorom za zaporedno parkiranje dveh avtomobilov. Preostali del zemljišča je zelenica, ki na južni strani nadaljuje bivalne površine, s katerih se odpirajo pogledi proti travniku in gozdu.
Dvojček sestavljata dve simetrični stanovanjski enoti. Vhod je urejen iz niše na severovzhodni oziroma severozahodni strani stavbe. Vhodni predprostor, ki hkrati deluje kot vetrolov, vodi v bivalne prostore. V osrednjem delu je odprto stopnišče v mansardo, pod njim pa je skrit vhod v kopalnico. Ob stopnišču je kuhinja s kuhinjskim otokom, ki se nadaljuje v jedilnico in dnevno sobo. Preko jedilnice s pogledom na travnike in gozd dostopamo na vrt. Zunanje bivalne površine so delno nadstrešene z zamikom mansardne etaže.
Bivalni prostor se preko odprtega stopnišča nadaljuje v mansardo, kjer je urejen kotiček za branje, počitek in gledanje televizije. Od tukaj so dostopne glavna spalnica z garderobo, otroške sobe in kopalnica ter shramba.
Rezultat
Premišljena tlorisna zasnova, ki omogoča enostavno prilagajanje stanovanjskih enot glede na potrebe uporabnikov:
Primer 1: V pritličju je mogoče dnevno sobo preurediti v spalnico, dostopno z invalidskim vozičkom. Tako jedilna miza nadomesti kuhinjski otok, obstoječi jedilni kotiček postane dnevna soba.
Primer 2: Osrednje stopnišče je oblikovano tako, da zagotavlja prostor za vgradnjo dvižne ploščadi ali manjšega osebnega dvigala in s tem neoviran dostop vsem uporabnikom v mansardo.
Primer 3: S »klasično« koridorsko razporedititvijo je bivalni kotiček v mansardi mogoče preurediti v dodatno sobo ali domačo pisarno.
Rezultat
Premišljena tlorisna zasnova, ki omogoča enostavno prilagajanje stanovanjskih enot glede na potrebe uporabnikov:
Primer 1: V pritličju je mogoče dnevno sobo preurediti v spalnico, dostopno z invalidskim vozičkom. Tako jedilna miza nadomesti kuhinjski otok, obstoječi jedilni kotiček postane dnevna soba.
Primer 2: Osrednje stopnišče je oblikovano tako, da zagotavlja prostor za vgradnjo dvižne ploščadi ali manjšega osebnega dvigala in s tem neoviran dostop vsem uporabnikom v mansardo.
Primer 3: S »klasično« koridorsko razporedititvijo je bivalni kotiček v mansardi mogoče preurediti v dodatno sobo ali domačo pisarno.

























Tloris pritličja, nadstropja
Tloris pritličja, nadstropja
Tloris pritličja, nadstropja
Preberi več
O zasnovi…
↓
Preberi več
O zasnovi…
↓
Preberi več
O zasnovi…
↓
Preberi več
O zasnovi…
↓
Preberi več
O zasnovi…
↓
Preberi več
O zasnovi…
↓
Informacije o projektu
Lokacija: Videm - Dobrepolje
Leto projekta: 2022
Izgradnja: Pred izvedbo, gradbeno dovoljenje pridobljeno
Površina (neto): 2200 m2
Tip objekta: Stanovanjska hiša
Namembnost: Poslovno-stanovanjski objekt in 2 stanovanjska dvojčka
Vrsta projekta: Novogradnja/stanovanjska gradnja/javna gradnja/poslovno-stanovanjska
Naročnik: Mix d.o.o.
25 oskrbovanih stanovanj, 4 stanovanja, gostinski lokal, poslovni prostori, 2 stanovanjska dvojčka
Atelje Ber.Nard: Igor Berlot, Špela Nardoni Kovač,
Lucija Draginić, Marko Horvat
Informacije o projektu
Lokacija: Videm - Dobrepolje
Leto projekta: 2022
Izgradnja: Pred izvedbo, gradbeno dovoljenje pridobljeno
Površina (neto): 2200 m2
Tip objekta: Stanovanjska hiša
Namembnost: Poslovno-stanovanjski objekt in 2 stanovanjska dvojčka
Vrsta projekta: Novogradnja/stanovanjska gradnja/javna gradnja/poslovno-stanovanjska
Naročnik: Mix d.o.o.
25 oskrbovanih stanovanj, 4 stanovanja, gostinski lokal, poslovni prostori, 2 stanovanjska dvojčka
Atelje Ber.Nard: Igor Berlot, Špela Nardoni Kovač,
Lucija Draginić, Marko Horvat
Informacije o projektu
Lokacija: Videm - Dobrepolje
Leto projekta: 2022
Izgradnja: Pred izvedbo, gradbeno dovoljenje pridobljeno
Površina (neto): 2200 m2
Tip objekta: Stanovanjska hiša
Namembnost: Poslovno-stanovanjski objekt in 2 stanovanjska dvojčka
Vrsta projekta: Novogradnja/stanovanjska gradnja/javna gradnja/poslovno-stanovanjska
Naročnik: Mix d.o.o.
25 oskrbovanih stanovanj, 4 stanovanja, gostinski lokal, poslovni prostori, 2 stanovanjska dvojčka
Atelje Ber.Nard: Igor Berlot, Špela Nardoni Kovač,
Lucija Draginić, Marko Horvat
Izzivi
Zakonske in programske omejitve gradnje
Prilagoditev gradnje neposredni bližini obstoječega Zavoda
Most med obstoječo javno in stanovanjsko pozidavo
Vzpostavitev primernega obsega skupnih površin v okviru javnega in lastniškega dela objekta
Sinergična povezava poslovnega in stanovanjskega dela
Nizka prodajna vrednost nepremičnin v regiji












2024
Oskrbovana
stanovanja